Полтавська обл., Миргородський р-н., смт. Велика Багачка, вул. Чекалових, 17. Оренда – Приміщення 1-го поверху, загальною площею 113,90 кв.м. (В)

4 010.42 грн
35.21 грн / м2
Україна, Полтавська обл., Миргородський р-н., смт. Велика Багачка, вул. Чекалових, 17
Перейти до аукціону на сайті
  • Інформація
  • Опис
  • Документи
Дата оголошення пропозиції:
08 липня 2022
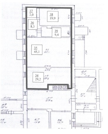
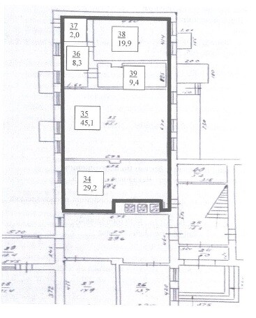
Площа:
113.90 м2
Тип об’єкта:
Приміщення
Тип аукціону:
Англійський аукціон
Статус аукціону:
Аукціон не відбувся
Тип угоди:
Оренда
Розмір мінімального кроку:
50.00 ₴
Розмір гарантійного внеску:
2 406.25 ₴
Початок прийому пропозицій:
08.07.2022 12:09:12
Завершення прийому пропозицій:
08.08.2022 20:00:00
Проведення аукціону:
09.08.2022 12:12:09
Лот:
UA-PS-2022-07-08-000004-1
№ лоту (УТК):
UTK080722_06P
Лот виставляється на торги (раз):
1
Стислий опис майна:
Пропонується до оренди приміщення 1-го поверху, загальною площею 113,90 кв.м., будівля знаходиться в центральній частині смт.Велика Багачка. Характеристики кількість поверхів – 2 загальна площа – 856,40 кв.м.; площа запропонована до оренди 113,90 кв.м.; опалення – наявне; електропостачання – дозволена потужність до 3 кВт; земельна ділянка – 0, 2926 га
Адреса місцезнаходження майна:
Україна, Полтавська обл., Миргородський р-н., смт. Велика Багачка, вул. Чекалових, 17
Схожі пропозиції
13.09.2022
Полтавська обл., м. Решетилівка, вул. Старокиївська, 2. Оренда – приміщення 1-го поверху площею 30,70 кв.м. (В)
980.56 грн
11.43 грн / м2
Приміщення
Полтавська обл., м. Решетилівка, вул. Старокиївська, 2. Оренда – приміщення 1-го поверху площею 30,70 кв.м. (В)
Україна, Полтавська обл., м. Решетилівка, вул. Старокиївська, 2
13.04.2023
Полтавська обл., Кременчуцький р-н., м. Горішні Плавні, вул. Миру, 18. Оренда – Приміщення 2-го поверху, площею 19,90 кв.м. (В)
503.47 грн
25.30 грн / м2
Приміщення
Полтавська обл., Кременчуцький р-н., м. Горішні Плавні, вул. Миру, 18. Оренда – Приміщення 2-го поверху, площею 19,90 кв.м. (В)
Україна, Полтавська обл., Кременчуцький р-н., м. Горішні Плавні, вул. Миру, 18
Полтавська обл., м. Полтава, вул. Соборності, 33. Оренда – Приміщення 1-го поверху, площею 427,41 кв.м. (В)
28 012.45 грн
65.54 грн / м2
Приміщення
Полтавська обл., м. Полтава, вул. Соборності, 33. Оренда – Приміщення 1-го поверху, площею 427,41 кв.м. (В)
Україна, Полтавська обл., м. Полтава, вул. Соборності, 33
22.04.2025
Полтавська обл., Кременчуцький р-н, м. Кременчук, вулиця В. Пугачова, 12. Оренда – приміщення площею 688,20 кв.м. (В)
8 258.40 грн
12.00 грн / м2
Приміщення
Полтавська обл., Кременчуцький р-н, м. Кременчук, вулиця В. Пугачова, 12. Оренда – приміщення площею 688,20 кв.м. (В)
Україна, Полтавська обл., Кременчуцький р-н, м. Кременчук, вул. В. Пугачова, 12