Рівненська обл., Сарненський р-н, смт. Степань, вул. Київська, 18. Оренда – приміщення 2-го поверху та гараж, загальною площею 186,80 кв.м. (В)

3 084.07 грн
16.51 грн / м2
Україна, Рівненська обл., Сарненський р-н, смт. Степань, вул. Київська, 18
Перейти до аукціону на сайті
  • Інформація
  • Опис
  • Документи
Дата оголошення пропозиції:
17 червня 2022
Площа:
186.80 м2
Тип об’єкта:
Приміщення
Тип аукціону:
Англійський аукціон
Статус аукціону:
Аукціон не відбувся
Тип угоди:
Оренда
Розмір мінімального кроку:
200.00 ₴
Розмір гарантійного внеску:
1 850.44 ₴
Початок прийому пропозицій:
17.06.2022 12:54:07
Завершення прийому пропозицій:
19.07.2022 20:00:00
Лот:
UA-PS-2022-06-17-000008-2
№ лоту (УТК):
UTK260821_03P
Лот виставляється на торги (раз):
9
Стислий опис майна:
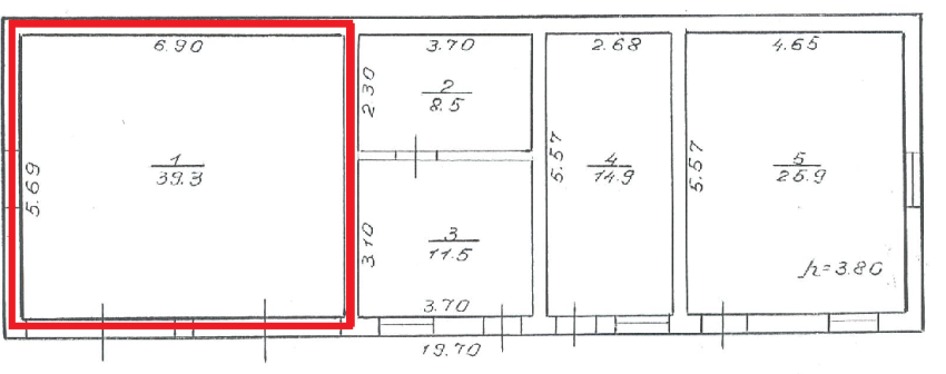
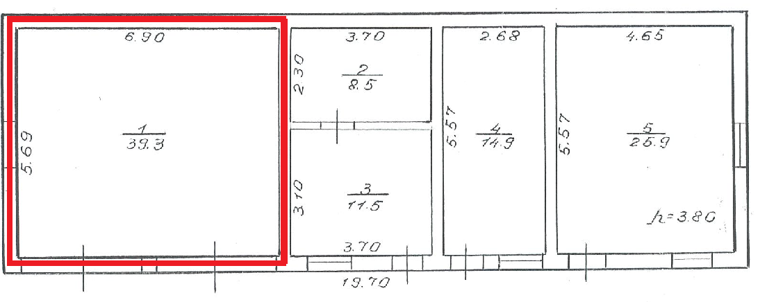
Пропонується до оренди приміщення 2-го поверху та гараж, загальною площею 186,80 кв.м. Будівлі знаходяться в серединній частині смт., досить розвинена інфраструктура. Територія огороджена та частково впорядкована. Окремий вхід відсутній. Приміщення потребують реконструкції системи електропостачання. Опалення відсутнє. Характеристики: Загальна площа – 416,20 кв.м.; Площа, запропонована до оренди 186,80 кв.м.,- з яких виробничі приміщення 147,50 кв.м. та гараж 39,30 кв.м.; Земельна ділянка - площа 0,1247 га.
Адреса місцезнаходження майна:
Україна, Рівненська обл., Сарненський р-н, смт. Степань, вул. Київська, 18
Схожі пропозиції
23.11.2023
Рівненська обл., Рівненський р-н., с. Балашівка, вул. Незалежності, 52;   Оренда – нежитлове приміщення площею 12,9 кв.м. (В)
258.00 грн
20.00 грн / м2
Приміщення
Рівненська обл., Рівненський р-н., с. Балашівка, вул. Незалежності, 52; Оренда – нежитлове приміщення площею 12,9 кв.м. (В)
Україна, Рівненська обл., Балашівка, вул. Незалежності, 52
07.12.2023
Рівненська обл., Дубенський р-н, с. Малеве, вул. Лесі Українки, 55;   Оренда – приміщення площею 18,2 м.кв. (В)
273.00 грн
15.00 грн / м2
Приміщення
Рівненська обл., Дубенський р-н, с. Малеве, вул. Лесі Українки, 55; Оренда – приміщення площею 18,2 м.кв. (В)
Україна, Рівненська обл., Малеве, вул. Лесі Українки, 55
15.02.2023
Рівненська обл., Сарненський р-н, смт. Степань, вул. Київська, 18. Оренда – приміщення 2-го поверху та гараж, загальною площею 186,80 кв.м. (В)
3 084.07 грн
16.51 грн / м2
Приміщення
Рівненська обл., Сарненський р-н, смт. Степань, вул. Київська, 18. Оренда – приміщення 2-го поверху та гараж, загальною площею 186,80 кв.м. (В)
Україна, Рівненська обл., Сарненський р-н, смт. Степань, вул. Київська, 18
м. Рівне, вул. Соборна, 56. Оренда приміщень 2 пов.
15 209.52 грн
60.96 грн / м2
Приміщення
м. Рівне, вул. Соборна, 56. Оренда приміщень 2 пов.
Україна, Рівненська обл., м. Рівне, вул. Соборна, 56