м. Чернігів, вул. Ринкова, 20 Оренда приміщень 6 пов.

1 659.91 грн
51.55 грн / м2
Україна, Чернігівська обл., м. Чернігів, вул. Ринкова, 20
Перейти до аукціону на сайті
  • Інформація
  • Опис
  • Документи
Дата оголошення пропозиції:
23 березня 2020
Площа:
32.20 м2
Тип об’єкта:
Приміщення
Тип аукціону:
Англійський аукціон
Статус аукціону:
Аукціон не відбувся
Тип угоди:
Оренда
Розмір мінімального кроку:
70.00 ₴
Розмір гарантійного внеску:
995.95 ₴
Початок прийому пропозицій:
23.03.2020 13:51:08
Завершення прийому пропозицій:
22.04.2020 20:00:00
Лот:
UA-PS-2020-03-23-000020-3
№ лоту (УТК):
UTK230320_09
Лот виставляється на торги (раз):
1
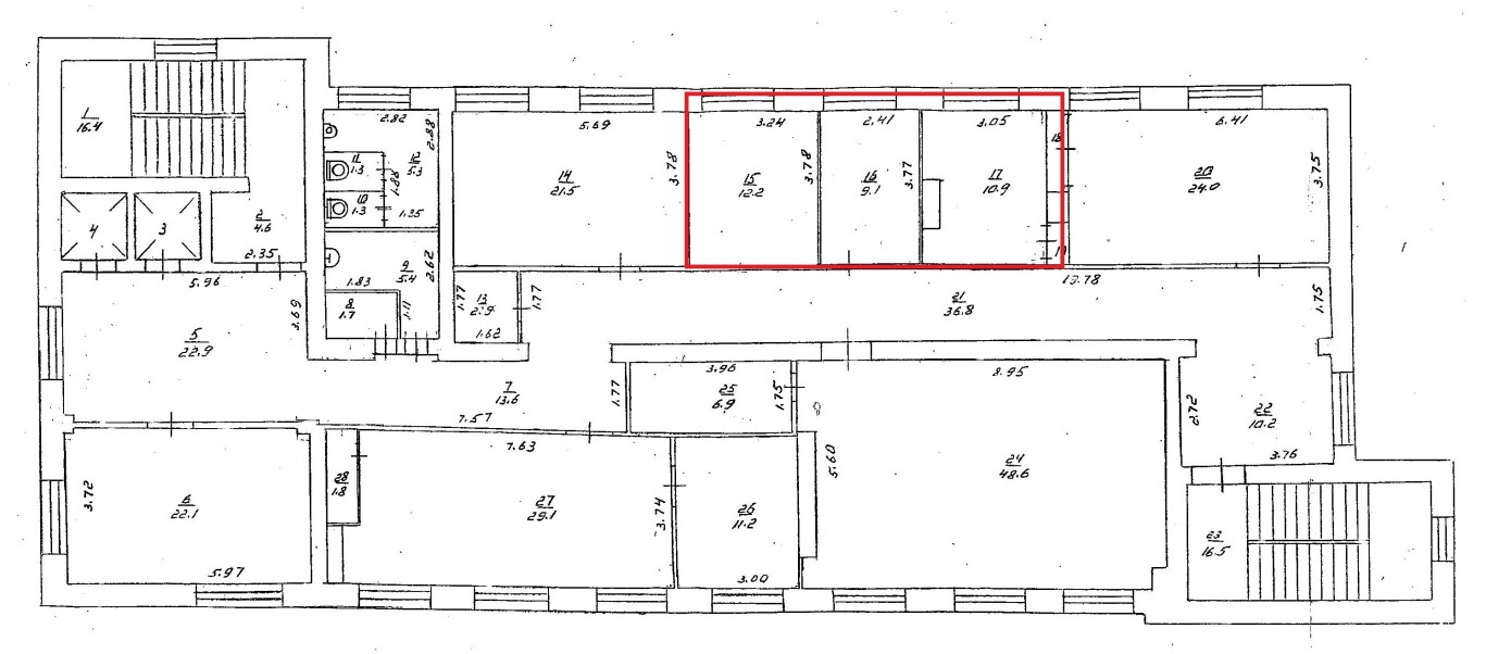
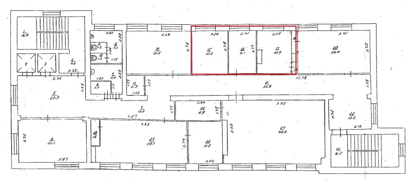
Стислий опис майна:
Пропонуються до оренди приміщення 6-го поверху. Будівля знаходиться, в центральній частині міста. Поряд знаходиться центральний ринок, зупинки міського транспорту.
Адреса місцезнаходження майна:
Україна, Чернігівська обл., м. Чернігів, вул. Ринкова, 20
Схожі пропозиції
19.12.2023
Чернігівська обл., смт. Короп, вул. Поштова, 9.Оренда – приміщення 1-го поверху площею 92,40 кв.м. (В
3 548.16 грн
38.40 грн / м2
Приміщення
Чернігівська обл., смт. Короп, вул. Поштова, 9.Оренда – приміщення 1-го поверху площею 92,40 кв.м. (В
Україна, Чернігівська обл., смт. Короп, вул. Поштова, 9
04.03.2025
Чернігівська обл., м. Сновськ, вул. Миру, 51-А;  Оренда –приміщення 2-го поверху площею 51,50 кв.м. (В)
1 141.24 грн
22.16 грн / м2
Приміщення
Чернігівська обл., м. Сновськ, вул. Миру, 51-А; Оренда –приміщення 2-го поверху площею 51,50 кв.м. (В)
Україна, Чернігівська обл., Сновськ, вулиця Миру, 51-А
Чернігівська обл., м. Ніжин, вул. Московська, 5-А. Оренда приміщення 1-го поверху
10 936.80 грн
372.00 грн / м2
Приміщення
Чернігівська обл., м. Ніжин, вул. Московська, 5-А. Оренда приміщення 1-го поверху
Україна, Чернігівська обл., м. Ніжин, вул. Московська, 5-А
25.11.2022
Чернігівська обл., м. Ніжин, вул. Московська, 5-А. Оренда – приміщення 2-го поверху площею 31,90 кв.м. (В)
348.67 грн
10.93 грн / м2
Приміщення
Чернігівська обл., м. Ніжин, вул. Московська, 5-А. Оренда – приміщення 2-го поверху площею 31,90 кв.м. (В)
Україна, Чернігівська обл., Ніжин, вулиця Московська, 5
Переглянуті пропозиції
26.11.2025
Сумська обл., м. Путивль, вул. Першотравнева, буд. 86. Оренда – офісні приміщення 2-го поверху площею 54,60 кв.м. (В)
655.20 грн
12.00 грн / м2
Офіс
Сумська обл., м. Путивль, вул. Першотравнева, буд. 86. Оренда – офісні приміщення 2-го поверху площею 54,60 кв.м. (В)
Україна, Сумська обл., м. Путивль, вул. Першотравнева, буд. 86