Полтавська обл., Глобинський р-н, смт. Градизьк, вул. Героїв Дніпра, 15. Оренда – частина будівлі

362.88 грн
10.80 грн / м2
Україна, Полтавська обл., смт. Градизьк, вул. Героїв Дніпра, 15
Перейти до аукціону на сайті
  • Інформація
  • Опис
  • Документи
Дата оголошення пропозиції:
31 березня 2020
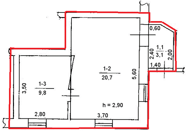
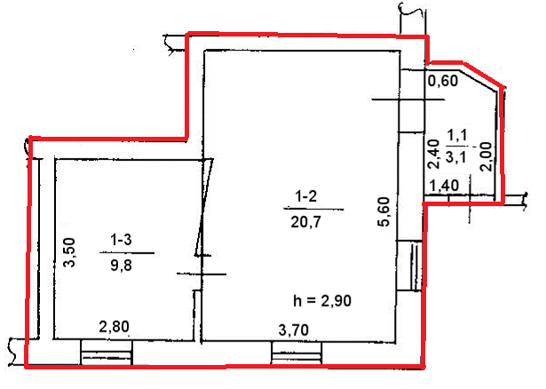
Площа:
33.60 м2
Тип об’єкта:
Будівля
Тип аукціону:
Англійський аукціон
Статус аукціону:
Аукціон не відбувся
Тип угоди:
Оренда
Розмір мінімального кроку:
10.00 ₴
Розмір гарантійного внеску:
217.73 ₴
Початок прийому пропозицій:
31.03.2020 14:36:45
Завершення прийому пропозицій:
03.05.2020 20:00:00
Лот:
UA-PS-2020-03-31-000068-2
№ лоту (УТК):
UTK310320_03C
Лот виставляється на торги (раз):
1
Стислий опис майна:
Пропонується до оренди частина будівлі Характеристики кількість поверхів – 1 електропостачання - наявне; опалення, водопостачання – відсутні земельна ділянка – 0, 0134 га (договір оренди ЗД) стан приміщення - задовільний
Адреса місцезнаходження майна:
Україна, Полтавська обл., смт. Градизьк, вул. Героїв Дніпра, 15
Схожі пропозиції
19.05.2023
Полтавська обл., Кременчуцький р-н., смт. Градизьк, вул. Героїв Дніпра, буд. 15. Оренда – частина будівлі площею 33,6 кв.м. (В)
500.64 грн
14.90 грн / м2
Будівля
Полтавська обл., Кременчуцький р-н., смт. Градизьк, вул. Героїв Дніпра, буд. 15. Оренда – частина будівлі площею 33,6 кв.м. (В)
Україна, Полтавська обл., Градизьк, вулиця Героїв Дніпра, 15
05.09.2023
Полтавська обл., Лубенський р-н, с. Засулля, вул. Молодіжна, буд.20. Оренда – одноповерхова будівля площею 189,80 кв.м. (В)
1 275.46 грн
6.72 грн / м2
Будівля
Полтавська обл., Лубенський р-н, с. Засулля, вул. Молодіжна, буд.20. Оренда – одноповерхова будівля площею 189,80 кв.м. (В)
Україна, Полтавська обл., Лубенський р-н, с. Засулля, вул. Молодіжна, буд.20
27.09.2024
Полтавська обл., Лубенський р-н, с. Засулля, вул. Молодіжна, буд.20. Оренда – двоповерхова будівля площею 368,90 кв.м. (В)
2 479.01 грн
6.72 грн / м2
Будівля
Полтавська обл., Лубенський р-н, с. Засулля, вул. Молодіжна, буд.20. Оренда – двоповерхова будівля площею 368,90 кв.м. (В)
Україна, Полтавська обл., Лубенський р-н, с. Засулля, вул. Молодіжна, буд.20
Полтава, провулок Латишева, буд. 11-А Оренда частини будівлі
31 620.84 грн
24.60 грн / м2
Будівля
Полтава, провулок Латишева, буд. 11-А Оренда частини будівлі
Україна, Полтавська обл., м. Полтава, провулок Латишева, 11-А
Переглянуті пропозиції
21.01.2025
Полтавська обл., Лубенський р-н, м. Хорол, вулиця Небесної Сотні, 17/2; Оренда – приміщення 2-х поверхової будівлі площею 355,20 кв.м. (В)
9 032.74 грн
25.43 грн / м2
Приміщення
Полтавська обл., Лубенський р-н, м. Хорол, вулиця Небесної Сотні, 17/2; Оренда – приміщення 2-х поверхової будівлі площею 355,20 кв.м. (В)
Україна, Полтавська обл., Хорол, вулиця Небесної Сотні, 17/2
24.03.2023
Чернігівська обл., м. Чернігів, проспект Миру, 35Б. Оренда – офісні приміщення 1 та 2 поверхів загальною площею 242,8 кв.м. (В)
26 950.80 грн
111.00 грн / м2
Офіс
Чернігівська обл., м. Чернігів, проспект Миру, 35Б. Оренда – офісні приміщення 1 та 2 поверхів загальною площею 242,8 кв.м. (В)
Україна, Чернігівська обл., м. Чернігів, проспект Миру, 35Б
Львівська область., смт. Підкамінь, вул. Незалежності, 48. Оренда – приміщення 1-го поверху площею 27,50 кв. м. (В)
500.23 грн
18.19 грн / м2
Приміщення
Львівська область., смт. Підкамінь, вул. Незалежності, 48. Оренда – приміщення 1-го поверху площею 27,50 кв. м. (В)
Україна, Львівська обл., смт. Підкамінь, вул. Незалежності, 48
13.11.2020
ГОЛЛАНДСЬКИЙ АУКЦІОН! Сумська обл., м. Кролевець, вул. Миру, 8. Оренда – приміщення 2-го поверху площею 17,52 кв.м. (В)
231.44 грн
13.21 грн / м2
Приміщення
ГОЛЛАНДСЬКИЙ АУКЦІОН! Сумська обл., м. Кролевець, вул. Миру, 8. Оренда – приміщення 2-го поверху площею 17,52 кв.м. (В)
Україна, Сумська обл., м. Кролевець, вул. Миру, 8