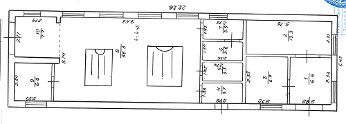
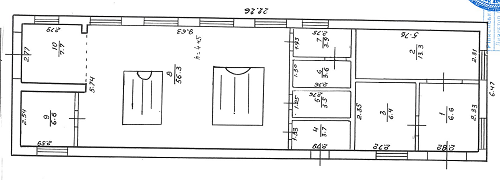
Рівненська обл., Дубровицький р-н, с. Орв’яниця, вул. Центральна, 128. Оренда приміщень 1-го поверху

2 310.12 грн
20.70 грн / м2
Україна, Рівненська обл., с. Орв’яниця, вул. Центральна, 128
Перейти до аукціону на сайті
  • Інформація
  • Опис
  • Документи
Дата оголошення пропозиції:
14 квітня 2020
Площа:
111.60 м2
Тип об’єкта:
Приміщення
Тип аукціону:
Англійський аукціон
Статус аукціону:
Аукціон не відбувся
Тип угоди:
Оренда
Розмір мінімального кроку:
50.00 ₴
Розмір гарантійного внеску:
1 386.07 ₴
Початок прийому пропозицій:
14.04.2020 15:32:04
Завершення прийому пропозицій:
13.05.2020 20:00:00
Лот:
UA-PS-2020-04-14-000111-2
№ лоту (УТК):
UTK140420_08
Лот виставляється на торги (раз):
1
Стислий опис майна:
Пропонуються до оренди приміщення 1-го поверху. Будівля знаходиться на окраїні села, але поряд відділення Укрпошти, аптека, магазини та школа. Зручна транспортна розв'язка. Окремий вхід.
Адреса місцезнаходження майна:
Україна, Рівненська обл., с. Орв’яниця, вул. Центральна, 128
Схожі пропозиції
21.10.2025
Рівненська обл., Рівненський р-н, с.Тучин, вул.Поштова, 4. Оренда – виробничі приміщення загальною площею 243,1 кв.м. (В)
3 882.31 грн
15.97 грн / м2
Приміщення
Рівненська обл., Рівненський р-н, с.Тучин, вул.Поштова, 4. Оренда – виробничі приміщення загальною площею 243,1 кв.м. (В)
Україна, Рівненська обл., Рівненський р-н, с.Тучин, вул.Поштова, 4
м. Рівне, вул. В. Чорновола, 1. Оренда – приміщення 5-го поверху
3 790.08 грн
84.60 грн / м2
Приміщення
м. Рівне, вул. В. Чорновола, 1. Оренда – приміщення 5-го поверху
Україна, Рівненська обл., м. Рівне, вул. В. Чорновола, 1
Рівненська обл. м. Радивилів, вул. О.Невського, 1. Оренда – приміщення підвалу , 2 – го та 3 –го поверху площею 330,8 кв.м. (В)
3 986.14 грн
12.05 грн / м2
Приміщення
Рівненська обл. м. Радивилів, вул. О.Невського, 1. Оренда – приміщення підвалу , 2 – го та 3 –го поверху площею 330,8 кв.м. (В)
Україна, Рівненська обл., м. Радивилів, вул. О.Невського, 1
04.07.2023
Рівненська обл., Рівненський р-н, с. Дорогобуж, вул. Гудкова, 84. Оренда – виробничі приміщення площею 19,4 кв.м. (В)
500.13 грн
25.78 грн / м2
Приміщення
Рівненська обл., Рівненський р-н, с. Дорогобуж, вул. Гудкова, 84. Оренда – виробничі приміщення площею 19,4 кв.м. (В)
Україна, Рівненська обл., Рівненський р-н, с. Дорогобуж, вул. Гудкова, 84
Переглянуті пропозиції
10.05.2024
Одеська обл., м. Білгород-Дністровський, вул. Першотравнева, буд.№70. Оренда – приміщення 2-го поверху площею 15,30 кв.м (В)
260.10 грн
17.00 грн / м2
Приміщення
Одеська обл., м. Білгород-Дністровський, вул. Першотравнева, буд.№70. Оренда – приміщення 2-го поверху площею 15,30 кв.м (В)
Україна, Одеська обл., м. Білгород-Дністровський, вул. Першотравнева, буд.№70
26.10.2022
Волинська обл., м. Луцьк, вул. Лесі Українки, 52. Оренда – приміщення 3-го поверху адмінбудівлі площею 80,8 кв.м (В)
3 732.96 грн
46.20 грн / м2
Приміщення
Волинська обл., м. Луцьк, вул. Лесі Українки, 52. Оренда – приміщення 3-го поверху адмінбудівлі площею 80,8 кв.м (В)
Україна, Волинська обл., м. Луцьк, вулиця Лесі Українки, 52
11.03.2025
Львівська обл., м. Самбір, вул.Братів Бережницьких, 1б. Оренда – майновий комплекс площею 430,50 кв. м. (В)
15 747.69 грн
36.58 грн / м2
Комплекс
Львівська обл., м. Самбір, вул.Братів Бережницьких, 1б. Оренда – майновий комплекс площею 430,50 кв. м. (В)
Україна, Львівська обл., м. Самбір, вул. Братів Бережницьких, 1б
13.09.2022
Полтавська обл., м. Решетилівка, вул. Старокиївська, 2. Оренда – приміщення 1-го поверху площею 30,70 кв.м. (В)
980.56 грн
11.43 грн / м2
Приміщення
Полтавська обл., м. Решетилівка, вул. Старокиївська, 2. Оренда – приміщення 1-го поверху площею 30,70 кв.м. (В)
Україна, Полтавська обл., м. Решетилівка, вул. Старокиївська, 2