м. Чернігів, проспект Миру, 28 Оренда приміщень 2го поверху, 131,1 кв.м.

19 965.00 грн
150.00 грн / м2
Україна, Чернігівська обл., м. Чернігів, проспект Миру, 28
Перейти до аукціону на сайті
  • Інформація
  • Опис
  • Документи
Дата оголошення пропозиції:
17 квітня 2020
Площа:
133.10 м2
Тип об’єкта:
Приміщення
Тип аукціону:
Англійський аукціон
Статус аукціону:
Аукціон не відбувся
Тип угоди:
Оренда
Розмір мінімального кроку:
200.00 ₴
Розмір гарантійного внеску:
11 979.00 ₴
Початок прийому пропозицій:
17.04.2020 11:41:37
Завершення прийому пропозицій:
17.05.2020 20:00:00
Лот:
UA-PS-2020-04-17-000009-1
№ лоту (УТК):
UTK170420_14
Лот виставляється на торги (раз):
1
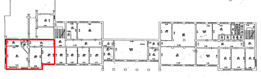
Стислий опис майна:
Пропонується до оренди приміщення 2-го поверху площею 133,1кв. м. Будівля знаходиться в центрі Чернігова на перетині двох центральних проспектів міста, в пішій доступності до міського транспорту (до 5 хвилин), в районі розміщення центрального ринку, в місці зосередження торгових центрів, кафе і ресторанів, що забезпечує високі автомобільний та пішохідний потоки. Характеристики: кількість поверхів – 3; опалення, водопостачання, водовідведення – централізоване; земельна ділянка – 0,2776 га (договір оренди)
Адреса місцезнаходження майна:
Україна, Чернігівська обл., м. Чернігів, проспект Миру, 28
Схожі пропозиції
16.11.2023
Чернігівська обл., смт. Короп, вул. Поштова, 9.Оренда – приміщення 1-го поверху площею 92,40 кв.м. (В
4 166.32 грн
45.09 грн / м2
Приміщення
Чернігівська обл., смт. Короп, вул. Поштова, 9.Оренда – приміщення 1-го поверху площею 92,40 кв.м. (В
Україна, Чернігівська обл., смт. Короп, вул. Поштова, 9
Чернігівська обл., м. Борзна, вул. П.Куліша, 100. Оренда – приміщення 2 поверху площею 56,9 кв.м. (В)
1 769.59 грн
31.10 грн / м2
Приміщення
Чернігівська обл., м. Борзна, вул. П.Куліша, 100. Оренда – приміщення 2 поверху площею 56,9 кв.м. (В)
Україна, Чернігівська обл., м. Борзна, вул. П.Куліша, 100
14.02.2024
Чернігівська обл., м. Чернігів, вул. Рокоссовського, 33;   Оренда – виробничі приміщення 3-го поверху площею 695,5 кв.м. (В)
32 966.70 грн
47.40 грн / м2
Приміщення
Чернігівська обл., м. Чернігів, вул. Рокоссовського, 33; Оренда – виробничі приміщення 3-го поверху площею 695,5 кв.м. (В)
Україна, Чернігівська обл., Чернігів, вулиця Рокоссовського, 33
Чернігівська обл., м. Борзна, вул. П.Куліша, 100. Оренда – приміщення 2 поверху площею 56,9 кв.м. (В)
1 457.21 грн
25.61 грн / м2
Приміщення
Чернігівська обл., м. Борзна, вул. П.Куліша, 100. Оренда – приміщення 2 поверху площею 56,9 кв.м. (В)
Україна, Чернігівська обл., м. Борзна, вул. П.Куліша, 100