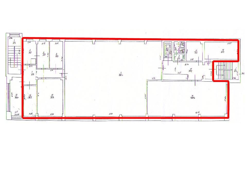
Івано-Франківська обл., м. Коломия, вул. Чорновола, 45. Оренда приміщень 5-го поверху

7 560.53 грн
14.88 грн / м2
Україна, Івано-Франківська обл., м. Коломия, вул. Чорновола, 45
Перейти до аукціону на сайті
  • Інформація
  • Опис
  • Документи
Дата оголошення пропозиції:
23 квітня 2020
Площа:
508.10 м2
Тип об’єкта:
Приміщення
Тип аукціону:
Англійський аукціон
Статус аукціону:
Аукціон не відбувся
Тип угоди:
Оренда
Розмір мінімального кроку:
200.00 ₴
Розмір гарантійного внеску:
4 536.32 ₴
Початок прийому пропозицій:
23.04.2020 11:35:44
Завершення прийому пропозицій:
24.05.2020 20:00:00
Лот:
UA-PS-2020-04-23-000015-2
№ лоту (УТК):
UTK180320_06
Лот виставляється на торги (раз):
2
Стислий опис майна:
Пропонуються до оренди приміщення 5-го поверху. Будівля знаходиться в центральній частині міста, розвинена інфраструктура, високий пішохідний потік.
Адреса місцезнаходження майна:
Україна, Івано-Франківська обл., м. Коломия, вул. Чорновола, 45
Схожі пропозиції
Івано-Франківська обл., смт. Рожнятів, площа Єдності, 9. Оренда – Приміщення 3-го поверху 100,8 кв.м.
1 572.48 грн
15.60 грн / м2
Приміщення
Івано-Франківська обл., смт. Рожнятів, площа Єдності, 9. Оренда – Приміщення 3-го поверху 100,8 кв.м.
Україна, Івано-Франківська обл., смт. Рожнятів, площа Єдності, 9
29.03.2023
Івано-Франківська обл., м. Івано-Франківськ, вул. В.Симоненка, 1. Оренда – приміщення цокольного поверху, площею 250,7 м.кв. (В)
12 885.98 грн
51.40 грн / м2
Приміщення
Івано-Франківська обл., м. Івано-Франківськ, вул. В.Симоненка, 1. Оренда – приміщення цокольного поверху, площею 250,7 м.кв. (В)
Україна, Івано-Франківська обл., м. Івано-Франківськ, вул. В.Симоненка, 1
30.09.2022
Івано-Франківська обл., м. Івано-Франківськ, вул. В.Симоненка, 1. Оренда – приміщення цокольного поверху, площею 250,7 м.кв. (В)
12 885.98 грн
51.40 грн / м2
Приміщення
Івано-Франківська обл., м. Івано-Франківськ, вул. В.Симоненка, 1. Оренда – приміщення цокольного поверху, площею 250,7 м.кв. (В)
Україна, Івано-Франківська обл., м. Івано-Франківськ, вул. В.Симоненка, 1
Івано-Франківська обл., смт. Верховина, вул. Франка, 6. Оренда приміщення 2-го поверху
340.38 грн
18.60 грн / м2
Приміщення
Івано-Франківська обл., смт. Верховина, вул. Франка, 6. Оренда приміщення 2-го поверху
Україна, Івано-Франківська обл., смт. Верховина, вул. Франка, 6
Переглянуті пропозиції
м. Одеса, вул. Ніжинська, 44.. Оренда – приміщення 1-го поверху, площею 93,40 кв.м. (П)
6 214.84 грн
66.54 грн / м2
Приміщення
м. Одеса, вул. Ніжинська, 44.. Оренда – приміщення 1-го поверху, площею 93,40 кв.м. (П)
Україна, Одеська обл., м. Одеса, вул. Ніжинська, 44
27.09.2024
Харківська обл., м. Харків, вул. Коцарська, 45, літер «А-4»;  Оренда – приміщення на 2-му поверсі загальною площею 14,30 кв.м. (В)
768.77 грн
53.76 грн / м2
Приміщення
Харківська обл., м. Харків, вул. Коцарська, 45, літер «А-4»; Оренда – приміщення на 2-му поверсі загальною площею 14,30 кв.м. (В)
Україна, Харківська обл., Харків, вулиця Коцарська, 45
07.02.2025
Дніпропетровська обл., м. Кам’янське, просп. Свободи, 44. Оренда – приміщення 2-го поверху загальною площею 95,30 кв.м
2 424.43 грн
25.44 грн / м2
Приміщення
Дніпропетровська обл., м. Кам’янське, просп. Свободи, 44. Оренда – приміщення 2-го поверху загальною площею 95,30 кв.м
Україна, Дніпропетровська обл., м. Кам’янське, просп. Свободи, 44