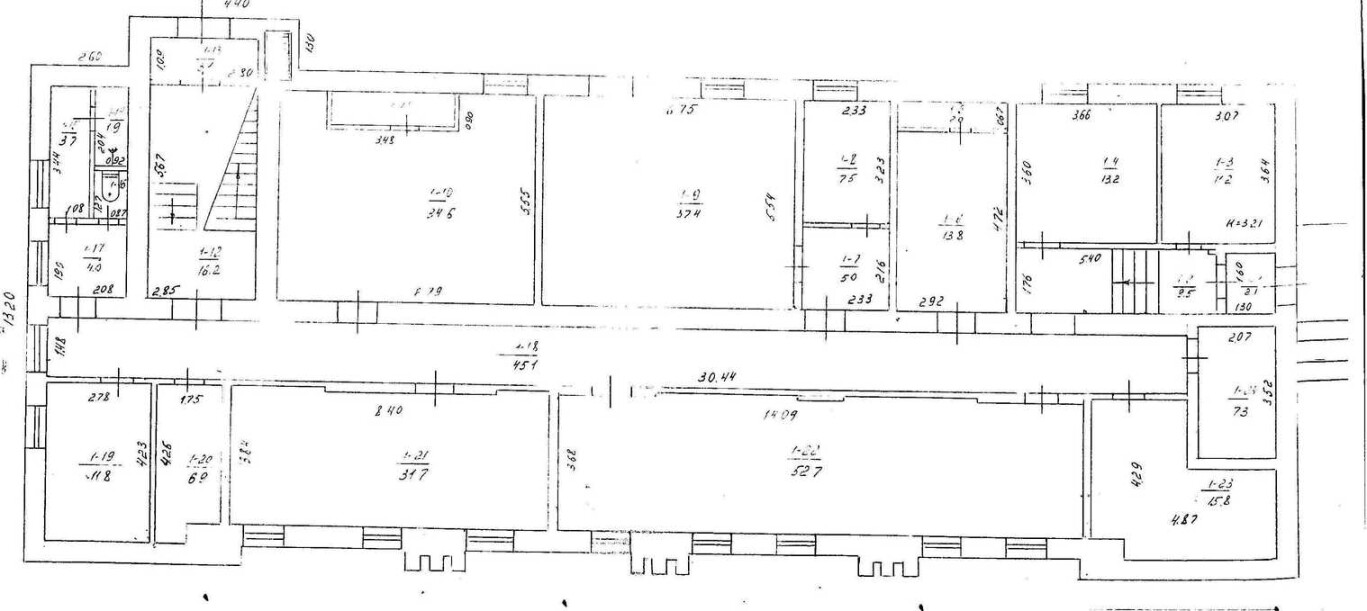
м. Чернігів, вул. Елеваторна, 6. Оренда приміщень 382,7 кв.м.

11 572.85 грн
30.24 грн / м2
Україна, Чернігівська обл., м. Чернігів, вул. Елеваторна, 6
Перейти до аукціону на сайті
  • Інформація
  • Опис
  • Документи
Дата оголошення пропозиції:
26 травня 2020
Площа:
382.70 м2
Тип об’єкта:
Приміщення
Тип аукціону:
Англійський аукціон
Статус аукціону:
Аукціон не відбувся
Тип угоди:
Оренда
Розмір мінімального кроку:
150.00 ₴
Розмір гарантійного внеску:
6 943.71 ₴
Початок прийому пропозицій:
26.05.2020 13:30:42
Завершення прийому пропозицій:
24.06.2020 20:00:00
Лот:
UA-PS-2020-05-26-000063-2
№ лоту (УТК):
UTK310320_11
Лот виставляється на торги (раз):
2
Стислий опис майна:
Пропонуються до оренди приміщення на 1 та 2 поверхах. Будівля знаходиться на околиці в промисловій частині міста. Характеристики: Кількість поверхів – 2; Загальна площа будівлі – 758,2 кв.м.; Опалення- відсутне; Встановлений електролічильник; Земельна ділянка – 0,0740 га (договір оренди)
Адреса місцезнаходження майна:
Україна, Чернігівська обл., м. Чернігів, вул. Елеваторна, 6
Схожі пропозиції
Чернігівська обл., м. Новгород-Сіверський, вул. Вокзальна, 9а. Оренда – нежитлове приміщення 1-го поверху, площею 44,75 кв.м. (В)
1 648.14 грн
36.83 грн / м2
Приміщення
Чернігівська обл., м. Новгород-Сіверський, вул. Вокзальна, 9а. Оренда – нежитлове приміщення 1-го поверху, площею 44,75 кв.м. (В)
Україна, Чернігівська обл., Новгород-Сіверський, вул. Вокзальна, 9а
23.07.2020
м. Чернігів, проспект Миру, 28 Оренда приміщень 2го поверху, 131,1 кв.м.
12 777.60 грн
96.00 грн / м2
Приміщення
м. Чернігів, проспект Миру, 28 Оренда приміщень 2го поверху, 131,1 кв.м.
Україна, Чернігівська обл., м. Чернігів, проспект Миру, 28
Чернігівська обл., м. Ніжин, вул. Московська, 5-А. Оренда – приміщення 2-го поверху площею 44,1 кв.м.
926.54 грн
21.01 грн / м2
Приміщення
Чернігівська обл., м. Ніжин, вул. Московська, 5-А. Оренда – приміщення 2-го поверху площею 44,1 кв.м.
Україна, Чернігівська обл., Ніжин, вул. Московська, 5-А
17.11.2023
Чернігівська обл., м. Чернігів, вул. Текстильників,7;   Оренда – приміщення 2-го поверху та частини підвалу, площею 363,6 кв.м. (В)
17 234.64 грн
47.40 грн / м2
Приміщення
Чернігівська обл., м. Чернігів, вул. Текстильників,7; Оренда – приміщення 2-го поверху та частини підвалу, площею 363,6 кв.м. (В)
Україна, Чернігівська обл., Чернігів, вулиця Текстильників, 7
Переглянуті пропозиції
Сумська обл., м. Лебедин, вул. Героїв Майдану, буд. 23, оренда – будівля площею 1 175,1 кв.м (В)
17 626.50 грн
15.00 грн / м2
Будівля
Сумська обл., м. Лебедин, вул. Героїв Майдану, буд. 23, оренда – будівля площею 1 175,1 кв.м (В)
Україна, Сумська обл., Лебедин, вул. Героїв Майдану, буд. 23
30.04.2025
м.Харків, вул. Конторська,14 в. Оренда – приміщення 2-го поверху площею 25,7 кв.м (В)
2 032.61 грн
79.09 грн / м2
Приміщення
м.Харків, вул. Конторська,14 в. Оренда – приміщення 2-го поверху площею 25,7 кв.м (В)
Україна, Харківська обл., м. Харків, вул. Конторська,14
05.09.2023
Чернігівська обл., м. Борзна, вул. П.Куліша, 100. Оренда – приміщення 2 поверху площею 56,9 кв.м. (В)
504.13 грн
8.86 грн / м2
Приміщення
Чернігівська обл., м. Борзна, вул. П.Куліша, 100. Оренда – приміщення 2 поверху площею 56,9 кв.м. (В)
Україна, Чернігівська обл., м. Борзна, вул. П.Куліша, 100
21.03.2024
Харківська обл., Харківський р-н, м. Мерефа, вул. Дніпровська, 226. Оренда – приміщення 2-го поверху будівлі «Дизельна», площею 85,80 кв.м. (В)
883.74 грн
10.30 грн / м2
Приміщення
Харківська обл., Харківський р-н, м. Мерефа, вул. Дніпровська, 226. Оренда – приміщення 2-го поверху будівлі «Дизельна», площею 85,80 кв.м. (В)
Україна, Харківська обл., Харківський р-н, м. Мерефа, вул. Дніпровська, 226