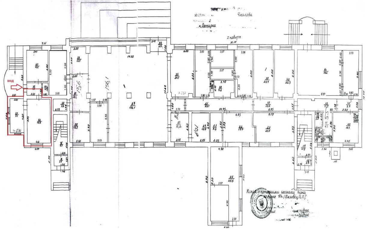
Сумська обл., м. Охтирка, вул. Чкалова, 2. Оренда – приміщення 1-го поверху

530.44 грн
15.51 грн / м2
Україна, Сумська обл., м. Охтирка, вул. Чкалова, буд. 2
Перейти до аукціону на сайті
  • Інформація
  • Опис
  • Документи
Дата оголошення пропозиції:
15 червня 2020
Площа:
34.20 м2
Тип об’єкта:
Приміщення
Тип аукціону:
Англійський аукціон
Статус аукціону:
Аукціон не відбувся
Тип угоди:
Оренда
Розмір мінімального кроку:
50.00 ₴
Розмір гарантійного внеску:
318.27 ₴
Початок прийому пропозицій:
15.06.2020 10:05:45
Завершення прийому пропозицій:
14.07.2020 20:00:00
Лот:
UA-PS-2020-06-15-000014-3
№ лоту (УТК):
UTK150620_05P
Лот виставляється на торги (раз):
1
Стислий опис майна:
Пропонується до оренди офісні приміщення. Знаходиться на першому поверсі 3-поверхового будинку АТС в центральній частині міста. Поряд розвинена інфраструктура, високі автомобільний та пішохідний потоки. Вхід з фасаду будівлі. Приміщення потребують косметичного ремонту. Характеристики кількість поверхів – 3; опалення, електропостачання - наявне; водопостачання та санвузол загального користування на 1 поверсі або є можливість облаштування самостійно; земельна ділянка – 0,6992 га (договір оренди ЗД); стан приміщення –задовільний.
Адреса місцезнаходження майна:
Україна, Сумська обл., м. Охтирка, вул. Чкалова, буд. 2
Схожі пропозиції
07.09.2022
Сумська обл., м. Охтирка, вул. Пушкіна, буд. 26. Оренда – виробничі приміщення (гаражі) площею 159,00 кв. м. (В)
5 724.00 грн
36.00 грн / м2
Приміщення
Сумська обл., м. Охтирка, вул. Пушкіна, буд. 26. Оренда – виробничі приміщення (гаражі) площею 159,00 кв. м. (В)
Україна, Сумська обл., м. Охтирка, вул. Пушкіна, буд. 26
15.07.2025
Сумська обл., смт. Недригайлів, вул. Незалежності, буд. 8. Оренда – приміщення 3-го поверху площею 118,60 кв.м. (В
1 423.20 грн
12.00 грн / м2
Приміщення
Сумська обл., смт. Недригайлів, вул. Незалежності, буд. 8. Оренда – приміщення 3-го поверху площею 118,60 кв.м. (В
Україна, Сумська обл., Недригайлів, Недригайлів, вул. Незалежності, буд. 8
04.03.2025
Сумська обл., Конотопський р-н, с. Воскресенка, вул. Покровська, буд. 2-А;   Оренда – нежитлове приміщення площею 24,70 кв. м. (В)
532.78 грн
21.57 грн / м2
Приміщення
Сумська обл., Конотопський р-н, с. Воскресенка, вул. Покровська, буд. 2-А; Оренда – нежитлове приміщення площею 24,70 кв. м. (В)
Україна, Сумська обл., с. Воскресенка, Покровська вулиця, 2-А
Сумська обл., м. Суми, вул. Петропавлівська, буд. 65. Оренда – приміщення гаражу площею 37,0 кв. м. (В)
2 222.96 грн
60.08 грн / м2
Приміщення
Сумська обл., м. Суми, вул. Петропавлівська, буд. 65. Оренда – приміщення гаражу площею 37,0 кв. м. (В)
Україна, Сумська обл., м. Суми, вул. Петропавлівська, буд. 65
Переглянуті пропозиції
14.02.2024
Полтавська обл., Полтавський р-н, смт. Чутове, вул. Центральна, 24. Оренда – Приміщення 1-го поверху площею 6,10 кв.м. (В)
286.70 грн
47.00 грн / м2
Приміщення
Полтавська обл., Полтавський р-н, смт. Чутове, вул. Центральна, 24. Оренда – Приміщення 1-го поверху площею 6,10 кв.м. (В)
Україна, Полтавська обл., Полтавський р-н, смт. Чутове, вул. Центральна, 24