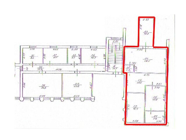
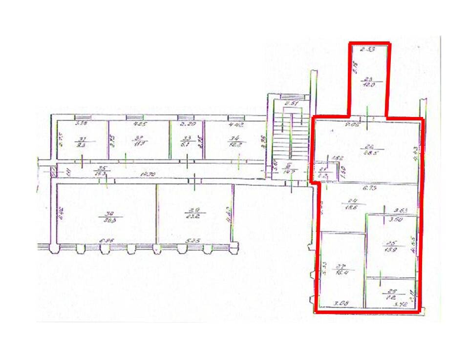
Івано-Франківська обл., смт. Рожнятів, площа Єдності, 9. Оренда – Приміщення 3-го поверху 100,8 кв.м.

1 005.98 грн
9.98 грн / м2
Україна, Івано-Франківська обл., смт. Рожнятів, площа Єдності, 9
Перейти до аукціону на сайті
  • Інформація
  • Опис
  • Документи
Дата оголошення пропозиції:
17 червня 2020
Площа:
100.80 м2
Тип об’єкта:
Приміщення
Тип аукціону:
Англійський аукціон
Статус аукціону:
Аукціон не відбувся
Тип угоди:
Оренда
Розмір мінімального кроку:
80.00 ₴
Розмір гарантійного внеску:
603.59 ₴
Початок прийому пропозицій:
17.06.2020 12:17:12
Завершення прийому пропозицій:
16.07.2020 20:00:00
Лот:
UA-PS-2020-06-17-000059-2
№ лоту (УТК):
UTK130420_17C
Лот виставляється на торги (раз):
3
Стислий опис майна:
Пропонуються до оренди приміщення 3-го поверху. Будівля знаходиться в центральній частині населеного пункту. Високі пішохідний та транспортний потоки. Характеристики кількість поверхів – 3 опалення газове земельна ділянка – 0,1126 га (договір оренди)
Адреса місцезнаходження майна:
Україна, Івано-Франківська обл., смт. Рожнятів, площа Єдності, 9
Схожі пропозиції
12.03.2024
Івано-Франківська обл., м. Івано-Франківськ, вул. Довга, 58. Оренда – приміщення 3-го поверху виробничого будинку, площею 537,7 м.кв. (П)
57 318.82 грн
106.60 грн / м2
Приміщення
Івано-Франківська обл., м. Івано-Франківськ, вул. Довга, 58. Оренда – приміщення 3-го поверху виробничого будинку, площею 537,7 м.кв. (П)
Україна, Івано-Франківська обл., м. Івано-Франківськ, вул. Довга, 58
21.06.2024
Івано-Франківська обл., Калуський  район, смт. Рожнятів, площа Єдності, 9;   Оренда – приміщення 3-го поверху площею 100,8 кв.м. (В)
1 257.98 грн
12.48 грн / м2
Приміщення
Івано-Франківська обл., Калуський район, смт. Рожнятів, площа Єдності, 9; Оренда – приміщення 3-го поверху площею 100,8 кв.м. (В)
Україна, Івано-Франківська обл., смт. Рожнятів, площа Єдності, 9
Івано-Франківська обл., м. Косів, вул. Гвардійська, 15. Оренда нежитлових приміщень 479,8 кв.м.
4 567.70 грн
9.52 грн / м2
Приміщення
Івано-Франківська обл., м. Косів, вул. Гвардійська, 15. Оренда нежитлових приміщень 479,8 кв.м.
Україна, Івано-Франківська обл., м. Косів, вул. Гвардійська, 15
13.09.2023
Івано-Франківська обл., Івано-Франківський р-н, м.Бурштин вул. Січових Стрільців, 17.Оренда –  приміщення 1-го поверху виробничого будинку, площею 35,4 кв.м. (В)
Переглянуті пропозиції
Рівненська обл., м. Сарни, Широка 33 Оренда приміщення 1 пов.
758.16 грн
23.40 грн / м2
Приміщення
Рівненська обл., м. Сарни, Широка 33 Оренда приміщення 1 пов.
Україна, Рівненська обл., м. Сарни, вул. Широка, буд. 33
Харківська обл., м. Лозова, вул. Михайла Грушевського, 7. Оренда – приміщення 1-го та 2-го поверхів
12 961.80 грн
22.80 грн / м2
Приміщення
Харківська обл., м. Лозова, вул. Михайла Грушевського, 7. Оренда – приміщення 1-го та 2-го поверхів
Україна, Харківська обл., м. Лозова, вул. Михайла Грушевського, буд. 7
17.11.2020
ГОЛЛАНДСЬКИЙ АУКЦІОН. Полтавська обл., м. Миргород, вулиця Гоголя, буд. 96/9 . Оренда – приміщення 3-го поверху площею 20,1 кв.м. (В)
818.07 грн
40.70 грн / м2
Приміщення
ГОЛЛАНДСЬКИЙ АУКЦІОН. Полтавська обл., м. Миргород, вулиця Гоголя, буд. 96/9 . Оренда – приміщення 3-го поверху площею 20,1 кв.м. (В)
Україна, Полтавська обл., м. Миргород, вул. Гоголя, буд. 96/9
Полтавська обл., м. Кременчук, вул. Вадима Пугачова, 12 Оренда приміщень 3й пов.
30 251.52 грн
46.80 грн / м2
Приміщення
Полтавська обл., м. Кременчук, вул. Вадима Пугачова, 12 Оренда приміщень 3й пов.
Україна, Полтавська обл., м. Кременчук, вул. Вадима Пугачова, 12