Полтавська обл., м. Решетилівка, вул. Полтавська, 50. Оренда - підсобне приміщення та гараж

965.76 грн
19.20 грн / м2
Україна, Полтавська обл., м. Решетилівка, вул. Полтавська, буд. 50
Перейти до аукціону на сайті
  • Інформація
  • Опис
  • Документи
Дата оголошення пропозиції:
22 червня 2020
Площа:
50.30 м2
Тип об’єкта:
Приміщення
Тип аукціону:
Англійський аукціон
Статус аукціону:
Аукціон не відбувся
Тип угоди:
Оренда
Розмір мінімального кроку:
20.00 ₴
Розмір гарантійного внеску:
579.46 ₴
Початок прийому пропозицій:
22.06.2020 11:54:12
Завершення прийому пропозицій:
21.07.2020 20:00:00
Лот:
UA-PS-2020-06-22-000058-3
№ лоту (УТК):
UTK160420_10P
Лот виставляється на торги (раз):
3
Стислий опис майна:
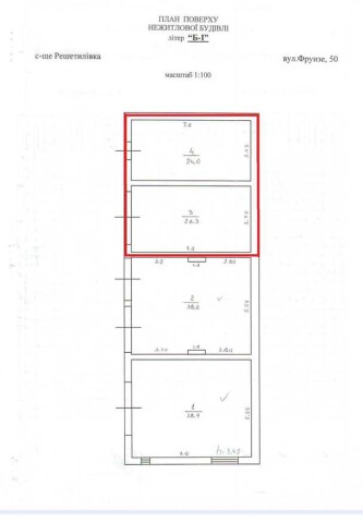
Пропонується до оренди підсобне приміщення та гараж Характеристики кількість поверхів – 1 електропостачання - відсутнє; земельна ділянка – 0, 2039 га (договір оренди ЗД) стан приміщення - задовільний
Адреса місцезнаходження майна:
Україна, Полтавська обл., м. Решетилівка, вул. Полтавська, буд. 50
Схожі пропозиції
12.07.2024
Полтавська обл., Полтавський р-н, cмт. Чутове, вул. Незалежності, 24. Оренда – приміщення 3-го поверху площею 30,60 кв.м. (В)
729.50 грн
23.84 грн / м2
Приміщення
Полтавська обл., Полтавський р-н, cмт. Чутове, вул. Незалежності, 24. Оренда – приміщення 3-го поверху площею 30,60 кв.м. (В)
Україна, Полтавська обл., Полтавський р-н, cмт. Чутове, вул. Незалежності, 24
15.10.2025
Полтавська обл., Миргородський район, смт. Комишня, вул. Миру, 101. Оренда – приміщення загальною площею 552,90 кв.м. (В)
10 018.55 грн
18.12 грн / м2
Приміщення
Полтавська обл., Миргородський район, смт. Комишня, вул. Миру, 101. Оренда – приміщення загальною площею 552,90 кв.м. (В)
Україна, Полтавська обл., Миргородський район, смт. Комишня, вул. Миру, 101
19.08.2022
Полтавська обл., м. Кременчук, вулиця Соборна, 17. Оренда – приміщення 2-го поверху площею 22,40 кв.м. (В)
1 770.72 грн
79.05 грн / м2
Приміщення
Полтавська обл., м. Кременчук, вулиця Соборна, 17. Оренда – приміщення 2-го поверху площею 22,40 кв.м. (В)
Україна, Полтавська обл., Кременчук, Соборна вулиця, 17
Полтавська обл., м. Решетилівка, вул. Старокиївська, 2. Оренда - приміщення 2-го поверху площею 31,0 кв.м. (В)
416.64 грн
13.44 грн / м2
Приміщення
Полтавська обл., м. Решетилівка, вул. Старокиївська, 2. Оренда - приміщення 2-го поверху площею 31,0 кв.м. (В)
Україна, Полтавська обл., м. Решетилівка, вул. Старокиївська, 2
Переглянуті пропозиції
м. Харків, вул. Салтівське шосе, 2 Оренда приміщення 63,0 кв.м., 1 пов.
1 161.09 грн
18.43 грн / м2
Приміщення
м. Харків, вул. Салтівське шосе, 2 Оренда приміщення 63,0 кв.м., 1 пов.
Україна, Харківська обл., м. Харків, вул. Салтівське шосе, 2
Сумська обл., смт. Липова Долина, вул. Загорянка, буд. 2. Оренда – офісне приміщення 2-го поверху площею 12,36 кв.м. (В)
277.36 грн
22.44 грн / м2
Офіс
Сумська обл., смт. Липова Долина, вул. Загорянка, буд. 2. Оренда – офісне приміщення 2-го поверху площею 12,36 кв.м. (В)
Україна, Сумська обл., смт. Липова Долина, вул. Загорянка, буд. 2