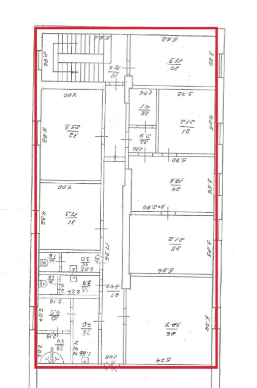
м. Рівне, вул. Транспортна,14. Оренда – приміщення 1-го та 2-го поверху

5 317.43 грн
17.66 грн / м2
Україна, Рівненська обл., м. Рівне, вул. Транспортна,14
Перейти до аукціону на сайті
  • Інформація
  • Опис
  • Документи
Дата оголошення пропозиції:
23 червня 2020
Площа:
301.10 м2
Тип об’єкта:
Приміщення
Тип аукціону:
Англійський аукціон
Статус аукціону:
Аукціон не відбувся
Тип угоди:
Оренда
Розмір мінімального кроку:
500.00 ₴
Розмір гарантійного внеску:
3 190.46 ₴
Початок прийому пропозицій:
23.06.2020 14:43:59
Завершення прийому пропозицій:
22.07.2020 20:00:00
Лот:
UA-PS-2020-06-23-000039-2
№ лоту (УТК):
UTK230620_06C
Лот виставляється на торги (раз):
1
Стислий опис майна:
Пропонуються до оренди приміщення на 1-му та на 2-му поверсі. Будівлі знаходиться в східній частині міста (район 12 школи). Щільність транспортних та пішохідних потоків середня. Територія огороджена та впорядкована. Характеристики : -електропостачання, водопостачання , теплопостачання централізоване; - земельна ділянка – 0, 6348 га (договір оренди)
Адреса місцезнаходження майна:
Україна, Рівненська обл., м. Рівне, вул. Транспортна,14
Схожі пропозиції
16.12.2022
Рівненська обл., м. Рівне, вул. Соборна, 271. Оренда – приміщення 2-го поверху площею 430,5 кв.м. (В)
25 799.87 грн
59.93 грн / м2
Приміщення
Рівненська обл., м. Рівне, вул. Соборна, 271. Оренда – приміщення 2-го поверху площею 430,5 кв.м. (В)
Україна, Рівненська обл., м. Рівне, вул. Соборна, 271
Рівненська обл., Вараський р-н. смт. Зарічне, вул. Центральна, 6а. Оренда – приміщення 3 поверху площею 80,8 м. кв. (В)
1 512.58 грн
18.72 грн / м2
Приміщення
Рівненська обл., Вараський р-н. смт. Зарічне, вул. Центральна, 6а. Оренда – приміщення 3 поверху площею 80,8 м. кв. (В)
Україна, Рівненська обл., Вараський р-н. смт. Зарічне, вул. Центральна, 6а
25.07.2025
Рівненська обл., Вараський р-н., с. Довговоля, вул. Грушевського, 9/2а. Оренда – нежитлові приміщення площею 33,4 кв.м. (В)
822.31 грн
24.62 грн / м2
Приміщення
Рівненська обл., Вараський р-н., с. Довговоля, вул. Грушевського, 9/2а. Оренда – нежитлові приміщення площею 33,4 кв.м. (В)
Україна, Рівненська обл., Вараський р-н., с. Довговоля, вул. Грушевського, 9/2а
Рівненська обл., Сарненський р-н, смт. Степань,  вул. Київська, 18. Оренда – приміщення 2-го поверху та гараж, загальною площею 186,80 кв.м. (В)
7 707.37 грн
41.26 грн / м2
Приміщення
Рівненська обл., Сарненський р-н, смт. Степань, вул. Київська, 18. Оренда – приміщення 2-го поверху та гараж, загальною площею 186,80 кв.м. (В)
Україна, Рівненська обл., Сарненський р-н, смт. Степань, вул. Київська, 18
Переглянуті пропозиції
05.09.2023
Полтавська обл., Лубенський р-н, с. Засулля, вул. Молодіжна, буд.20. Оренда – одноповерхова будівля площею 189,80 кв.м. (В)
1 275.46 грн
6.72 грн / м2
Будівля
Полтавська обл., Лубенський р-н, с. Засулля, вул. Молодіжна, буд.20. Оренда – одноповерхова будівля площею 189,80 кв.м. (В)
Україна, Полтавська обл., Лубенський р-н, с. Засулля, вул. Молодіжна, буд.20