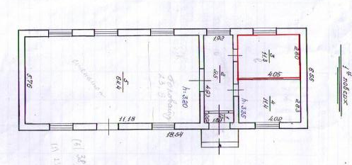
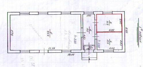
Рівненська обл., смт. Гоща вул. Незалежності, 37. Оренда приміщення 1-го поверху

63.80 грн
5.80 грн / м2
Україна, Рівненська обл., смт. Гоща, вул. Незалежності, 37
Перейти до аукціону на сайті
  • Інформація
  • Опис
  • Документи
Дата оголошення пропозиції:
14 липня 2020
Площа:
11.00 м2
Тип об’єкта:
Приміщення
Тип аукціону:
Англійський аукціон
Статус аукціону:
Аукціон не відбувся
Тип угоди:
Оренда
Розмір мінімального кроку:
5.00 ₴
Розмір гарантійного внеску:
38.28 ₴
Початок прийому пропозицій:
14.07.2020 10:38:25
Завершення прийому пропозицій:
13.08.2020 20:00:00
Лот:
UA-PS-2020-07-14-000024-2
№ лоту (УТК):
UTK060420_08
Лот виставляється на торги (раз):
4
Стислий опис майна:
Пропонується до оренди приміщення 1-го поверху. Будівля знаходиться в центральній частині селища, розвинена інфраструктура, поряд відділення Укрпошти, магазини та адміністративні приміщення. Територія огороджена та частково впорядкована.
Адреса місцезнаходження майна:
Україна, Рівненська обл., смт. Гоща, вул. Незалежності, 37
Схожі пропозиції
16.12.2022
Рівненська обл., м. Рівне вул. Міцкевича, 2. Оренда – приміщення 3-го поверху, площею 108,2 м. кв. (В)
4 998.84 грн
46.20 грн / м2
Приміщення
Рівненська обл., м. Рівне вул. Міцкевича, 2. Оренда – приміщення 3-го поверху, площею 108,2 м. кв. (В)
Україна, Рівненська обл., м. Рівне, вул. Міцкевича, 2
16.04.2024
ДОВГОСТРОКОВА ОРЕНДА! Рівненська обл., м. Рівне вул. Вишиванка,37. Оренда – приміщення 3-го поверху загальною площею 758 м.кв. (П)
72 934.76 грн
96.22 грн / м2
Приміщення
ДОВГОСТРОКОВА ОРЕНДА! Рівненська обл., м. Рівне вул. Вишиванка,37. Оренда – приміщення 3-го поверху загальною площею 758 м.кв. (П)
Україна, Рівненська обл., м. Рівне, вул. Вишиванка, 37
13.09.2024
Рівненська обл., Рівненський р-н, с.Тучин, вул.Поштова, 4. Оренда – виробничі приміщення загальною площею 243,1 кв.м. (В)
3 882.31 грн
15.97 грн / м2
Приміщення
Рівненська обл., Рівненський р-н, с.Тучин, вул.Поштова, 4. Оренда – виробничі приміщення загальною площею 243,1 кв.м. (В)
Україна, Рівненська обл., Рівненський р-н, с.Тучин, вул.Поштова, 4
26.08.2022
Рівненська обл., Вараський р-н., смт. Зарічне, вул. Центральна, 6а. Оренда – приміщення 1 поверху площею 71,5 кв.м. (В)
3 346.20 грн
46.80 грн / м2
Приміщення
Рівненська обл., Вараський р-н., смт. Зарічне, вул. Центральна, 6а. Оренда – приміщення 1 поверху площею 71,5 кв.м. (В)
Україна, Рівненська обл., Зарічне, Центральна вулиця, 6а
Переглянуті пропозиції
16.05.2024
Харківська обл., Лозівський р-н, м. Первомайський, 3-й мікрорайон, буд.1-А. Оренда – приміщення на 1-му поверсі загальною площею 221,70 кв.м. (В)
5 145.66 грн
23.21 грн / м2
Приміщення
Харківська обл., Лозівський р-н, м. Первомайський, 3-й мікрорайон, буд.1-А. Оренда – приміщення на 1-му поверсі загальною площею 221,70 кв.м. (В)
Україна, Харківська обл., Лозівський р-н, м. Первомайський, 3-й мікрорайон, буд.1-А