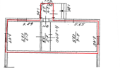
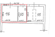
Рівненська обл., м. Острог, вул. Древлянська, 21. Оренда – приміщення цокольного та 1-го поверху площею 73,20 кв.м.

1 194.62 грн
16.32 грн / м2
Україна, Рівненська обл., м. Острог, вул. Древлянська, 21
Перейти до аукціону на сайті
  • Інформація
  • Опис
  • Документи
Дата оголошення пропозиції:
18 серпня 2020
Площа:
73.20 м2
Тип об’єкта:
Приміщення
Тип аукціону:
Англійський аукціон
Статус аукціону:
Аукціон не відбувся
Тип угоди:
Оренда
Розмір мінімального кроку:
100.00 ₴
Розмір гарантійного внеску:
716.77 ₴
Початок прийому пропозицій:
18.08.2020 10:13:28
Завершення прийому пропозицій:
16.09.2020 20:00:00
Лот:
UA-PS-2020-08-18-000019-2
№ лоту (УТК):
UTK150720_12
Лот виставляється на торги (раз):
2
Стислий опис майна:
Пропонуються до оренди виробничі приміщення на 1-му площею 73,20 кв.м. та цокольному поверсі . Будівля знаходиться в північно-західній частині міста. Щільність транспортних та пішохідних потоків низька. Територія огороджена та частково впорядкована.
Адреса місцезнаходження майна:
Україна, Рівненська обл., м. Острог, вул. Древлянська, 21
Схожі пропозиції
21.06.2024
Рівненська обл., Дубенський р-н, с. Малеве, вул. Лесі Українки, 55;   Оренда – приміщення площею 18,2 м.кв. (В)
273.00 грн
15.00 грн / м2
Приміщення
Рівненська обл., Дубенський р-н, с. Малеве, вул. Лесі Українки, 55; Оренда – приміщення площею 18,2 м.кв. (В)
Україна, Рівненська обл., Малеве, вул. Лесі Українки, 55
26.12.2024
Рівненська обл., Вараський р-н, с. Біле, вул. Радянська,30;  Оренда–нежитлове приміщення площею 10,1 кв.м. (В)
252.50 грн
25.00 грн / м2
Приміщення
Рівненська обл., Вараський р-н, с. Біле, вул. Радянська,30; Оренда–нежитлове приміщення площею 10,1 кв.м. (В)
Україна, Рівненська обл., Біле, вул. Радянська, 30
25.07.2025
Рівненська обл., Сарненський р-н, смт. Степань, вул. Київська, 18. Оренда – приміщення 2-го поверху та гараж, загальною площею 186,80 кв.м. (В)
2 241.60 грн
12.00 грн / м2
Приміщення
Рівненська обл., Сарненський р-н, смт. Степань, вул. Київська, 18. Оренда – приміщення 2-го поверху та гараж, загальною площею 186,80 кв.м. (В)
Україна, Рівненська обл., Сарненський р-н, смт. Степань, вул. Київська, 18
03.03.2023
Рівненська обл., Вараський р-н. смт. Володимирець вул. Поштова, 23. Оренда – приміщення 1-го поверху площею 52,8 кв.м. (В)
1 172.16 грн
22.20 грн / м2
Приміщення
Рівненська обл., Вараський р-н. смт. Володимирець вул. Поштова, 23. Оренда – приміщення 1-го поверху площею 52,8 кв.м. (В)
Україна, Рівненська обл., Вараський р-н. смт. Володимирець, смт. Володимирець вул. Поштова, 23
Переглянуті пропозиції
05.06.2024
Полтавська обл., Лубенський р-н, с. Засулля, вул. Молодіжна, буд.20. Оренда – одноповерхова будівля площею 189,80 кв.м. (В)
1 341.89 грн
7.07 грн / м2
Будівля
Полтавська обл., Лубенський р-н, с. Засулля, вул. Молодіжна, буд.20. Оренда – одноповерхова будівля площею 189,80 кв.м. (В)
Україна, Полтавська обл., Лубенський р-н, с. Засулля, вул. Молодіжна, буд.20
17.03.2023
Львівська обл., м. Новояворівськ, вул. Шевченка,7. Оренда – приміщення 3-го поверху площею 314 кв.м. (В)
3 165.12 грн
10.08 грн / м2
Приміщення
Львівська обл., м. Новояворівськ, вул. Шевченка,7. Оренда – приміщення 3-го поверху площею 314 кв.м. (В)
Україна, Львівська обл., Новояворівськ, вулиця Тараса Шевченка, 7
30.07.2024
Львівська обл. м. Перемишляни вул. Топольна, 6. Оренда – приміщення гаражів площею 45,3 кв.м. (В)
8 200.66 грн
181.03 грн / м2
Приміщення
Львівська обл. м. Перемишляни вул. Топольна, 6. Оренда – приміщення гаражів площею 45,3 кв.м. (В)
Україна, Львівська обл., м. Перемишляни, вул. Топольна, 6
08.11.2024
Полтавська обл., Миргородський р-н, м. Гадяч, вулиця Полтавська, 22. Оренда – приміщення 2-го поверху загальною площею 58,50 кв.м. (В)
1 123.20 грн
19.20 грн / м2
Приміщення
Полтавська обл., Миргородський р-н, м. Гадяч, вулиця Полтавська, 22. Оренда – приміщення 2-го поверху загальною площею 58,50 кв.м. (В)
Україна, Полтавська обл., Миргородський р-н, м. Гадяч, вул. Полтавська, 22