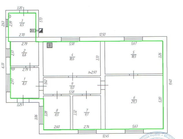
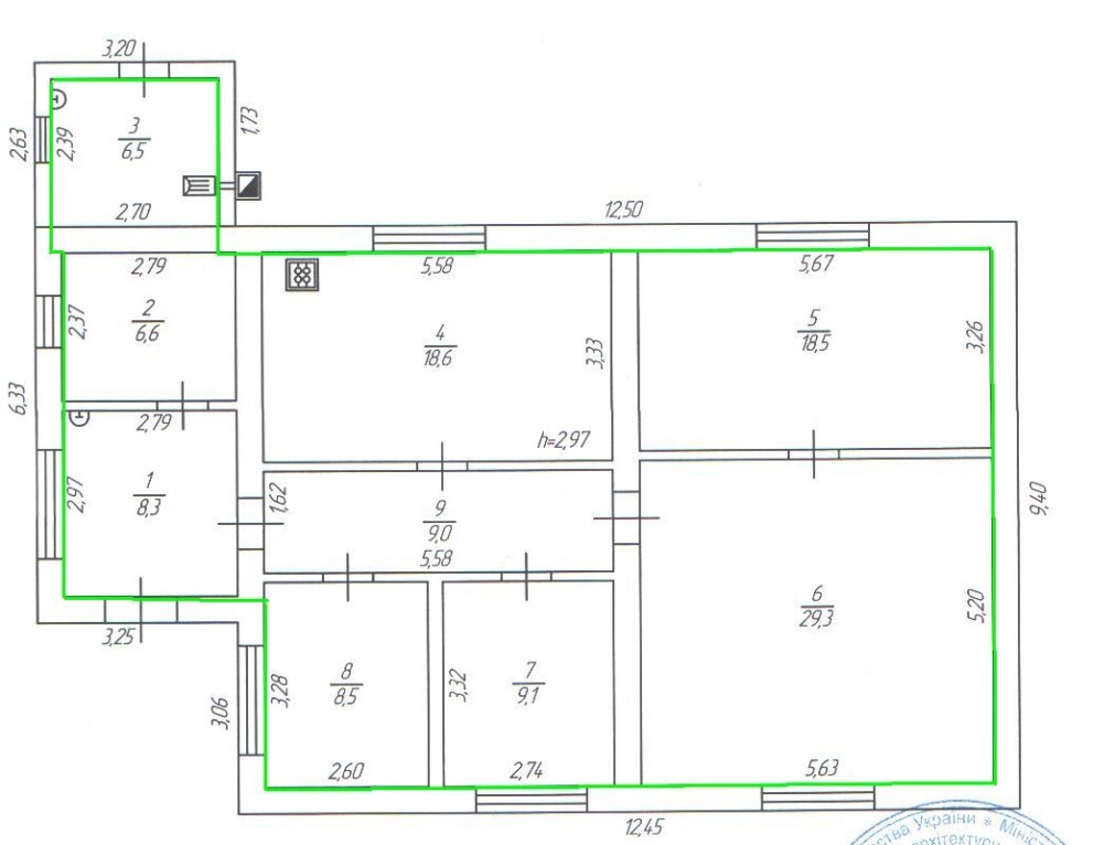
Полтавська обл., м. Миргород, вул. Раскової, буд. 28. Оренда – Будівля площею 114,4 кв.м.

2 635.78 грн
23.04 грн / м2
Україна, Полтавська обл., м. Миргород, вул. Раскової, буд. 28
Перейти до аукціону на сайті
  • Інформація
  • Опис
  • Документи
Дата оголошення пропозиції:
27 серпня 2020
Площа:
114.40 м2
Тип об’єкта:
Будівля
Тип аукціону:
Англійський аукціон
Статус аукціону:
Аукціон не відбувся
Тип угоди:
Оренда
Розмір мінімального кроку:
50.00 ₴
Розмір гарантійного внеску:
1 581.47 ₴
Початок прийому пропозицій:
27.08.2020 11:07:53
Завершення прийому пропозицій:
28.09.2020 20:00:00
Лот:
UA-PS-2020-08-27-000045-1
№ лоту (УТК):
UTK240720_15P
Лот виставляється на торги (раз):
2
Стислий опис майна:
Пропонується до оренди одноповерхова будівля площею 114,4 кв.м., яка розташована в місті Миргород. Характеристики: кількість поверхів – 1; опалення, водопостачання – відсутнє; електропостачання - наявне; вбиральня на подвір'ї; земельна ділянка – 0,2631 га (договір оренди ЗД); стан приміщення - задовільний.
Адреса місцезнаходження майна:
Україна, Полтавська обл., м. Миргород, вул. Раскової, буд. 28
Схожі пропозиції
Полтавська обл., м. Полтава, вул. Загородня, 43. Оренда – комплекс нежитлових будівель та споруд площею 1376,8 кв.м. (В)
31 680.17 грн
23.01 грн / м2
Будівля
Полтавська обл., м. Полтава, вул. Загородня, 43. Оренда – комплекс нежитлових будівель та споруд площею 1376,8 кв.м. (В)
Україна, Полтавська обл., м. Полтава, вул. Загородня, 43
Полтавська обл., Лубенський р-н, с. Засулля, вул. Молодіжна, буд.20. Оренда – одноповерхова будівля площею 189,80 кв.м. (В)
2 459.81 грн
12.96 грн / м2
Будівля
Полтавська обл., Лубенський р-н, с. Засулля, вул. Молодіжна, буд.20. Оренда – одноповерхова будівля площею 189,80 кв.м. (В)
Україна, Полтавська обл., Лубенський р-н, с. Засулля, вул. Молодіжна, буд.20
Полтавська обл., смт. Семенівка, вул. Воїнів Інтернаціоналістів, буд. 1. Оренда – частина будівлі
768.00 грн
25.60 грн / м2
Будівля
Полтавська обл., смт. Семенівка, вул. Воїнів Інтернаціоналістів, буд. 1. Оренда – частина будівлі
Україна, Полтавська обл., смт. Семенівка, вул. Воїнів Інтернаціоналістів, буд. 1
30.09.2025
Довгострокова оренда! Полтавська обл., м. Лубни, проспект Володимирський, 118. Оренда – будівля площею 685,10 кв.м. (В)
16 695.89 грн
24.37 грн / м2
Будівля
Довгострокова оренда! Полтавська обл., м. Лубни, проспект Володимирський, 118. Оренда – будівля площею 685,10 кв.м. (В)
Україна, Полтавська обл., Лубни, проспект Володимирський, 118
Переглянуті пропозиції
04.03.2025
Полтавська обл., м. Лубни, проспект Володимирський, 1/5. Оренда – приміщення 2-го поверху площею 295,50 кв.м. (В)
6 430.08 грн
21.76 грн / м2
Приміщення
Полтавська обл., м. Лубни, проспект Володимирський, 1/5. Оренда – приміщення 2-го поверху площею 295,50 кв.м. (В)
Україна, Полтавська обл., м. Лубни, проспект Володимирський, 1/5
20.04.2023
Рівненська обл., Вараський р-н, с. Біле, вул. Радянська, 30. Оренда – нежитлове приміщення площею 10,1 кв.м. (В)
501.26 грн
49.63 грн / м2
Приміщення
Рівненська обл., Вараський р-н, с. Біле, вул. Радянська, 30. Оренда – нежитлове приміщення площею 10,1 кв.м. (В)
Україна, Рівненська обл., Біле, вул. Радянська, 30
30.08.2022
Львівська обл., м. Львів, вул. Виговського, 29а. Оренда – приміщення 2-го поверху площею 38,57 кв.м. (В)
2 451.51 грн
63.56 грн / м2
Приміщення
Львівська обл., м. Львів, вул. Виговського, 29а. Оренда – приміщення 2-го поверху площею 38,57 кв.м. (В)
Україна, Львівська обл., м. Львів, вул. Виговського, 29а
28.02.2024
Чернігівська обл., смт. Короп, вул. Поштова, 9.Оренда – приміщення 1-го поверху площею 92,40 кв.м. (В
2 111.34 грн
22.85 грн / м2
Приміщення
Чернігівська обл., смт. Короп, вул. Поштова, 9.Оренда – приміщення 1-го поверху площею 92,40 кв.м. (В
Україна, Чернігівська обл., смт. Короп, вул. Поштова, 9