м. Київ, вул. Макіївська, 3. Оренда – приміщення 1-го поверху площею 86,1 кв.м. (В)

1 692.73 грн
19.66 грн / м2
Україна, Київська обл., м. Київ, вул. Макіївська, буд. 3
Перейти до аукціону на сайті
  • Інформація
  • Опис
  • Документи
Дата оголошення пропозиції:
15 вересня 2020
Площа:
86.10 м2
Тип об’єкта:
Приміщення
Тип аукціону:
Англійський аукціон
Статус аукціону:
Аукціон не відбувся
Тип угоди:
Оренда
Розмір мінімального кроку:
70.00 ₴
Розмір гарантійного внеску:
1 015.64 ₴
Початок прийому пропозицій:
15.09.2020 10:53:49
Завершення прийому пропозицій:
14.10.2020 20:00:00
Лот:
UA-PS-2020-09-15-000012-3
№ лоту (УТК):
UTK010420_15P
Лот виставляється на торги (раз):
6
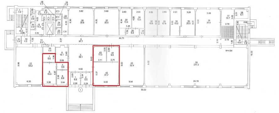
Стислий опис майна:
Пропонуються до оренди приміщення 1-го поверху площею 86,1 кв.м. Будівля розташована в Оболонському районі міста Києва, місцевість Пріорка. Поруч розвинена інфраструктура, зупинки маршрутного транспорту, супермаркети, кафе. Характеристики: кількість поверхів – 4; загальна площа будівлі 4688,8 кв.м.; опалення централізоване (міське); земельна ділянка – 0,6923 га.
Адреса місцезнаходження майна:
Україна, Київська обл., м. Київ, вул. Макіївська, буд. 3
Схожі пропозиції
14.06.2024
Київська обл., Білоцерківський р-н, м. Тараща, вул. Шевченка, 37, літ. «А-4»;  Оренда – приміщення 2-го поверху, площею 190,1 кв.м. (В)
513.27 грн
2.70 грн / м2
Приміщення
Київська обл., Білоцерківський р-н, м. Тараща, вул. Шевченка, 37, літ. «А-4»; Оренда – приміщення 2-го поверху, площею 190,1 кв.м. (В)
Україна, Київська обл., Тараща, вул. Шевченка, 37, літ. «А-4»
23.07.2024
ДОВГОСТРОКОВА ОРЕНДА! Київська обл., м.Обухів, вул. Трипільська (Будьоного), 53;  Оренда–торговий павільйон, площею 176,5 кв.м. (В)
9 848.70 грн
55.80 грн / м2
Приміщення
ДОВГОСТРОКОВА ОРЕНДА! Київська обл., м.Обухів, вул. Трипільська (Будьоного), 53; Оренда–торговий павільйон, площею 176,5 кв.м. (В)
Україна, Київська обл., м. Обухів, вулиця Трипільська, 53
29.03.2024
Київська обл., смт. Ставище, вул. Цимбала Сергія, 42;     Оренда – приміщення підвалу, 1-го, 2-го, 3-го поверхів площею 1500,70 кв.м. (В)
24 476.42 грн
16.31 грн / м2
Приміщення
Київська обл., смт. Ставище, вул. Цимбала Сергія, 42; Оренда – приміщення підвалу, 1-го, 2-го, 3-го поверхів площею 1500,70 кв.м. (В)
Україна, Київська обл., Ставище, вулиця Сергія Цимбала, 42
Переглянуті пропозиції
17.06.2025
Київська обл., Броварський р-н, м. Березань, вул. Героїв Небесної Сотні, 12. Оренда – приміщення на 2-му поверсі, площею 59,10 кв.м (В)
2 298.52 грн
38.89 грн / м2
Приміщення
Київська обл., Броварський р-н, м. Березань, вул. Героїв Небесної Сотні, 12. Оренда – приміщення на 2-му поверсі, площею 59,10 кв.м (В)
Україна, Київська обл., Березань, 07541, Київська обл., Броварський р-н, м. Березань, вул. Героїв Небесної Сотні, 12