м. Рівне, вул. В. Чорновола, 1. Оренда – приміщення 5-го поверху площею 107,9 кв.м. (В)

3 738.74 грн
34.65 грн / м2
Україна, Рівненська обл., м. Рівне, вул. В. Чорновола, буд. 1
Перейти до аукціону на сайті
  • Інформація
  • Опис
  • Документи
Дата оголошення пропозиції:
05 жовтня 2020
Площа:
107.90 м2
Тип об’єкта:
Приміщення
Тип аукціону:
Англійський аукціон
Статус аукціону:
Аукціон не відбувся
Тип угоди:
Оренда
Розмір мінімального кроку:
100.00 ₴
Розмір гарантійного внеску:
2 243.24 ₴
Початок прийому пропозицій:
05.10.2020 09:51:05
Завершення прийому пропозицій:
03.11.2020 20:00:00
Лот:
UA-PS-2020-10-05-000003-2
№ лоту (УТК):
UTK270520_03P
Лот виставляється на торги (раз):
5
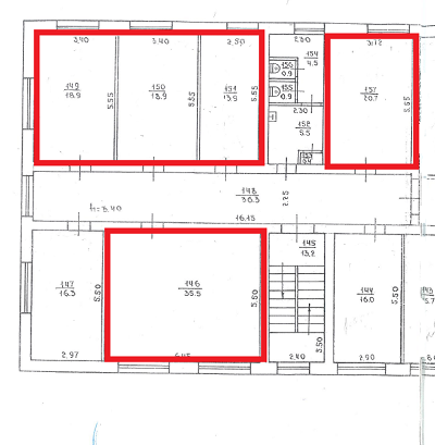
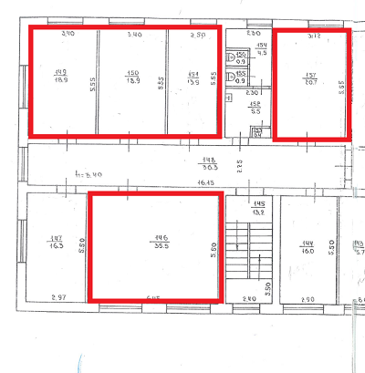
Стислий опис майна:
Пропонуються до оренди приміщення на 5-му поверсі площею 107,9кв.м. Будівля знаходиться в центральній частині міста. Розвинена інфраструктура, високі автомобільні та пішохідні потоки. Поряд центральна площа та міський парк . Характеристики: кількість поверхів – 5; опалення, водопостачання, водовідведення - централізоване; земельна ділянка – 0, 1652 га (договір оренди)
Адреса місцезнаходження майна:
Україна, Рівненська обл., м. Рівне, вул. В. Чорновола, буд. 1
Схожі пропозиції
Рівненська обл., м. Рівне вул. В. Чорновола, 17в. Оренда – приміщення 1-го поверху площею 43 кв.м. (В)
1 878.24 грн
43.68 грн / м2
Приміщення
Рівненська обл., м. Рівне вул. В. Чорновола, 17в. Оренда – приміщення 1-го поверху площею 43 кв.м. (В)
Україна, Рівненська обл., м. Рівне, вул. В. Чорновола, 17в
23.02.2024
Рівненська обл., Вараський р-н., с. Довговоля, вул. Грушевського, 9/2а. Оренда – нежитлові приміщення площею 33,4 кв.м. (В)
579.82 грн
17.36 грн / м2
Приміщення
Рівненська обл., Вараський р-н., с. Довговоля, вул. Грушевського, 9/2а. Оренда – нежитлові приміщення площею 33,4 кв.м. (В)
Україна, Рівненська обл., Вараський р-н., с. Довговоля, вул. Грушевського, 9/2а
24.05.2023
Рівненська обл., м. Рівне, вул. В.Чорновола, 1. Оренда – приміщення 1-го та 2-го поверху площею 147,8 кв.м. (В)
20 558.98 грн
139.10 грн / м2
Приміщення
Рівненська обл., м. Рівне, вул. В.Чорновола, 1. Оренда – приміщення 1-го та 2-го поверху площею 147,8 кв.м. (В)
Україна, Рівненська обл., м. Рівне, вул. В.Чорновола, 1
07.04.2023
Рівненська обл., Рівненський р-н., с. Вітковичі, вул. Ковальська, 1. Оренда – частина приміщення одноповерхової будівлі, площею 10,8 кв.м. (В)
500.04 грн
46.30 грн / м2
Приміщення
Рівненська обл., Рівненський р-н., с. Вітковичі, вул. Ковальська, 1. Оренда – частина приміщення одноповерхової будівлі, площею 10,8 кв.м. (В)
Україна, Рівненська обл., Рівненський р-н., с. Вітковичі, вул. Ковальська, 1