Рівненьска обл., м. Радивилів, вул. О.Невського, 1. Оренда – підвального приміщення площею 165 кв.м.(В)

2 768.70 грн
16.78 грн / м2
Україна, Рівненська обл., м. Радивилів, вул. О.Невського, 1
Перейти до аукціону на сайті
  • Інформація
  • Опис
  • Документи
Дата оголошення пропозиції:
07 жовтня 2020
Площа:
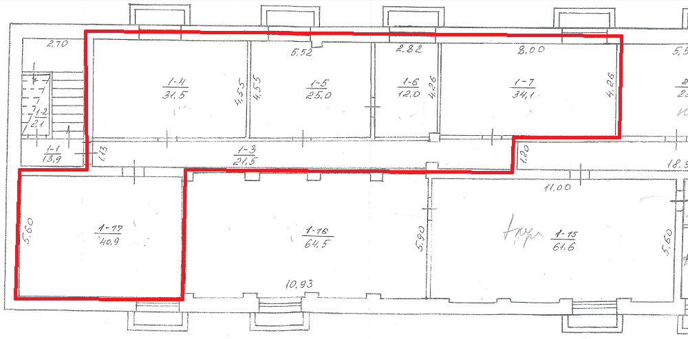
165.00 м2
Тип об’єкта:
Приміщення
Тип аукціону:
Англійський аукціон
Статус аукціону:
Аукціон не відбувся
Тип угоди:
Оренда
Розмір мінімального кроку:
200.00 ₴
Розмір гарантійного внеску:
1 661.22 ₴
Початок прийому пропозицій:
07.10.2020 11:06:00
Завершення прийому пропозицій:
09.11.2020 20:00:00
Лот:
UA-PS-2020-10-07-000034-1
№ лоту (УТК):
UTK071020_05C
Лот виставляється на торги (раз):
1
Стислий опис майна:
Пропонується до оренди підвальне приміщення площею 165 кв.м. (3 поверхи). Будівля знаходиться в центральній частині міста. Розвинена інфраструктура, поряд відділення Укрпошти, магазини та адміністративні приміщення, великі автомобільні та пішохідні потоки. Територія огороджена та впорядкована. Характеристики: Кількість поверхів – 3; Загальна площа – 1297,7 м.кв.; Площа, запропонована до оренди – 143,5 м.кв.; Опалення – централізоване; • Земельна ділянка - площа 0,1070 га.(договір оренди)
Адреса місцезнаходження майна:
Україна, Рівненська обл., м. Радивилів, вул. О.Невського, 1
Схожі пропозиції
31.01.2023
Рівненська обл., Сарненський р-н., смт. Рокитне, вул. Незалежності, 9. Оренда – приміщення 1 - го та 4 – го поверхів, загальною площею 63,4 кв.м (В)
Рівненська обл., м. Рівне, вул. Орлова, 37. Оренда – приміщення 5-го поверху загальною площею 703 кв.м. (В)
38 608.76 грн
54.92 грн / м2
Приміщення
Рівненська обл., м. Рівне, вул. Орлова, 37. Оренда – приміщення 5-го поверху загальною площею 703 кв.м. (В)
Україна, Рівненська обл., м. Рівне, вул. Орлова, 37
09.12.2022
Рівненська обл., м. Вараш, м-н. Незалежності, 4. Оренда – приміщення 1-го поверху площею 167,2 кв.м. (П)
17 492.46 грн
104.62 грн / м2
Приміщення
Рівненська обл., м. Вараш, м-н. Незалежності, 4. Оренда – приміщення 1-го поверху площею 167,2 кв.м. (П)
Україна, Рівненська обл., м. Вараш, м-н. Незалежності, 4
26.08.2025
Рівненська обл., м. Рівне вул. Вишиванка,37. Оренда – приміщення підвалу загальною площею 378,60 м.кв. (В)
24 241.76 грн
64.03 грн / м2
Приміщення
Рівненська обл., м. Рівне вул. Вишиванка,37. Оренда – приміщення підвалу загальною площею 378,60 м.кв. (В)
Україна, Рівненська обл., Рівне, вулиця Вишиванка, 37