м. Чернігів, вул. Ринкова, 2. Оренда - адміністративна будівля площею 1539,6 кв.м. (В)

70 390.51 грн
45.72 грн / м2
Україна, Чернігівська обл., м. Чернігів, вул. Ринкова, 2
Перейти до аукціону на сайті
  • Інформація
  • Опис
  • Документи
Дата оголошення пропозиції:
21 жовтня 2020
Площа:
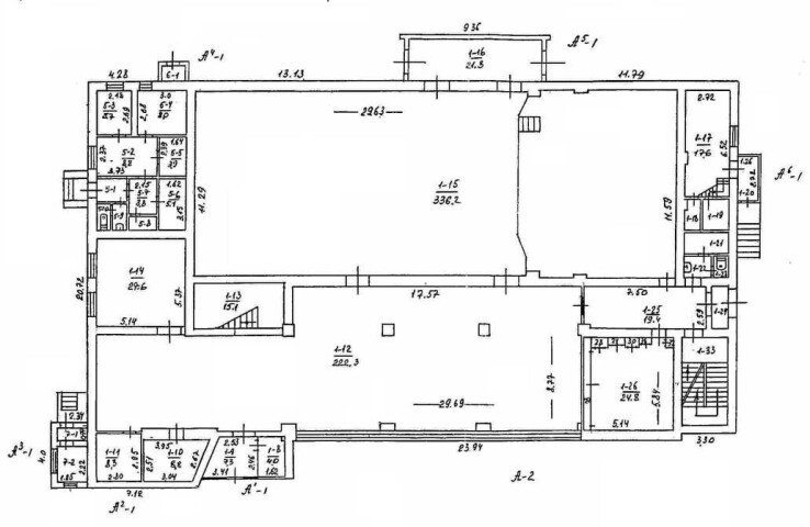
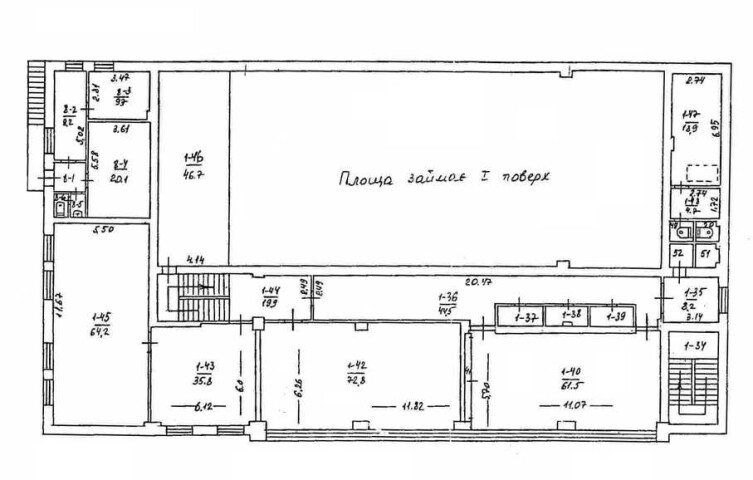
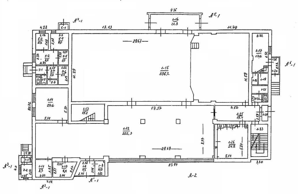
1539.60 м2
Тип об’єкта:
Адмінбудівля
Тип аукціону:
Англійський аукціон
Статус аукціону:
Аукціон не відбувся
Тип угоди:
Оренда
Розмір мінімального кроку:
1 000.00 ₴
Розмір гарантійного внеску:
42 234.31 ₴
Початок прийому пропозицій:
21.10.2020 13:31:03
Завершення прийому пропозицій:
19.11.2020 20:00:00
Лот:
UA-PS-2020-10-21-000023-2
№ лоту (УТК):
UTK170920_02P
Лот виставляється на торги (раз):
2
Стислий опис майна:
Пропонується до оренди адміністративна будівля площею 1539,6кв.м. Будівля знаходиться в центральній частині міста, розвинена інфраструктура, високі автомобільний та пішохідний потоки. Характеристики: кількість поверхів – 2; загальна площа – 1 539,6 кв.м. площа запропонована до оренди – 1 539,6 кв.м земельна ділянка – 0,1415 га (договір оренди)
Адреса місцезнаходження майна:
Україна, Чернігівська обл., м. Чернігів, вул. Ринкова, 2
Схожі пропозиції
12.07.2024
Чернігівська обл. м. Чернігів, вул. Коцюбинського, 50-А.Оренда – адміністративна будівля площею 2292,40 кв.м (В)
104 739.76 грн
45.69 грн / м2
Адмінбудівля
Чернігівська обл. м. Чернігів, вул. Коцюбинського, 50-А.Оренда – адміністративна будівля площею 2292,40 кв.м (В)
Україна, Чернігівська обл., м. Чернігів, вул. Коцюбинського, 50-А
11.12.2024
Чернігівська обл. м. Чернігів, вул. Коцюбинського, 50-А.Оренда – адміністративна будівля площею 2292,40 кв.м (В)
104 739.76 грн
45.69 грн / м2
Адмінбудівля
Чернігівська обл. м. Чернігів, вул. Коцюбинського, 50-А.Оренда – адміністративна будівля площею 2292,40 кв.м (В)
Україна, Чернігівська обл., м. Чернігів, вул. Коцюбинського, 50-А
Чернігівська обл., смт. Талалаївка, вул. Центральна, 13. Оренда – частина адміністративної будівлі.
2 986.56 грн
40.80 грн / м2
Адмінбудівля
Чернігівська обл., смт. Талалаївка, вул. Центральна, 13. Оренда – частина адміністративної будівлі.
Україна, Чернігівська обл., смт. Талалаївка, вул. Центральна, 13
21.03.2024
Чернігівська обл. м. Чернігів, вул. Коцюбинського, 50-А.Оренда – адміністративна будівля площею 2292,40 кв.м (В)
104 739.76 грн
45.69 грн / м2
Адмінбудівля
Чернігівська обл. м. Чернігів, вул. Коцюбинського, 50-А.Оренда – адміністративна будівля площею 2292,40 кв.м (В)
Україна, Чернігівська обл., м. Чернігів, вул. Коцюбинського, 50-А
Переглянуті пропозиції
19.08.2022
Полтавська обл., Миргородський р-н., смт. Шишаки, вул. Корніліча, буд.10. Оренда – приміщення 2-го поверху площею 32,00 кв.м. (В)
161.92 грн
5.06 грн / м2
Приміщення
Полтавська обл., Миргородський р-н., смт. Шишаки, вул. Корніліча, буд.10. Оренда – приміщення 2-го поверху площею 32,00 кв.м. (В)
Україна, Полтавська обл., Миргородський р-н., смт. Шишаки, вул. Корніліча, буд.10
17.06.2025
Рівненська обл., м. Рівне вул. Соборна,56. Оренда – приміщення цокольного поверху площею 340,70 кв. м (В).
40 458.13 грн
118.75 грн / м2
Приміщення
Рівненська обл., м. Рівне вул. Соборна,56. Оренда – приміщення цокольного поверху площею 340,70 кв. м (В).
Україна, Рівненська обл., Рівне, : 33028, Рівненська обл., м. Рівне, вул. Соборна,56
10.05.2024
Одеська обл., Березівський р-н смт. Ширяєве, вул. Грушевського, буд.137. Оренда – приміщення дизельної площею 47,30 кв.м (В)
419.55 грн
8.87 грн / м2
Приміщення
Одеська обл., Березівський р-н смт. Ширяєве, вул. Грушевського, буд.137. Оренда – приміщення дизельної площею 47,30 кв.м (В)
Україна, Одеська обл., Березівський р-н смт. Ширяєве, вул. Грушевського, буд.137
30.07.2025
м. Київ, вул. Джона Маккейна, 40, літ. «А» (Печерський р-н). Оренда – група приміщень на 1-му поверсі, площею 65,60 кв.м. (В)
13 308.27 грн
202.87 грн / м2
Приміщення
м. Київ, вул. Джона Маккейна, 40, літ. «А» (Печерський р-н). Оренда – група приміщень на 1-му поверсі, площею 65,60 кв.м. (В)
Україна, м.Київ, Київ, вулиця Джона Маккейна, 40