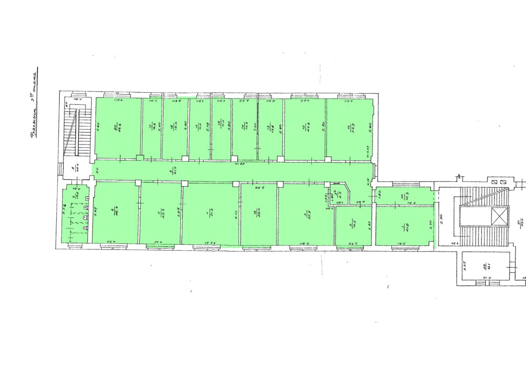
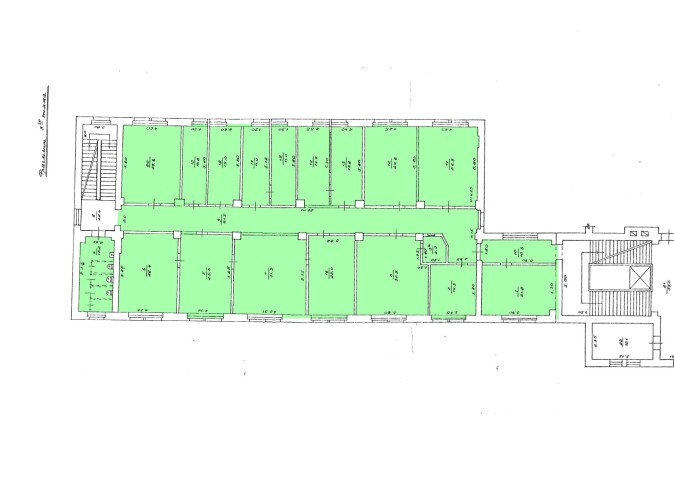
Харківська обл., м. Харків, вул. Конторська, 14. Оренда – приміщення 3-го поверху, площею 414,9 кв.м. (П)

30 121.74 грн
72.60 грн / м2
Україна, Харківська обл., м. Харків, вул. Конторська, 14
Перейти до аукціону на сайті
  • Інформація
  • Опис
  • Документи
Дата оголошення пропозиції:
03 грудня 2020
Площа:
414.90 м2
Тип об’єкта:
Приміщення
Тип аукціону:
Англійський аукціон
Статус аукціону:
Аукціон не відбувся
Тип угоди:
Оренда
Розмір мінімального кроку:
350.00 ₴
Розмір гарантійного внеску:
18 073.04 ₴
Початок прийому пропозицій:
03.12.2020 11:37:19
Завершення прийому пропозицій:
11.01.2021 20:00:00
Лот:
UA-PS-2020-12-03-000019-1
№ лоту (УТК):
UTK031220_04P
Лот виставляється на торги (раз):
1
Стислий опис майна:
Пропонуються до оренди нежитлові приміщення 3-го поверху площею 414,9 кв.м., розташовані за адресою: м. Харків, вул. Конторьска, 14. Будівля знаходиться в районі міста наближеного до центру, 5 хвилин до зупинки громадського транспорту. Характеристики: Кількість поверхів – 4; В приміщенні присутні опалення, електроенергія , на поверсі є водопостачання та сан. кімната; Земельна ділянка – 5196,00 кв.м.
Адреса місцезнаходження майна:
Україна, Харківська обл., м. Харків, вул. Конторська, 14
Схожі пропозиції
14.02.2024
м. Харків, вул. Конторська,14.Оренда – приміщення 2-го поверху площею 26,3 кв.м (В)
1 822.59 грн
69.30 грн / м2
Приміщення
м. Харків, вул. Конторська,14.Оренда – приміщення 2-го поверху площею 26,3 кв.м (В)
Україна, Харківська обл., м. Харків, вул. Конторська,14
27.10.2023
Харківська обл., м.Харків, вул. Конторська,14. Оренда – приміщення цокольного поверху, площею 28,30 кв.м. (В)
1 961.19 грн
69.30 грн / м2
Приміщення
Харківська обл., м.Харків, вул. Конторська,14. Оренда – приміщення цокольного поверху, площею 28,30 кв.м. (В)
Україна, Харківська обл., Харків, вулиця Конторська, 14
15.10.2025
Харківська обл., смт. Великий Бурлук, вул. Центральна, 5. Оренда – приміщення на 1-му поверсі площею 52,7 кв.м. (В)
632.40 грн
12.00 грн / м2
Приміщення
Харківська обл., смт. Великий Бурлук, вул. Центральна, 5. Оренда – приміщення на 1-му поверсі площею 52,7 кв.м. (В)
Україна, Харківська обл., смт. Великий Бурлук, вул. Центральна, 5
05.11.2024
м. Харків, просп. Олександрівський, 83. Оренда – приміщення 2-го поверху площею 118,1 кв.м. (В)
6 448.26 грн
54.60 грн / м2
Приміщення
м. Харків, просп. Олександрівський, 83. Оренда – приміщення 2-го поверху площею 118,1 кв.м. (В)
Україна, Харківська обл., м. Харків, просп. Олександрівський, 83
Переглянуті пропозиції
07.10.2022
Сумська обл., смт. Недригайлів, вул. Незалежності, буд. 8. Оренда – офісне приміщення 3-го поверху, площею 28,6 кв.м. (В)
453.02 грн
15.84 грн / м2
Офіс
Сумська обл., смт. Недригайлів, вул. Незалежності, буд. 8. Оренда – офісне приміщення 3-го поверху, площею 28,6 кв.м. (В)
Україна, Сумська обл., Недригайлів, вул. Незалежності, 8