м. Чернігів, вул. Ринкова,20. Оренда – приміщення 5-го та 6-го поверхів площею 79,8 кв.м. (В)

555.41 грн
6.96 грн / м2
Україна, Чернігівська обл., м. Чернігів, вул. Ринкова, буд. 20
Перейти до аукціону на сайті
  • Інформація
  • Опис
  • Документи
Дата оголошення пропозиції:
20 січня 2021
Площа:
79.80 м2
Тип об’єкта:
Приміщення
Тип аукціону:
Англійський аукціон
Статус аукціону:
Аукціон не відбувся
Тип угоди:
Оренда
Розмір мінімального кроку:
10.00 ₴
Розмір гарантійного внеску:
333.24 ₴
Початок прийому пропозицій:
20.01.2021 10:53:19
Завершення прийому пропозицій:
18.02.2021 20:00:00
Лот:
UA-PS-2021-01-20-000010-3
№ лоту (УТК):
UTK300320_10P
Лот виставляється на торги (раз):
10
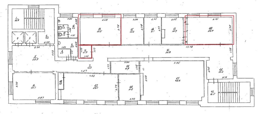
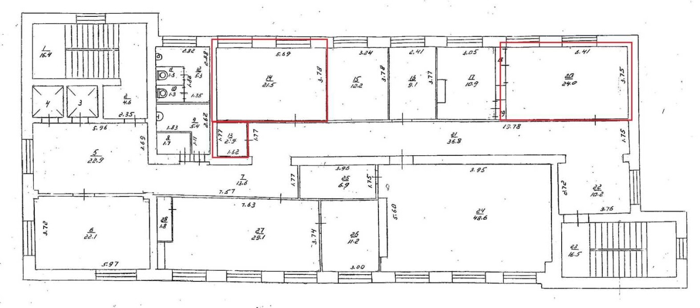
Стислий опис майна:
Пропонуються до оренди приміщення на 5-му та 6-му поверхах площею 79,8 кв.м. Будівля знаходиться, в центральній частині міста. Поряд знаходиться центральний ринок, зупинки міського транспорту. Характеристики: Кількість поверхів – 7; Загальна площа будівлі – 1032,1 кв.м.; Площа пропонована до оренди – 79,8 кв.м. Опалення – відключено.
Адреса місцезнаходження майна:
Україна, Чернігівська обл., м. Чернігів, вул. Ринкова, буд. 20
Схожі пропозиції
07.01.2025
Чернігівська обл., с-ще Короп, вул. Поштова, 9;   Оренда – приміщення 2 поверху площею 281,15 кв.м. (В)
8 254.56 грн
29.36 грн / м2
Приміщення
Чернігівська обл., с-ще Короп, вул. Поштова, 9; Оренда – приміщення 2 поверху площею 281,15 кв.м. (В)
Україна, Чернігівська обл., Короп, вулиця Поштова, 9
Чернігівська область, м. Бахмач, вул. Робітнича, 17Б, оренда – гаражне приміщення площею 57,50 кв.м. (В)
69.00 грн
1.20 грн / м2
Приміщення
Чернігівська область, м. Бахмач, вул. Робітнича, 17Б, оренда – гаражне приміщення площею 57,50 кв.м. (В)
Україна, Чернігівська обл., Бахмач, вул. Робітнича, 17Б
02.09.2022
Чернігівська обл., Чернігівський р-н, смт. Козелець, вул. Соборності, 30 А. Оренда – приміщення 2-го поверху площею 14,50 кв.м. (В)
438.48 грн
30.24 грн / м2
Приміщення
Чернігівська обл., Чернігівський р-н, смт. Козелець, вул. Соборності, 30 А. Оренда – приміщення 2-го поверху площею 14,50 кв.м. (В)
Україна, Чернігівська обл., Козелець, вул. Соборності, буд. 30А
22.04.2025
Чернігівська обл., м. Городня, вул. 1 Травня, 48;    Оренда – приміщення 2-го поверху площею 143,4 кв.м.(В)
1 720.80 грн
12.00 грн / м2
Приміщення
Чернігівська обл., м. Городня, вул. 1 Травня, 48; Оренда – приміщення 2-го поверху площею 143,4 кв.м.(В)
Україна, Чернігівська обл., м. Городня, вул. 1-го Травня, 48