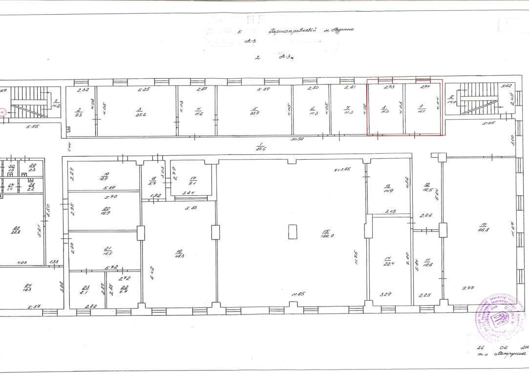
Сумська обл., м. Буринь, вул. Першотравнева, 5. Оренда – офісні приміщення 2-го поверху площею 22,10 кв.м. (В)

331.50 грн
15.00 грн / м2
Україна, Сумська обл., м. Буринь, вул. Першотравнева, 5
Перейти до аукціону на сайті
  • Інформація
  • Опис
  • Документи
Дата оголошення пропозиції:
23 лютого 2021
Площа:
22.10 м2
Тип об’єкта:
Офіс
Тип аукціону:
Англійський аукціон
Статус аукціону:
Аукціон не відбувся
Тип угоди:
Оренда
Розмір мінімального кроку:
20.00 ₴
Розмір гарантійного внеску:
198.90 ₴
Початок прийому пропозицій:
23.02.2021 15:26:33
Завершення прийому пропозицій:
09.03.2021 20:00:00
Лот:
UA-PS-2021-02-23-000079-3
№ лоту (УТК):
UTK230221_07P
Лот виставляється на торги (раз):
1
Стислий опис майна:
Пропонується до оренди офісні приміщення 2-го поверху площею 22,10 кв.м. триповерхової будівлі. Знаходиться в центральній частині міста. Добра візуалізація з дороги. Вхід в приміщення з тильної сторони будівлі. Можливість передачі приміщення в суборенду. Доступ 24/7. Характеристики: Кількість поверхів – 3; Загальна площа – 2212,0; Площа запропонована до оренди – 22,1 кв.м.; Водопостачання – відсутнє (наявний санвузол загального користування); Опалення та електропостачання – наявне; Земельна ділянка – 0,7542 га (договір оренди).
Адреса місцезнаходження майна:
Україна, Сумська обл., м. Буринь, вул. Першотравнева, 5
Схожі пропозиції
02.12.2022
Сумська обл., Шосткинський р-н, м. Середино-Буда, вул. Європейська, буд. 10. Оренда – офісні приміщення 1-го поверху площею 79,30 кв.м. (В)
538.45 грн
6.79 грн / м2
Офіс
Сумська обл., Шосткинський р-н, м. Середино-Буда, вул. Європейська, буд. 10. Оренда – офісні приміщення 1-го поверху площею 79,30 кв.м. (В)
Україна, Сумська обл., Шосткинський р-н, м. Середино-Буда, вул. Європейська, буд. 10
21.03.2024
Сумська обл., м. Буринь, вул. Першотравнева, 5;  Оренда – офісні приміщення 2-го поверху площею 129,9 кв.м. (В)
1 011.92 грн
7.79 грн / м2
Офіс
Сумська обл., м. Буринь, вул. Першотравнева, 5; Оренда – офісні приміщення 2-го поверху площею 129,9 кв.м. (В)
Україна, Сумська обл., Буринь, вул. Першотравнева, 5
11.12.2024
Сумська обл., Роменський р-н, смт. Липова Долина, вул. Загорянка, 2;  Оренда – офісні приміщення 1-го поверху площею 25,7 кв.м. (В)
514.00 грн
20.00 грн / м2
Офіс
Сумська обл., Роменський р-н, смт. Липова Долина, вул. Загорянка, 2; Оренда – офісні приміщення 1-го поверху площею 25,7 кв.м. (В)
Україна, Сумська обл., смт. Липова Долина, вулиця Загорянка, 2
30.04.2024
Сумська обл., Сумський р-н, смт. Краснопілля, вул. Сумська, буд. 5. Оренда – офісне приміщення 2-го поверху площею 20,00 кв.м. (В)
500.00 грн
25.00 грн / м2
Офіс
Сумська обл., Сумський р-н, смт. Краснопілля, вул. Сумська, буд. 5. Оренда – офісне приміщення 2-го поверху площею 20,00 кв.м. (В)
Україна, Сумська обл., Сумський р-н, смт. Краснопілля, вул. Сумська, буд. 5
Переглянуті пропозиції
Сумська обл., м. Лебедин, вул. Героїв Майдану, 25. Оренда – приміщення 3-го поверху
4 260.10 грн
7.68 грн / м2
Приміщення
Сумська обл., м. Лебедин, вул. Героїв Майдану, 25. Оренда – приміщення 3-го поверху
Україна, Сумська обл., м. Лебедин, вул. Героїв Майдану, 25
26.10.2022
Дніпропетровська обл., м. Дніпро, вул.Чернишевського, 27. Оренда – приміщення 1-го поверху площею 19,80 кв.м.(В)
1 017.32 грн
51.38 грн / м2
Приміщення
Дніпропетровська обл., м. Дніпро, вул.Чернишевського, 27. Оренда – приміщення 1-го поверху площею 19,80 кв.м.(В)
Україна, Дніпропетровська обл., Дніпро, вулиця Чернишевського, 27
15.10.2020
Харківська обл., м. Харків, просп. Героїв Сталінграду, 169.Оренда – приміщення 2-го поверху площею 34,7 кв.м
568.39 грн
16.38 грн / м2
Приміщення
Харківська обл., м. Харків, просп. Героїв Сталінграду, 169.Оренда – приміщення 2-го поверху площею 34,7 кв.м
Україна, Харківська обл., Харків, просп. Героїв Сталінграду, 169
Харківська обл., м. Харків, вул. Конторська,14. Оренда – приміщення четвертого поверху, площею 25,9 кв.м. (В)
2 331.00 грн
90.00 грн / м2
Приміщення
Харківська обл., м. Харків, вул. Конторська,14. Оренда – приміщення четвертого поверху, площею 25,9 кв.м. (В)
Україна, Харківська обл., м. Харків, вул. Конторська,14