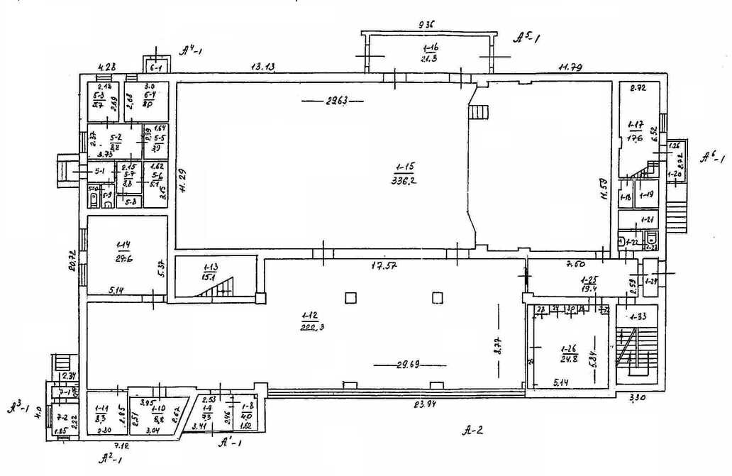
м. Чернігів, вул. Ринкова, 2. Оренда - адміністративна будівля площею 1539,6 кв.м. (В)

36 042.04 грн
23.41 грн / м2
Україна, Чернігівська обл., м. Чернігів, вул. Ринкова, 2
Перейти до аукціону на сайті
  • Інформація
  • Опис
  • Документи
Дата оголошення пропозиції:
01 березня 2021
Площа:
1539.60 м2
Тип об’єкта:
Адмінбудівля
Тип аукціону:
Англійський аукціон
Статус аукціону:
Аукціон не відбувся
Тип угоди:
Оренда
Розмір мінімального кроку:
500.00 ₴
Розмір гарантійного внеску:
21 625.22 ₴
Початок прийому пропозицій:
01.03.2021 11:39:22
Завершення прийому пропозицій:
30.03.2021 20:00:00
Лот:
UA-PS-2021-03-01-000013-2
№ лоту (УТК):
UTK170920_02P
Лот виставляється на торги (раз):
6
Стислий опис майна:
Пропонується до оренди адміністративна будівля площею 1539,6кв.м. Будівля знаходиться в центральній частині міста, розвинена інфраструктура, високі автомобільний та пішохідний потоки. Характеристики: кількість поверхів – 2; загальна площа – 1 539,6 кв.м. площа запропонована до оренди – 1 539,6 кв.м земельна ділянка – 0,1415 га (договір оренди)
Адреса місцезнаходження майна:
Україна, Чернігівська обл., м. Чернігів, вул. Ринкова, 2
Схожі пропозиції
19.12.2023
Чернігівська обл. м. Чернігів, вул. Коцюбинського, 50-А.Оренда – адміністративна будівля площею 2292,40 кв.м (В)
125 669.37 грн
54.82 грн / м2
Адмінбудівля
Чернігівська обл. м. Чернігів, вул. Коцюбинського, 50-А.Оренда – адміністративна будівля площею 2292,40 кв.м (В)
Україна, Чернігівська обл., м. Чернігів, вул. Коцюбинського, 50-А
Чернігівська обл., смт. Талалаївка, вул. Центральна, 13. Оренда – частина адміністративної будівлі.
2 986.56 грн
40.80 грн / м2
Адмінбудівля
Чернігівська обл., смт. Талалаївка, вул. Центральна, 13. Оренда – частина адміністративної будівлі.
Україна, Чернігівська обл., смт. Талалаївка, вул. Центральна, 13
16.11.2023
Чернігівська обл. м. Чернігів, вул. Коцюбинського, 50-А.Оренда – адміністративна будівля площею 2292,40 кв.м (В)
146 621.90 грн
63.96 грн / м2
Адмінбудівля
Чернігівська обл. м. Чернігів, вул. Коцюбинського, 50-А.Оренда – адміністративна будівля площею 2292,40 кв.м (В)
Україна, Чернігівська обл., м. Чернігів, вул. Коцюбинського, 50-А
м. Чернігів, вул. Коцюбинського, 50а. Оренда адмінбудівлі
88 028.16 грн
38.40 грн / м2
Адмінбудівля
м. Чернігів, вул. Коцюбинського, 50а. Оренда адмінбудівлі
Україна, Чернігівська обл., м. Чернігів, вул. Коцюбинського, 50а
Переглянуті пропозиції
15.07.2025
ДОВГОСТРОКОВА ОРЕНДА! Харківська обл., м. Харків, Нетіченська набережна, 8.Оренда – приміщення на 9-му поверсі загальною площею 513,50 кв.м. (В)
15 405.00 грн
30.00 грн / м2
Приміщення
ДОВГОСТРОКОВА ОРЕНДА! Харківська обл., м. Харків, Нетіченська набережна, 8.Оренда – приміщення на 9-му поверсі загальною площею 513,50 кв.м. (В)
Україна, Харківська обл., м. Харків, Нетіченська набережна, 8
10.01.2024
Чернігівська обл., Ніжинський р-н, с. Нова Басань, вул. Шевченка, 43;   Оренда – приміщення 1-го поверху площею  27,1 кв.м. (В)
501.62 грн
18.51 грн / м2
Приміщення
Чернігівська обл., Ніжинський р-н, с. Нова Басань, вул. Шевченка, 43; Оренда – приміщення 1-го поверху площею 27,1 кв.м. (В)
Україна, Чернігівська обл., Нова Басань, вул. Шевченка, 43
м. Чернігів, вул. Ринкова, 2. Оренда – приміщення 2-го поверху
11 548.16 грн
25.60 грн / м2
Приміщення
м. Чернігів, вул. Ринкова, 2. Оренда – приміщення 2-го поверху
Україна, Чернігівська обл., м. Чернігів, вул. Ринкова, буд. 2
18.04.2025
Сумська область, м. Конотоп, просп. Миру, 4. Оренда – офісне приміщення на 2-му поверсі площею 16,8 кв.м. (В)
681.74 грн
40.58 грн / м2
Офіс
Сумська область, м. Конотоп, просп. Миру, 4. Оренда – офісне приміщення на 2-му поверсі площею 16,8 кв.м. (В)
Україна, Сумська обл., м. Конотоп, просп. Миру, 4