м. Київ, вул. Олени Теліги, 39-г, літ. «А», оренда – частина приміщень виробничої будівлі, площею 1116,90 м2 (В)

131 894.72 грн
118.09 грн / м2
Україна, м.Київ, Київ, вул. Олени Теліги, 39-Г
Перейти до аукціону на сайті
  • Інформація
  • Опис
  • Документи
Дата оголошення пропозиції:
21 квітня 2021
Площа:
1116.90 м2
Тип об’єкта:
Приміщення
Тип аукціону:
Англійський аукціон
Статус аукціону:
Аукціон не відбувся
Тип угоди:
Оренда
Розмір мінімального кроку:
1 500.00 ₴
Розмір гарантійного внеску:
79 136.83 ₴
Початок прийому пропозицій:
21.04.2021 13:15:39
Завершення прийому пропозицій:
20.05.2021 20:00:00
Лот:
UA-PS-2021-04-21-000038-2
№ лоту (УТК):
UTK190321_02Т
Лот виставляється на торги (раз):
2
Стислий опис майна:
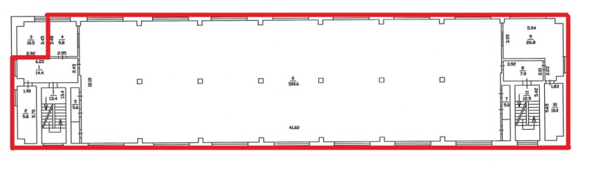
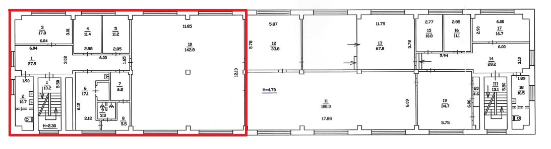
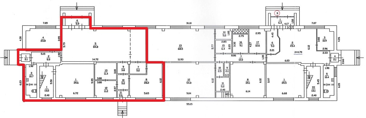
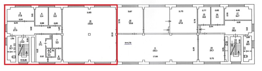
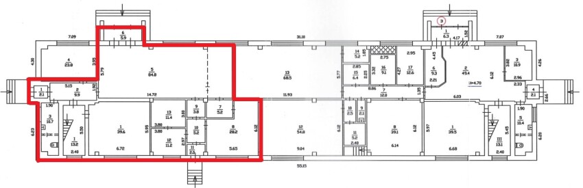
Пропонуються до оренди приміщення виробничої будівлі, літ. «А», площею 1116,90 м2. Будівля розташована в Шевченківському районі міста Києва, місцевість Сирець. Поруч розвинена інфраструктура, зупинки маршрутного транспорту, супермаркети, 5 хв. від ст. м. «Дорогожичі». Вхід з двору. Доступ 24/7. Характеристики кількість поверхів – 3; сан. вузол, каналізація, теплозабезпечення – присутнє, не задовільний стан; площа будівлі – літ. «А» - 2000,40 м2; опалення централізоване (міське); земельна ділянка – 0,3000 га.
Адреса місцезнаходження майна:
Україна, м.Київ, Київ, вул. Олени Теліги, 39-Г
Схожі пропозиції
11.11.2025
м. Київ, вул. Ореста Васкула, 27 (Святошинський р-н). Оренда – група приміщень на 3-му поверсі, загальною площею – 31,40 м. кв. (В)
23.07.2024
м. Київ, вул. Джона Маккейна, №40;   Оренда – приміщення підвалу, площею 24,80 м2 (В)
5 882.31 грн
237.19 грн / м2
Приміщення
м. Київ, вул. Джона Маккейна, №40; Оренда – приміщення підвалу, площею 24,80 м2 (В)
Україна, м.Київ, Київ, вулиця Джона Маккейна, 40
05.04.2023
м. Київ, вул. Миколи Голего, 8. Оренда – приміщення 1-го поверху площею 30,9 м2 (В)
3 337.20 грн
108.00 грн / м2
Приміщення
м. Київ, вул. Миколи Голего, 8. Оренда – приміщення 1-го поверху площею 30,9 м2 (В)
Україна, м.Київ, Київ, вулиця Миколи Голего, 8
13.09.2024
ДОВГОСТРОКОВА ОРЕНДА! м. Київ, вул. Салютна, 5а, літ. «Б»;  Оренда – приміщення 3-го та 4-го поверхів площею 992,8 кв.м. (В)
122 720.01 грн
123.61 грн / м2
Приміщення
ДОВГОСТРОКОВА ОРЕНДА! м. Київ, вул. Салютна, 5а, літ. «Б»; Оренда – приміщення 3-го та 4-го поверхів площею 992,8 кв.м. (В)
Україна, м.Київ, Київ, вулиця Салютна, 5а, літ.Б