ДОВГОСТРОКОВА ОРЕНДА! м. Київ, вул. Антоновича, 40, оренда – приміщення 5-го поверху, площею 768,70 кв.м. (В)

276 732.00 грн
360.00 грн / м2
Україна, м.Київ, Київ, вул. Антоновича, 40
Перейти до аукціону на сайті
  • Інформація
  • Опис
  • Документи
Дата оголошення пропозиції:
21 квітня 2021
Площа:
768.70 м2
Тип об’єкта:
Приміщення
Тип аукціону:
Англійський аукціон
Статус аукціону:
Аукціон не відбувся
Тип угоди:
Оренда
Розмір мінімального кроку:
2 500.00 ₴
Розмір гарантійного внеску:
166 039.20 ₴
Початок прийому пропозицій:
21.04.2021 13:07:11
Завершення прийому пропозицій:
20.05.2021 20:00:00
Лот:
UA-PS-2021-04-21-000055-1
№ лоту (УТК):
UTK190321_01Т
Лот виставляється на торги (раз):
2
Стислий опис майна:
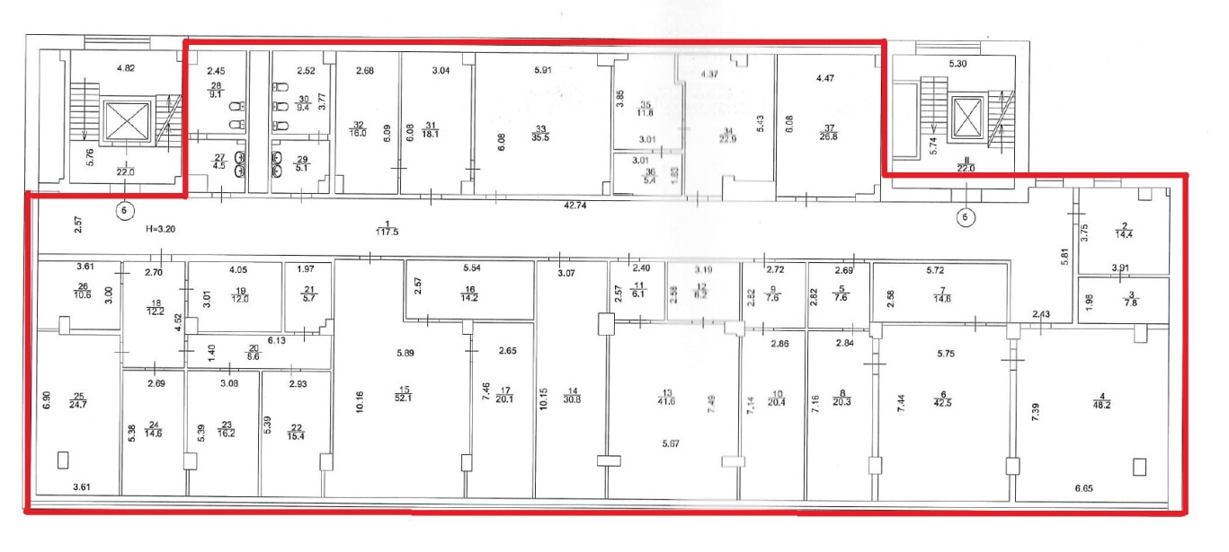
Пропонуються до оренди приміщення 5 поверху, площею 768,70 кв.м. Стан приміщень задовільний. Всі комунікації присутні. Кабінетне планування, кондиціонування в кожному кабінеті. Будівля знаходиться у центрі міста на перехресті вулиць Жилянська та Антоновича. Поруч з БЦ розташована зупинка міського автотранспорту, в 5-ти хвилинах ходьби знаходиться станція метро «Олімпійська», парк Тараса Шевченка. Характеристики: • кількість поверхів – 9; • опалення централізоване (міське); • земельна ділянка – 0,2099 га; • загальна площа будівлі -- 7649,30 м2; • каналізація, сан. вузол, водопостачання – присутне.
Адреса місцезнаходження майна:
Україна, м.Київ, Київ, вул. Антоновича, 40
Схожі пропозиції
м. Київ, вул. Макіївська, 3.Оренда – приміщення 2-го поверху, площею 724,10 м2 (В)
33 453.42 грн
46.20 грн / м2
Приміщення
м. Київ, вул. Макіївська, 3.Оренда – приміщення 2-го поверху, площею 724,10 м2 (В)
Україна, м.Київ, Київ, вул. Макіївська, 3
ДОВГОСТРОКОВА ОРЕНДА! м. Київ, вул. Ісаакяна, 3 , Оренда – приміщення будівлі літ. «А», площею 1570,90 кв.м. (В)
361 354.13 грн
230.03 грн / м2
Приміщення
ДОВГОСТРОКОВА ОРЕНДА! м. Київ, вул. Ісаакяна, 3 , Оренда – приміщення будівлі літ. «А», площею 1570,90 кв.м. (В)
Україна, м.Київ, Київ, вул. Ісаакяна, 3
12.01.2024
ДОВГОСТРОКОВА ОРЕНДА! м. Київ, вул. Героїв Севастополя, 39/8 літ. «Е»;  Оренда – приміщення 2-го та 4-го поверхів, площею 1751,8 кв.м. (В)
239 944.05 грн
136.97 грн / м2
Приміщення
ДОВГОСТРОКОВА ОРЕНДА! м. Київ, вул. Героїв Севастополя, 39/8 літ. «Е»; Оренда – приміщення 2-го та 4-го поверхів, площею 1751,8 кв.м. (В)
Україна, м.Київ, Київ, вул. Героїв Севастополя, 39/8(Е)
01.09.2022
м. Київ, вул. Будівельників, 8-Б, оренда – приміщення підвалу, площею 452,60 кв.м. (В)
20 910.12 грн
46.20 грн / м2
Приміщення
м. Київ, вул. Будівельників, 8-Б, оренда – приміщення підвалу, площею 452,60 кв.м. (В)
Україна, м.Київ, Київ, вулиця Будівельників, 8Б
Переглянуті пропозиції
Львівська обл., с. Скелівка, вул. Центральна, 1. Оренда – приміщення площею 34,90 кв. м. (В)
895.19 грн
25.65 грн / м2
Приміщення
Львівська обл., с. Скелівка, вул. Центральна, 1. Оренда – приміщення площею 34,90 кв. м. (В)
Україна, Львівська обл., с. Скелівка, вул. Центральна, 1