ДОВГОСТРОКОВА ОРЕНДА! м. Київ, вул. Антоновича, 40, оренда – приміщення 5-го поверху, площею 768,70 кв.м. (В)

276 732.00 грн
360.00 грн / м2
Україна, м.Київ, Київ, вул. Антоновича, 40
Перейти до аукціону на сайті
  • Інформація
  • Опис
  • Документи
Дата оголошення пропозиції:
24 травня 2021
Площа:
768.70 м2
Тип об’єкта:
Приміщення
Тип аукціону:
Англійський аукціон
Статус аукціону:
Аукціон не відбувся
Тип угоди:
Оренда
Розмір мінімального кроку:
2 500.00 ₴
Розмір гарантійного внеску:
166 039.20 ₴
Початок прийому пропозицій:
24.05.2021 10:46:46
Завершення прийому пропозицій:
22.06.2021 20:00:00
Лот:
UA-PS-2021-05-24-000007-1
№ лоту (УТК):
UTK190321_01Т
Лот виставляється на торги (раз):
3
Стислий опис майна:
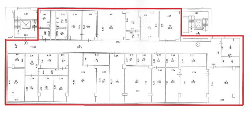
Пропонуються до оренди приміщення 5 поверху, площею 768,70 кв.м. Стан приміщень задовільний. Всі комунікації присутні. Кабінетнеи планування, кондиціонування в кожному кабінеті. Будівля знаходиться у центрі міста на перехресті вулиць Жилянська та Антоновича. Поруч з БЦ розташована зупинка міського автотранспорту, в 5-ти хвилинах ходьби знаходиться станція метро «Олімпійська», парк Тараса Шевченка. Характеристики: • кількість поверхів – 9; • опалення централізоване (міське); • земельна ділянка – 0,2099 га; • загальна площа будівлі -- 7649,30 м2; • каналізація, сан. вузол, водопостачання – присутне.
Адреса місцезнаходження майна:
Україна, м.Київ, Київ, вул. Антоновича, 40
Схожі пропозиції
06.04.2023
м. Київ, вул. Джона Маккейна, №40 , Оренда – приміщення підвалу, площею 44,26 м2 , (В)
7 338.31 грн
166.03 грн / м2
Приміщення
м. Київ, вул. Джона Маккейна, №40 , Оренда – приміщення підвалу, площею 44,26 м2 , (В)
Україна, м.Київ, Київ, вулиця Джона Маккейна, 40
м. Київ, бульвар Амвросія Бучми, №5, літ «Б»Оренда – приміщення 2-го поверху, площею 721,1 кв.м. (В)
33 999.87 грн
47.15 грн / м2
Приміщення
м. Київ, бульвар Амвросія Бучми, №5, літ «Б»Оренда – приміщення 2-го поверху, площею 721,1 кв.м. (В)
Україна, м.Київ, Київ, бульвар Амвросія Бучми, №5, літ «Б»
19.09.2023
м. Київ, вул. Антоновича, 40. Оренда – приміщення підвалу площею 77,0 кв.м. (В)
23 720.62 грн
308.06 грн / м2
Приміщення
м. Київ, вул. Антоновича, 40. Оренда – приміщення підвалу площею 77,0 кв.м. (В)
Україна, м.Київ, Київ, вул. Антоновича, 40
09.12.2022
м. Київ, вул. Антоновича, 40. Оренда – приміщення підвалу площею 77,00 кв.м. (В)
17 038.56 грн
221.28 грн / м2
Приміщення
м. Київ, вул. Антоновича, 40. Оренда – приміщення підвалу площею 77,00 кв.м. (В)
Україна, м.Київ, Київ, вул. Антоновича, 40