ДОВГОСТРОКОВА ОРЕНДА! Дніпропетровська обл., м. Дніпро, бульвар Рубіновий, буд.18. Оренда – приміщення 1-го, 2-го, 3-го, 4-го, 5-го та технічного поверхів площею 3 932,40 кв.м. (В)

75 742.74 грн
19.26 грн / м2
Україна, Дніпропетровська обл., м. Дніпро, бульвар Рубіновий, буд.18
Перейти до аукціону на сайті
  • Інформація
  • Опис
  • Документи
Дата оголошення пропозиції:
16 серпня 2021
Площа:
3932.40 м2
Тип об’єкта:
Приміщення
Тип аукціону:
Англійський аукціон
Статус аукціону:
Аукціон не відбувся
Тип угоди:
Оренда
Розмір мінімального кроку:
800.00 ₴
Розмір гарантійного внеску:
45 445.65 ₴
Початок прийому пропозицій:
16.08.2021 12:53:59
Завершення прийому пропозицій:
14.09.2021 20:00:00
Лот:
UA-PS-2021-08-16-000016-2
№ лоту (УТК):
UTK160821_11P
Лот виставляється на торги (раз):
1
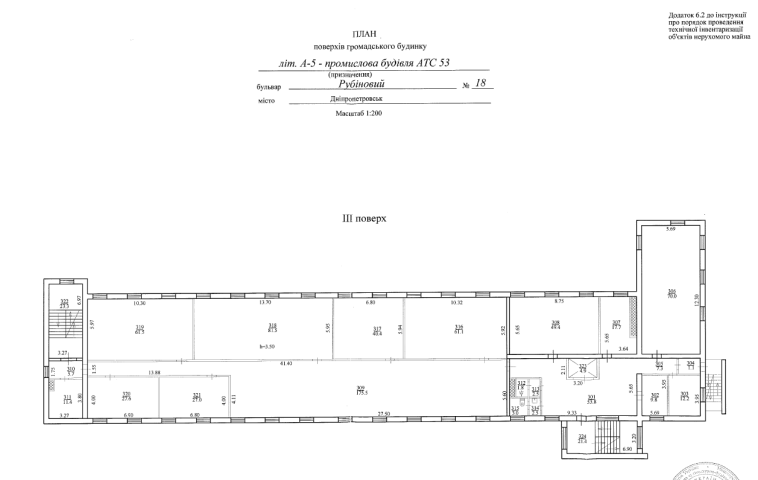
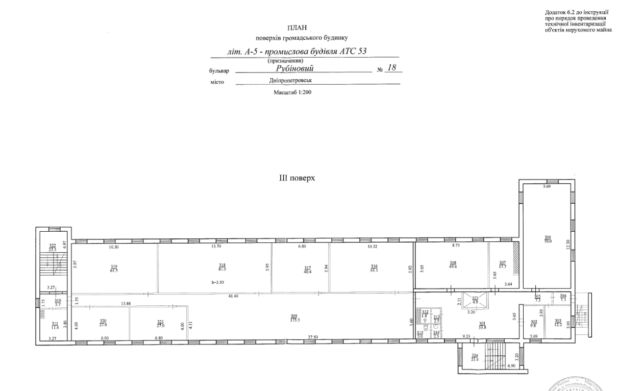
Стислий опис майна:
Пропонуються до оренди приміщення 1-го, 2-го, 3-го, 4-го, 5-го та технічного поверхів загальною площею 3 932,40 кв.м. будівлі, що знаходиться в Новокодацькому районі міста Дніпра. Зручна транспортна розв’язка та інфраструктура. Стан – потребує ремонту, підходить для офісу, cкладу, виробництва Характеристики: кількість поверхів – 5; Загальна площа будівлі – 4322,00 кв. м.; газопостачання, електропостачання, водопостачання, каналізаційна мережа; земельна ділянка – 0,4169 га
Адреса місцезнаходження майна:
Україна, Дніпропетровська обл., м. Дніпро, бульвар Рубіновий, буд.18
Схожі пропозиції
19.06.2024
Дніпропетровська обл, м. Першотравенськ, вул. Кобзаря, 15. Оренда – приміщення 1-го поверху площею 87,90 кв.м (В)
2 197.50 грн
25.00 грн / м2
Приміщення
Дніпропетровська обл, м. Першотравенськ, вул. Кобзаря, 15. Оренда – приміщення 1-го поверху площею 87,90 кв.м (В)
Україна, Дніпропетровська обл., м. Першотравенськ, вул. Кобзаря, 15
25.05.2023
Дніпропетровська обл., м. Кривий Ріг, вул. Дніпропетровське шосе, 48. Оренда – приміщення 3-го поверху, площею 403,4 кв.м. (В)
10 036.59 грн
24.88 грн / м2
Приміщення
Дніпропетровська обл., м. Кривий Ріг, вул. Дніпропетровське шосе, 48. Оренда – приміщення 3-го поверху, площею 403,4 кв.м. (В)
Україна, Дніпропетровська обл., Кривий Ріг, вулиця Дніпровське шосе, 48
Дніпропетровська обл., м. Кривий Ріг, вул. Калантая, 12. Оренда – приміщення 2-го поверху, площею 337,7 кв.м. (В)
4 305.68 грн
12.75 грн / м2
Приміщення
Дніпропетровська обл., м. Кривий Ріг, вул. Калантая, 12. Оренда – приміщення 2-го поверху, площею 337,7 кв.м. (В)
Україна, Дніпропетровська обл., Кривий Ріг, вул. Калантая, 12
12.08.2022
Дніпропетровська обл., м. Кривий Ріг, вул. Калантая, 12. Оренда – приміщення 2-го поверху, площею 337,7 кв.м. (В)
4 305.68 грн
12.75 грн / м2
Приміщення
Дніпропетровська обл., м. Кривий Ріг, вул. Калантая, 12. Оренда – приміщення 2-го поверху, площею 337,7 кв.м. (В)
Україна, Дніпропетровська обл., Кривий Ріг, вул. Калантая, 12
Переглянуті пропозиції
21.04.2023
Дніпропетровська обл., м. Дніпро, вул. Панікахи, 27. Оренда – приміщення 4-го поверху площею 737,0 кв.м.(В)
34 049.40 грн
46.20 грн / м2
Приміщення
Дніпропетровська обл., м. Дніпро, вул. Панікахи, 27. Оренда – приміщення 4-го поверху площею 737,0 кв.м.(В)
Україна, Дніпропетровська обл., м. Дніпро, вул. Панікахи, 27
07.02.2025
ДОВГОСТРОКОВА ОРЕНДА! Дніпропетровська обл., м. Дніпро, вул. Панікахи, 27. Оренда – приміщення 3-го поверху площею 410,5 кв.м.(В)
27 482.98 грн
66.95 грн / м2
Приміщення
ДОВГОСТРОКОВА ОРЕНДА! Дніпропетровська обл., м. Дніпро, вул. Панікахи, 27. Оренда – приміщення 3-го поверху площею 410,5 кв.м.(В)
Україна, Дніпропетровська обл., м. Дніпро, вул. Панікахи, 27
17.05.2024
Дніпропетровська обл., м. Дніпро, вул. Князя Ярослава Мудрого, 3. Оренда – приміщення 5-го поверху площею 34,80 кв.м.(В)
4 163.81 грн
119.65 грн / м2
Приміщення
Дніпропетровська обл., м. Дніпро, вул. Князя Ярослава Мудрого, 3. Оренда – приміщення 5-го поверху площею 34,80 кв.м.(В)
Україна, Дніпропетровська обл., м. Дніпро, вул. Князя Ярослава Мудрого, 3
Дніпропетровська обл., м. Новомосковськ, вул. Північна, 5. Оренда – приміщення громадського будинку нежитлових будівель площею 2636,60 кв.м. (В)
61 538.24 грн
23.34 грн / м2
Приміщення
Дніпропетровська обл., м. Новомосковськ, вул. Північна, 5. Оренда – приміщення громадського будинку нежитлових будівель площею 2636,60 кв.м. (В)
Україна, Дніпропетровська обл., м. Новомосковськ, вул. Північна, 5