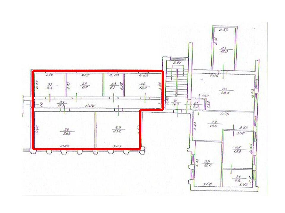
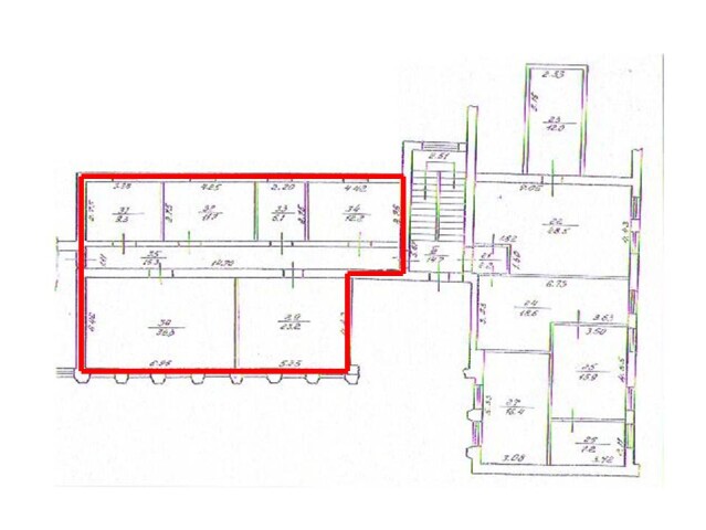
Івано-Франківська обл., Калуський район, смт.Рожнятів, площа Єдності, 9, оренда – Приміщення 3-го поверху площею 109,6 м.кв. (В)

2 393.66 грн
21.84 грн / м2
Україна, Івано-Франківська обл., Рожнятів, площа Єдності, 9
Перейти до аукціону на сайті
  • Інформація
  • Опис
  • Документи
Дата оголошення пропозиції:
10 вересня 2021
Площа:
109.60 м2
Тип об’єкта:
Приміщення
Тип аукціону:
Англійський аукціон
Статус аукціону:
Аукціон не відбувся
Тип угоди:
Оренда
Розмір мінімального кроку:
100.00 ₴
Розмір гарантійного внеску:
1 436.20 ₴
Початок прийому пропозицій:
10.09.2021 10:37:21
Завершення прийому пропозицій:
11.10.2021 20:00:00
Лот:
UA-PS-2021-09-10-000014-2
№ лоту (УТК):
UTK070721_10Т
Лот виставляється на торги (раз):
3
Стислий опис майна:
Пропонуються до оренди приміщення 3-го поверху. Будівля знаходиться в центральній частині населеного пункту. Високі пішохідний та транспортний потоки. Характеристики: • кількість поверхів – 3 • опалення газове • земельна ділянка – 0,1126 га (договір оренди)
Адреса місцезнаходження майна:
Україна, Івано-Франківська обл., Рожнятів, площа Єдності, 9
Схожі пропозиції
20.10.2023
Івано-Франківська обл., м. Івано-Франківськ, вул. В.Симоненка, 1, оренда – приміщення 3-го поверху, площею 800,2 м.кв (В)
50 444.61 грн
63.04 грн / м2
Приміщення
Івано-Франківська обл., м. Івано-Франківськ, вул. В.Симоненка, 1, оренда – приміщення 3-го поверху, площею 800,2 м.кв (В)
Україна, Івано-Франківська обл., Івано-Франківськ, вул. Василя Симоненка
Івано-Франківська обл., Снятинський р-н, с. Потічок, вул. Незалежності, 46. Оренда нежитлових приміщень
714.66 грн
25.80 грн / м2
Приміщення
Івано-Франківська обл., Снятинський р-н, с. Потічок, вул. Незалежності, 46. Оренда нежитлових приміщень
Україна, Івано-Франківська обл., с. Потічок, вул. Незалежності, 46
Івано-Франківська обл., Івано-Франківський р-н, с.Росільна, вул. Шевченка, 145а. Оренда – Нежитлове приміщення І-го поверху, площею 33,4 м.кв. (В)
500.33 грн
14.98 грн / м2
Приміщення
Івано-Франківська обл., Івано-Франківський р-н, с.Росільна, вул. Шевченка, 145а. Оренда – Нежитлове приміщення І-го поверху, площею 33,4 м.кв. (В)
Україна, Івано-Франківська обл., Івано-Франківський р-н, с.Росільна, вул. Шевченка, 145а
21.06.2024
м. Івано-Франківськ, вул. Довга, 58;   Оренда – приміщення підвалу виробничого будинку, площею 57,6 кв.м. (В)
4 298.11 грн
74.62 грн / м2
Приміщення
м. Івано-Франківськ, вул. Довга, 58; Оренда – приміщення підвалу виробничого будинку, площею 57,6 кв.м. (В)
Україна, Івано-Франківська обл., м. Івано-Франківськ, вулиця Довга, 58
Переглянуті пропозиції
08.10.2025
Івано-Франківська обл., Калуський р-н, смт. Рожнятів, площа Єдності, 9. Оренда – приміщення 3-го поверху площею 109,60 кв.м. (В)
1 367.81 грн
12.48 грн / м2
Приміщення
Івано-Франківська обл., Калуський р-н, смт. Рожнятів, площа Єдності, 9. Оренда – приміщення 3-го поверху площею 109,60 кв.м. (В)
Україна, Івано-Франківська обл., Рожнятів, площа Єдності, 9