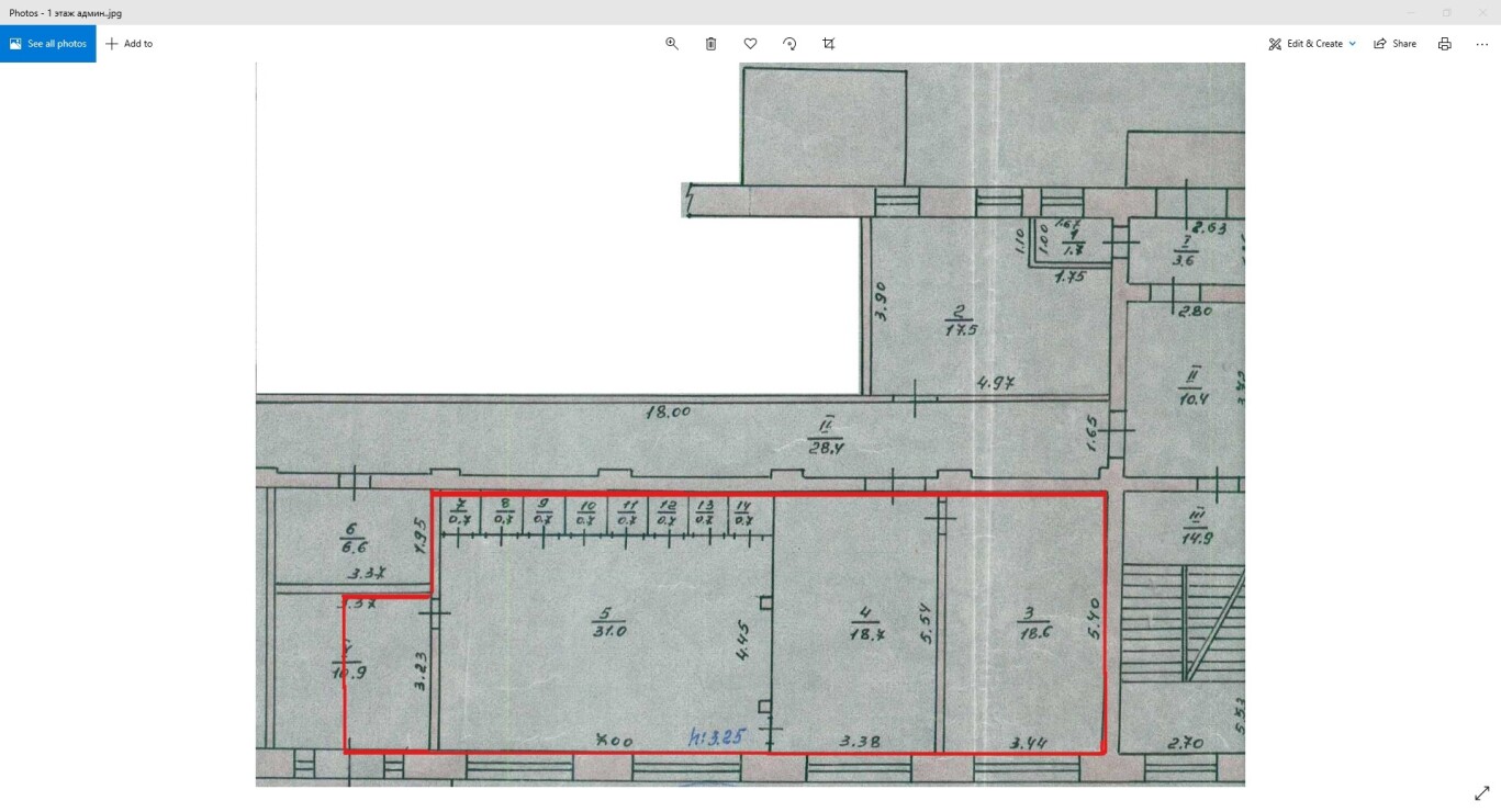
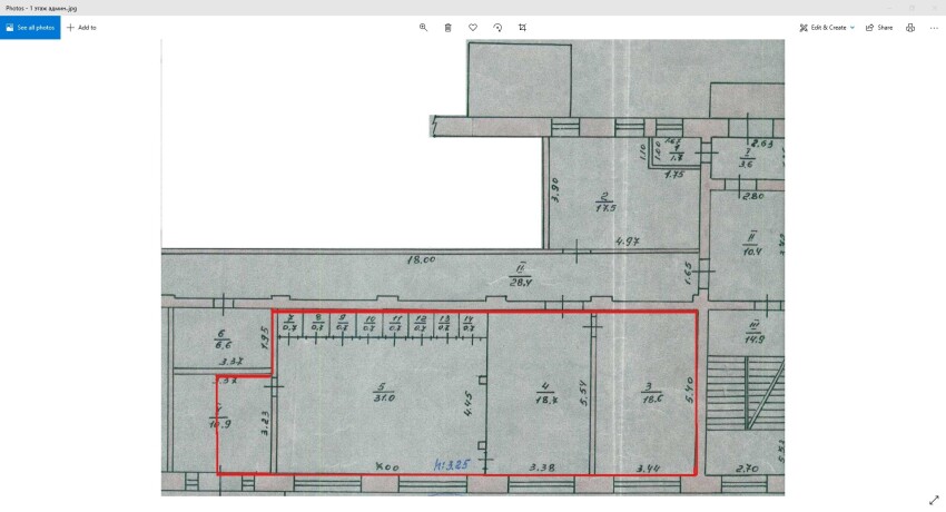
Сумська обл., Шосткинський р-н, м. Середино-Буда, вул. Європейська, буд. 10. Оренда – офісні приміщення 1-го поверху площею 79,30 кв.м. (В)

7 930.00 грн
100.00 грн / м2
Україна, Сумська обл., Шосткинський р-н, м. Середино-Буда, вул. Європейська, буд. 10
Перейти до аукціону на сайті
  • Інформація
  • Опис
  • Документи
Дата оголошення пропозиції:
29 вересня 2021
Площа:
79.30 м2
Тип об’єкта:
Офіс
Тип аукціону:
Англійський аукціон
Статус аукціону:
Аукціон не відбувся
Тип угоди:
Оренда
Розмір мінімального кроку:
100.00 ₴
Розмір гарантійного внеску:
4 758.00 ₴
Початок прийому пропозицій:
29.09.2021 13:41:17
Завершення прийому пропозицій:
28.10.2021 20:00:00
Лот:
UA-PS-2021-09-29-000010-3
№ лоту (УТК):
UTK260721_24P
Лот виставляється на торги (раз):
3
Стислий опис майна:
Пропонуються до оренди офісні приміщення 1-го поверху площею 79,30 кв.м. Знаходяться на першому поверсі 2-поверхової адміністративної будівлі в центральній частині міста. Добра візуалізація з дороги. Доступ вільний 24/7. Характеристики: Кількість поверхів – 2; Загальна площа – 345,1 кв.м.; Площа запропонована до оренди - 79,3 кв.м.; Водопостачання, опалення - відсутнє; Електропостачання - наявне; Дозволена потужність – 5 кВт; Земельна ділянка – 0,1878 га (договір оренди).
Адреса місцезнаходження майна:
Україна, Сумська обл., Шосткинський р-н, м. Середино-Буда, вул. Європейська, буд. 10
Схожі пропозиції
27.09.2024
Сумська обл., Сумський р-н, м. Лебедин, вул. Героїв Майдану, 25 ;  Оренда – офісні приміщення 1-го поверху площею 20,90 кв. м (В)
10.01.2024
Сумська обл., м. Суми, вул. Нижньосироватська, буд. 64. Оренда – офісні приміщення 2-го поверху площею 31,30 кв.м. (В)
1 752.17 грн
55.98 грн / м2
Офіс
Сумська обл., м. Суми, вул. Нижньосироватська, буд. 64. Оренда – офісні приміщення 2-го поверху площею 31,30 кв.м. (В)
Україна, Сумська обл., м. Суми, вул. Нижньосироватська, буд. 64
09.06.2023
Сумська обл., м. Суми, вул. Нижньосироватська, 64. Оренда – офісні приміщення 2-го поверху площею 45,10 кв.м. (В)
2 083.62 грн
46.20 грн / м2
Офіс
Сумська обл., м. Суми, вул. Нижньосироватська, 64. Оренда – офісні приміщення 2-го поверху площею 45,10 кв.м. (В)
Україна, Сумська обл., м. Суми, вул. Нижньосироватська, 64
21.01.2025
Сумська обл., м. Тростянець, вул. Миру, буд.1-А; Оренда – офісні приміщення 2-го поверху площею 50,5 кв.м. (В)
610.04 грн
12.08 грн / м2
Офіс
Сумська обл., м. Тростянець, вул. Миру, буд.1-А; Оренда – офісні приміщення 2-го поверху площею 50,5 кв.м. (В)
Україна, Сумська обл., м. Тростянець, вулиця Миру, 1-А
Переглянуті пропозиції
15.07.2025
Полтавська обл., Миргородський район, смт. Комишня, вул. Миру, 101. Оренда – приміщення загальною площею 552,90 кв.м. (В)
10 018.55 грн
18.12 грн / м2
Приміщення
Полтавська обл., Миргородський район, смт. Комишня, вул. Миру, 101. Оренда – приміщення загальною площею 552,90 кв.м. (В)
Україна, Полтавська обл., Миргородський район, смт. Комишня, вул. Миру, 101
26.11.2025
Полтавська обл., Миргородський р-н, м. Лохвиця, вулиця Перемоги, 7. Оренда – приміщення 3-го поверху загальною площею 170,20 кв.м. (В)