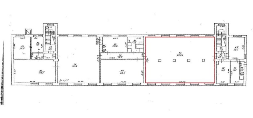
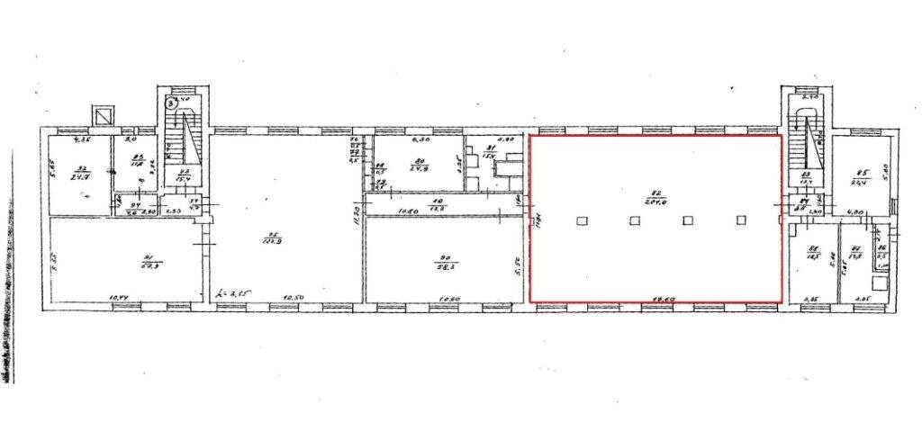
Чернігівська обл., м. Ніжин, вул. Заньковецької, 4. Оренда – приміщення 3-го поверху, площею 267,7 кв.м. (В)

8 095.25 грн
30.24 грн / м2
Україна, Чернігівська обл., Ніжин, вул. Заньковецької, 4
Перейти до аукціону на сайті
  • Інформація
  • Опис
  • Документи
Дата оголошення пропозиції:
04 жовтня 2021
Площа:
267.70 м2
Тип об’єкта:
Приміщення
Тип аукціону:
Англійський аукціон
Статус аукціону:
Аукціон не відбувся
Тип угоди:
Оренда
Розмір мінімального кроку:
150.00 ₴
Розмір гарантійного внеску:
4 857.15 ₴
Початок прийому пропозицій:
04.10.2021 11:44:55
Завершення прийому пропозицій:
02.11.2021 20:00:00
Лот:
UA-PS-2021-10-04-000040-1
№ лоту (УТК):
UTK290721_05Т
Лот виставляється на торги (раз):
3
Стислий опис майна:
Пропонується до оренди приміщення на третьому поверсі трьоповерхової будівлі площею 267,7 кв.м. Будівля знаходиться в центральній частині міста, розвинена інфраструктура, високі автомобільний та пішохідний потоки. Характеристики • кількість поверхів – 3 • загальна площа –1775,00 кв.м • площа запропонована до оренди – 267,7 кв.м • земельна ділянка – 0,3455 га (договір оренди)
Адреса місцезнаходження майна:
Україна, Чернігівська обл., Ніжин, вул. Заньковецької, 4
Схожі пропозиції
Чернігівська обл., м. Носівка, вул. Центральна, 18. Оренда приміщень 2-го поверху
2 345.65 грн
21.50 грн / м2
Приміщення
Чернігівська обл., м. Носівка, вул. Центральна, 18. Оренда приміщень 2-го поверху
Україна, Чернігівська обл., м. Носівка, вул. Центральна, 18
28.07.2023
Чернігівська обл., Чернігівський р-н, смт. Козелець, вул. Соборності, буд. 30А Оренда – приміщення 2-го поверху площею 14,5 кв.м. (В)
501.41 грн
34.58 грн / м2
Приміщення
Чернігівська обл., Чернігівський р-н, смт. Козелець, вул. Соборності, буд. 30А Оренда – приміщення 2-го поверху площею 14,5 кв.м. (В)
Україна, Чернігівська обл., Козелець, вул. Соборності, буд. 30А
26.11.2025
Чернігівська обл., м. Чернігів, проспект Миру, 28. Оренда – приміщення 1 поверху площею 22,80 кв.м. (В)
2 924.33 грн
128.26 грн / м2
Приміщення
Чернігівська обл., м. Чернігів, проспект Миру, 28. Оренда – приміщення 1 поверху площею 22,80 кв.м. (В)
Україна, Чернігівська обл., м. Чернігів, проспект Миру, 28
Чернігівська обл., м. Ніжин, вул. Заньковецької, 4. Оренда – приміщення 3-го поверху, площею 267,7 кв.м. (В)
4 625.86 грн
17.28 грн / м2
Приміщення
Чернігівська обл., м. Ніжин, вул. Заньковецької, 4. Оренда – приміщення 3-го поверху, площею 267,7 кв.м. (В)
Україна, Чернігівська обл., Ніжин, вул. Заньковецької, 4
Переглянуті пропозиції
16.05.2024
м. Чернігів, вул. Левка Лук'яненка (Рокоссовського), 33.Оренда – приміщення 4-го поверху площею 116,80 кв. м (В)
7 248.61 грн
62.06 грн / м2
Приміщення
м. Чернігів, вул. Левка Лук'яненка (Рокоссовського), 33.Оренда – приміщення 4-го поверху площею 116,80 кв. м (В)
Україна, Чернігівська обл., м. Чернігів, вул. Левка Лук'яненка (Рокоссовського), 33
ДОВГОСТРОКОВА ОРЕНДА! Дніпропетровська обл., м. Дніпро, вул. Кармалюка, 6а. Оренда – одноповерхова будівля площею 219,7 кв.м. (В)
10 126.41 грн
46.09 грн / м2
Будівля
ДОВГОСТРОКОВА ОРЕНДА! Дніпропетровська обл., м. Дніпро, вул. Кармалюка, 6а. Оренда – одноповерхова будівля площею 219,7 кв.м. (В)
Україна, Дніпропетровська обл., м. Дніпро, вул. Кармалюка, 6а
24.06.2025
м. Київ, вул. Наталії Ужвій 1 (Подільський р-н). Оренда – приміщення 3-го поверху, загальною площею – 105,80 м. кв. (В)
8 303.18 грн
78.48 грн / м2
Приміщення
м. Київ, вул. Наталії Ужвій 1 (Подільський р-н). Оренда – приміщення 3-го поверху, загальною площею – 105,80 м. кв. (В)
Україна, м.Київ, Київ, 04108, м. Київ, вул. Наталії Ужвій 1
28.12.2023
Рівненська обл., м. Рівне вул. Орлова, 37. Оренда – приміщення 4го поверху площею 326,3 м. кв. (В)
25 856.01 грн
79.24 грн / м2
Приміщення
Рівненська обл., м. Рівне вул. Орлова, 37. Оренда – приміщення 4го поверху площею 326,3 м. кв. (В)
Україна, Рівненська обл., м. Рівне, вул. Орлова, 37