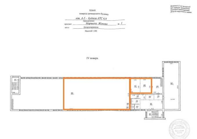
Дніпропетровська обл., м. Кам`янське, пр. Героїв АТО, 1. Оренда – приміщення 4-го поверху площею 293,05 кв.м. (В)

14 048.82 грн
47.95 грн / м2
Україна, Дніпропетровська обл., м. Кам`янське, пр. Героїв АТО, 1
Перейти до аукціону на сайті
  • Інформація
  • Опис
  • Документи
Дата оголошення пропозиції:
19 жовтня 2021
Площа:
293.00 м2
Тип об’єкта:
Приміщення
Тип аукціону:
Англійський аукціон
Статус аукціону:
Аукціон не відбувся
Тип угоди:
Оренда
Розмір мінімального кроку:
200.00 ₴
Розмір гарантійного внеску:
8 429.29 ₴
Початок прийому пропозицій:
19.10.2021 11:35:04
Завершення прийому пропозицій:
17.11.2021 20:00:00
Лот:
UA-PS-2021-10-19-000017-2
№ лоту (УТК):
UTK130921_02P
Лот виставляється на торги (раз):
2
Стислий опис майна:
Пропонується до оренди приміщення 4-го поверху площею 293,05 кв.м. Будівля в діловому центрі міста. Поруч розташовані відділення пошти, церква, магазини тощо. Вхід в приміщення спільний. Зручна транспортна розв’язка та інфраструктура. Характеристики: Кількість поверхів – 5; Загальна площа – 3830,20 кв.м_ Площа запропонована до оренди – 293,05 кв.м Теплопостачання, електропостачання, водопостачання. Земельна ділянка – 0,2793 га (договір оренди)
Адреса місцезнаходження майна:
Україна, Дніпропетровська обл., м. Кам`янське, пр. Героїв АТО, 1
Схожі пропозиції
20.08.2024
Дніпропетровська обл., м. Кам’янське, просп. Героїв АТО, 1. Оренда –  приміщення 3-го поверху загальною площею 112,0 кв.м (В)
2 352.00 грн
21.00 грн / м2
Приміщення
Дніпропетровська обл., м. Кам’янське, просп. Героїв АТО, 1. Оренда – приміщення 3-го поверху загальною площею 112,0 кв.м (В)
Україна, Дніпропетровська обл., м. Кам’янське, просп. Героїв АТО, 1
02.08.2024
Дніпропетровська обл., м. Дніпро, вул. Січових Стрільців, 10. Оренда – приміщення цокольного поверху площею 47,90 кв.м. (В)
5 006.51 грн
104.52 грн / м2
Приміщення
Дніпропетровська обл., м. Дніпро, вул. Січових Стрільців, 10. Оренда – приміщення цокольного поверху площею 47,90 кв.м. (В)
Україна, Дніпропетровська обл., м. Дніпро, вул. Січових Стрільців, 10
01.04.2025
Дніпропетровська обл., м. Дніпро, пр. Богдана Хмельницького, 28а. Оренда – приміщення 1-го поверху площею 116,20 кв.м (В)
9 630.66 грн
82.88 грн / м2
Приміщення
Дніпропетровська обл., м. Дніпро, пр. Богдана Хмельницького, 28а. Оренда – приміщення 1-го поверху площею 116,20 кв.м (В)
Україна, Дніпропетровська обл., пр. Богдана Хмельницького, 28а, м. Дніпро
18.07.2025
Дніпропетровська обл., м. Дніпро, вул. Князя Ярослава Мудрого, 3. Оренда – приміщення 4-го поверху площею 51,40 кв.м (В)
6 075.48 грн
118.20 грн / м2
Приміщення
Дніпропетровська обл., м. Дніпро, вул. Князя Ярослава Мудрого, 3. Оренда – приміщення 4-го поверху площею 51,40 кв.м (В)
Україна, Дніпропетровська обл., м. Дніпро, вул. Князя Ярослава Мудрого, 3