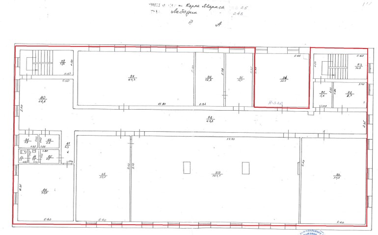
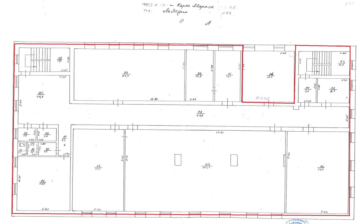
Сумська обл., м. Лебедин, вул. Героїв Майдану, буд. 25. Оренда – приміщення 3-го поверху площею 554,7 кв.м (В)

6 728.51 грн
12.13 грн / м2
Україна, Сумська обл., м. Лебедин, вул. Героїв Майдану, буд. 25
Перейти до аукціону на сайті
  • Інформація
  • Опис
  • Документи
Дата оголошення пропозиції:
20 жовтня 2021
Площа:
554.70 м2
Тип об’єкта:
Приміщення
Тип аукціону:
Англійський аукціон
Статус аукціону:
Аукціон не відбувся
Тип угоди:
Оренда
Розмір мінімального кроку:
150.00 ₴
Розмір гарантійного внеску:
4 037.11 ₴
Початок прийому пропозицій:
20.10.2021 09:25:16
Завершення прийому пропозицій:
18.11.2021 20:00:00
Лот:
UA-PS-2021-10-20-000008-1
№ лоту (УТК):
UTK130721_18C
Лот виставляється на торги (раз):
4
Стислий опис майна:
Пропонуються до оренди офісні приміщення 3-го поверху площею 554,7 кв.м. адміністративної будівлі. Сама будівля розташована в центрі міста. Вхід з тильної сторони будівлі, окремий вхід. Є місце для паркування. Характеристики кількість поверхів – 3 Загальна площа – 2249,9 кв.м. Площа запропонована до оренди – 554,7 кв. м. Опалення, водопостачання, електропостачання – наявні; земельна ділянка – 0,1595 га (договір оренди ЗД) стан приміщення -задовільний
Адреса місцезнаходження майна:
Україна, Сумська обл., м. Лебедин, вул. Героїв Майдану, буд. 25
Схожі пропозиції
Сумська обл., м. Шостка, вул. Садовий бульвар, 12. Оренда приміщень 1 пов.
3 640.42 грн
12.48 грн / м2
Приміщення
Сумська обл., м. Шостка, вул. Садовий бульвар, 12. Оренда приміщень 1 пов.
Україна, Сумська обл., м. Шостка, вул. Садовий бульвар, 12
Сумська обл., м. Суми, вул. Іллінська, буд. 2. Оренда – приміщення 7-го та 8-го поверхів площею 708,40 кв.м. (В)
4 044.96 грн
5.71 грн / м2
Приміщення
Сумська обл., м. Суми, вул. Іллінська, буд. 2. Оренда – приміщення 7-го та 8-го поверхів площею 708,40 кв.м. (В)
Україна, Сумська обл., м. Суми, вул. Іллінська, 2
21.06.2023
Сумська область, м. Шостка, вул. Онупрієнка, буд. 13. Оренда – приміщення 1-го, 2-го, 3-го поверхів площею 1142,10 кв.м. (П)
60 862.51 грн
53.29 грн / м2
Приміщення
Сумська область, м. Шостка, вул. Онупрієнка, буд. 13. Оренда – приміщення 1-го, 2-го, 3-го поверхів площею 1142,10 кв.м. (П)
Україна, Сумська обл., м. Шостка, вул. Онупрієнка, буд. 13
02.09.2025
Сумська обл., Охтирський р-н, с. Бугрувате, вул. Литовченка, буд. 3. Оренда – нежитлове приміщення площею 24,70 кв. м. (В)
553.53 грн
22.41 грн / м2
Приміщення
Сумська обл., Охтирський р-н, с. Бугрувате, вул. Литовченка, буд. 3. Оренда – нежитлове приміщення площею 24,70 кв. м. (В)
Україна, Сумська обл., Бугрувате, Бугрувате, вул. Литовченка, буд. 3
Переглянуті пропозиції
30.07.2024
Рівненська обл., Рівненський р-н, с.Тучин, вул.Поштова, 4. Оренда – виробничі приміщення загальною площею 243,1 кв.м. (В)
3 882.31 грн
15.97 грн / м2
Приміщення
Рівненська обл., Рівненський р-н, с.Тучин, вул.Поштова, 4. Оренда – виробничі приміщення загальною площею 243,1 кв.м. (В)
Україна, Рівненська обл., Рівненський р-н, с.Тучин, вул.Поштова, 4
13.05.2025
м. Київ, вул. Дегтярівська, 28А, літ. «А» (Шевченківський р-н). Оренда – приміщення на 4-му поверсі, площею – 496,20 кв.м (В)
74 608.63 грн
150.36 грн / м2
Приміщення
м. Київ, вул. Дегтярівська, 28А, літ. «А» (Шевченківський р-н). Оренда – приміщення на 4-му поверсі, площею – 496,20 кв.м (В)
Україна, м.Київ, Київ, 04119, м. Київ, вул. Дегтярівська, 28А, літ. «А» (Шевченківський р-н)
27.09.2024
ДОВГОСТРОКОВА ОРЕНДА! Харківська обл., м. Харків, Нетіченська набережна, 8.Оренда – приміщення на 9-му поверсі загальною площею 513,50 кв.м. (В)
24 339.90 грн
47.40 грн / м2
Приміщення
ДОВГОСТРОКОВА ОРЕНДА! Харківська обл., м. Харків, Нетіченська набережна, 8.Оренда – приміщення на 9-му поверсі загальною площею 513,50 кв.м. (В)
Україна, Харківська обл., м. Харків, Нетіченська набережна, 8