Полтавська обл., Полтавський р-н., м. Решетилівка, вул. Полтавська, 50. Оренда – підсобне приміщення та гараж площею 50,30 кв.м. (В)

769.59 грн
15.30 грн / м2
Україна, Полтавська обл., Полтавський р-н., м. Решетилівка, вул. Полтавська, 50
Перейти до аукціону на сайті
  • Інформація
  • Опис
  • Документи
Дата оголошення пропозиції:
21 жовтня 2021
Площа:
50.30 м2
Тип об’єкта:
Приміщення
Тип аукціону:
Англійський аукціон
Статус аукціону:
Аукціон не відбувся
Тип угоди:
Оренда
Розмір мінімального кроку:
30.00 ₴
Розмір гарантійного внеску:
461.75 ₴
Початок прийому пропозицій:
21.10.2021 14:07:23
Завершення прийому пропозицій:
22.11.2021 20:00:00
Лот:
UA-PS-2021-10-21-000038-1
№ лоту (УТК):
UTK130721_03P
Лот виставляється на торги (раз):
4
Стислий опис майна:
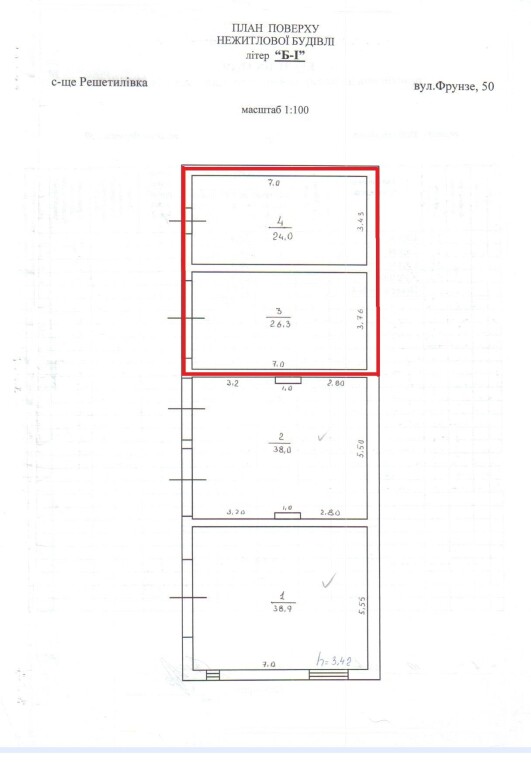
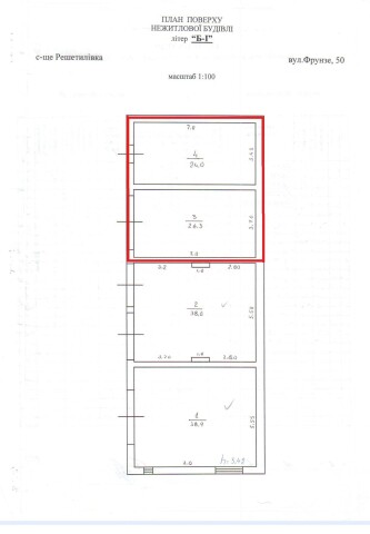
Пропонується до оренди підсобне приміщення та гараж площею 50,30 кв.м. Приміщення знаходиться в центрі м. Решетилівка. Характеристики: Кількість поверхів – 1; Загальна площа – 127,20 кв.м.; Площа запропонована до оренди 50,30 кв.м.; Опалення – відсутнє; Дозволена потужність – відсутня; Земельна ділянка – 0,2039 га (договір оренди)
Адреса місцезнаходження майна:
Україна, Полтавська обл., Полтавський р-н., м. Решетилівка, вул. Полтавська, 50
Схожі пропозиції
06.05.2025
Полтавська обл., Кременчуцький р-н, с. Великі Кринки, вулиця Полтавська, 29. Оренда – приміщення 1-го поверху загальною площею 49,50 кв.м (В)
641.52 грн
12.96 грн / м2
Приміщення
Полтавська обл., Кременчуцький р-н, с. Великі Кринки, вулиця Полтавська, 29. Оренда – приміщення 1-го поверху загальною площею 49,50 кв.м (В)
Україна, Полтавська обл., Кременчуцький р-н, с. Великі Кринки, вул. Полтавська, 29
28.05.2025
Полтавська обл., Миргородський р-н, смт. Велика Багачка, вулиця Чекалових, 17. Оренда – приміщення 2-го поверху загальною площею 29,00 кв.м. (В)
943.66 грн
32.54 грн / м2
Приміщення
Полтавська обл., Миргородський р-н, смт. Велика Багачка, вулиця Чекалових, 17. Оренда – приміщення 2-го поверху загальною площею 29,00 кв.м. (В)
Україна, Полтавська обл., Велика Багачка, : 38300, Полтавська обл., Миргородський р-н, смт. Велика Багачка, вул. Чекалових, 17
19.12.2024
  Полтавська обл., Кременчуцький район, с. Кияшки, вулиця Набережна, 2 «в»; Оренда – приміщення бази відпочинку загальною площею 1317,90 кв.м. (В)
22.09.2022
Полтавська обл., м. Кременчук, вулиця Соборна, 17. Оренда – приміщення 2-го поверху площею 22,40 кв.м. (В)
1 458.24 грн
65.10 грн / м2
Приміщення
Полтавська обл., м. Кременчук, вулиця Соборна, 17. Оренда – приміщення 2-го поверху площею 22,40 кв.м. (В)
Україна, Полтавська обл., м. Кременчук, Соборна вулиця, 17
Переглянуті пропозиції
06.11.2024
Полтавська обл., смт. Шишаки, вулиця Корнілича, 10. Оренда – приміщення підвального поверху загальною площею 60,00 кв.м. (В)
979.20 грн
16.32 грн / м2
Приміщення
Полтавська обл., смт. Шишаки, вулиця Корнілича, 10. Оренда – приміщення підвального поверху загальною площею 60,00 кв.м. (В)
Україна, Полтавська обл., смт. Шишаки, вул. Корнілича, 10
17.09.2024
Полтавська обл., Кременчуцький р-н, м. Кременчук, вулиця Пугачова, 12. Оренда – приміщення 1-го поверху загальною площею 32,00 кв.м. (В)
3 242.24 грн
14.89 грн / м2
Приміщення
Полтавська обл., Кременчуцький р-н, м. Кременчук, вулиця Пугачова, 12. Оренда – приміщення 1-го поверху загальною площею 32,00 кв.м. (В)
Україна, Полтавська обл., м. Кременчук, вулиця Пугачова, 12
м. Київ, вул. Джона Маккейна, №40 , Оренда – приміщення підвалу, площею 44,26 м2 , (В)
18 345.33 грн
415.05 грн / м2
Приміщення
м. Київ, вул. Джона Маккейна, №40 , Оренда – приміщення підвалу, площею 44,26 м2 , (В)
Україна, м.Київ, Київ, вул. Джона Маккейна, №40
26.12.2024
Рівненська обл., Рівненський р-н., м. Здолбунів, вул. Б.Хмельницького, 7. Оренда – приміщення підвалу, 2 поверху та надвірної будівлі загальною площею 661,4 кв.м. (В)
8 928.90 грн
13.50 грн / м2
Приміщення
Рівненська обл., Рівненський р-н., м. Здолбунів, вул. Б.Хмельницького, 7. Оренда – приміщення підвалу, 2 поверху та надвірної будівлі загальною площею 661,4 кв.м. (В)
Україна, Рівненська обл., Рівненський р-н., м. Здолбунів, вул. Б.Хмельницького, 7