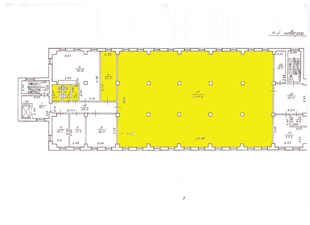
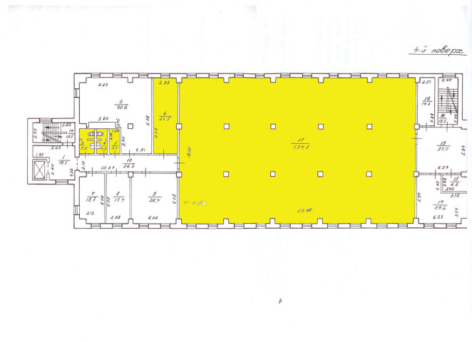
Харківська обл., м. Харків, вул. Ак.Вальтера, 3. Оренда – приміщення четвертого поверху, площею 575,8 кв.м. (В)

11 642.68 грн
20.22 грн / м2
Україна, Харківська обл., Харків, Ак. Вальтера,3
Перейти до аукціону на сайті
  • Інформація
  • Опис
  • Документи
Дата оголошення пропозиції:
08 листопада 2021
Площа:
575.80 м2
Тип об’єкта:
Приміщення
Тип аукціону:
Англійський аукціон
Статус аукціону:
Аукціон не відбувся
Тип угоди:
Оренда
Розмір мінімального кроку:
300.00 ₴
Розмір гарантійного внеску:
6 985.61 ₴
Початок прийому пропозицій:
08.11.2021 12:07:43
Завершення прийому пропозицій:
07.12.2021 20:00:00
Лот:
UA-PS-2021-11-08-000022-3
№ лоту (УТК):
UTK160721_28Т
Лот виставляється на торги (раз):
5
Стислий опис майна:
Пропонуються до оренди нежитлові приміщення четвертого поверху, площею 575,8 кв.м, розташовані за адресою : м. Харків, вул. Ак. Вальтера,3. Будівля знаходиться в спальному районі міста, 5 хвилин до зупинки громадського маршрутного автобусу. Характеристики: • Кількість поверхів – 4; • В приміщеннях присутнє опалення, електроенергія , на поверсі є водопостачання та сан. кімната; • Земельна ділянка – 4600,0 кв.м.
Адреса місцезнаходження майна:
Україна, Харківська обл., Харків, Ак. Вальтера,3
Схожі пропозиції
21.03.2024
м. Харків, вул. Амосова,13-в.Оренда – приміщення 5-го поверху площею 55,2 кв.м (В)
3 352.85 грн
60.74 грн / м2
Приміщення
м. Харків, вул. Амосова,13-в.Оренда – приміщення 5-го поверху площею 55,2 кв.м (В)
Україна, Харківська обл., м. Харків, вул. Амосова,13-в
03.06.2025
ДОВГОСТРОКОВА ОРЕНДА! м. Харків, вул. Сумгаїтська, 9а.Оренда – приміщення 4-го поверху, площею 643,1 кв.м (В)
39 357.72 грн
61.20 грн / м2
Приміщення
ДОВГОСТРОКОВА ОРЕНДА! м. Харків, вул. Сумгаїтська, 9а.Оренда – приміщення 4-го поверху, площею 643,1 кв.м (В)
Україна, Харківська обл., м. Харків, вул. Сумгаїтська, 9а
22.02.2023
Харківська обл., м. Первомайський, мікрорайон 3, буд.1-А. Оренда – приміщення першого поверху, площею 145,2 кв.м. (В)
577.90 грн
3.98 грн / м2
Приміщення
Харківська обл., м. Первомайський, мікрорайон 3, буд.1-А. Оренда – приміщення першого поверху, площею 145,2 кв.м. (В)
Україна, Харківська обл., м. Первомайський, мікрорайон 3, буд.1-А
26.03.2024
Харківська обл., м. Харків, вул. Коцарська, 45, літер «А-4»;  Оренда – приміщення на 2-му поверсі загальною площею 48,70 кв.м. (В)
3 179.14 грн
65.28 грн / м2
Приміщення
Харківська обл., м. Харків, вул. Коцарська, 45, літер «А-4»; Оренда – приміщення на 2-му поверсі загальною площею 48,70 кв.м. (В)
Україна, Харківська обл., Харків, вулиця Коцарська, 45
Переглянуті пропозиції
09.08.2022
Полтавська обл., Полтавський р-н., смт. Диканька, вул. Полтавська, 29. Оренда – комплекс будівель площею 192,70 кв.м. (В)
2 505.10 грн
13.00 грн / м2
Будівля
Полтавська обл., Полтавський р-н., смт. Диканька, вул. Полтавська, 29. Оренда – комплекс будівель площею 192,70 кв.м. (В)
Україна, Полтавська обл., Полтавський р-н., смт. Диканька, вул. Полтавська, 29