Рівненська обл., Сарненський р-н, смт. Степань, вул. Київська, 18. Оренда – приміщення 2-го поверху та гараж, загальною площею 186,80 кв.м. (В)

6 551.08 грн
35.07 грн / м2
Україна, Рівненська обл., Сарненський р-н, смт. Степань, вул. Київська, 18
Перейти до аукціону на сайті
  • Інформація
  • Опис
  • Документи
Дата оголошення пропозиції:
17 листопада 2021
Площа:
186.80 м2
Тип об’єкта:
Приміщення
Тип аукціону:
Англійський аукціон
Статус аукціону:
Аукціон не відбувся
Тип угоди:
Оренда
Розмір мінімального кроку:
300.00 ₴
Розмір гарантійного внеску:
3 930.65 ₴
Початок прийому пропозицій:
17.11.2021 14:34:38
Завершення прийому пропозицій:
16.12.2021 20:00:00
Лот:
UA-PS-2021-11-17-000087-1
№ лоту (УТК):
UTK260821_03P
Лот виставляється на торги (раз):
3
Стислий опис майна:
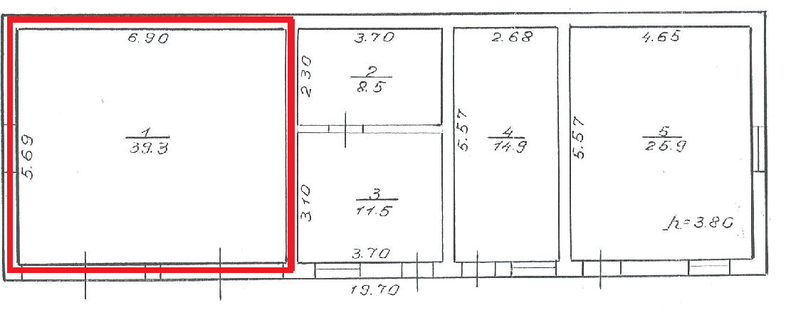
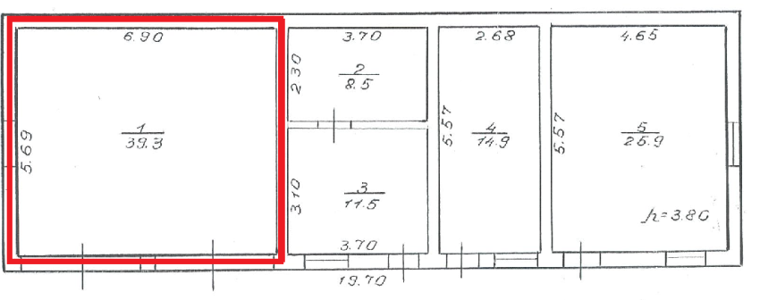
Пропонується до оренди приміщення 2-го поверху та гараж, загальною площею 186,80 кв.м. Будівлі знаходяться в серединній частині смт., досить розвинена інфраструктура. Територія огороджена та частково впорядкована. Окремий вхід відсутній. Приміщення потребують реконструкції системи електропостачання. Опалення відсутнє. Характеристики: Загальна площа – 416,20 кв.м.; Площа, запропонована до оренди 186,80 кв.м.,- з яких виробничі приміщення 147,50 кв.м. та гараж 39,30 кв.м.; Земельна ділянка - площа 0,1247 га.
Адреса місцезнаходження майна:
Україна, Рівненська обл., Сарненський р-н, смт. Степань, вул. Київська, 18
Схожі пропозиції
Рівненська обл., м. Здолбунів вул. Грушевського,15. Оренда приміщень прохідної
128.24 грн
14.74 грн / м2
Приміщення
Рівненська обл., м. Здолбунів вул. Грушевського,15. Оренда приміщень прохідної
Україна, Рівненська обл., м. Здолбунів , вул. Грушевського,15
07.11.2024
Рівненська обл. смт. Рокитне вул.Незалежності,9. Оренда – приміщення 1-го , 2-го та 3–го поверху загальною площею 365,6 м. кв. (В)
5 484.00 грн
15.00 грн / м2
Приміщення
Рівненська обл. смт. Рокитне вул.Незалежності,9. Оренда – приміщення 1-го , 2-го та 3–го поверху загальною площею 365,6 м. кв. (В)
Україна, Рівненська обл., Сарненський р-н., смт. Рокитне, вул. Незалежності, 9
Рівненська обл., м. Костопіль вул. Грушевського, 34. Оренда – підвальне приміщення площею 306,70 кв.м. (В)
7 176.78 грн
23.40 грн / м2
Приміщення
Рівненська обл., м. Костопіль вул. Грушевського, 34. Оренда – підвальне приміщення площею 306,70 кв.м. (В)
Україна, Рівненська обл., м. Костопіль, вул. Грушевського, 34
Рівненська обл., м. Рівне вул. Міцкевича, 2. Оренда – приміщення 2-го поверху загальною площею 131,4 м.кв. (В)
13 300.31 грн
101.22 грн / м2
Приміщення
Рівненська обл., м. Рівне вул. Міцкевича, 2. Оренда – приміщення 2-го поверху загальною площею 131,4 м.кв. (В)
Україна, Рівненська обл., м. Рівне, вул. Міцкевича, 2