Дніпропетровська обл., м. Кам’янське, просп. Героїв АТО, 1. Оренда – приміщення 3-го поверху, площею 26,30 кв.м. (В)

500.23 грн
19.02 грн / м2
Україна, Дніпропетровська обл., м. Кам’янське, просп. Героїв АТО, 1
Перейти до аукціону на сайті
  • Інформація
  • Опис
  • Документи
Дата оголошення пропозиції:
24 листопада 2021
Площа:
26.30 м2
Тип об’єкта:
Приміщення
Тип аукціону:
Англійський аукціон
Статус аукціону:
Аукціон не відбувся
Тип угоди:
Оренда
Розмір мінімального кроку:
20.00 ₴
Розмір гарантійного внеску:
300.14 ₴
Початок прийому пропозицій:
24.11.2021 15:36:42
Завершення прийому пропозицій:
23.12.2021 20:00:00
Лот:
UA-PS-2021-11-24-000041-3
№ лоту (УТК):
UTK240621_09P
Лот виставляється на торги (раз):
6
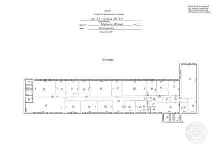
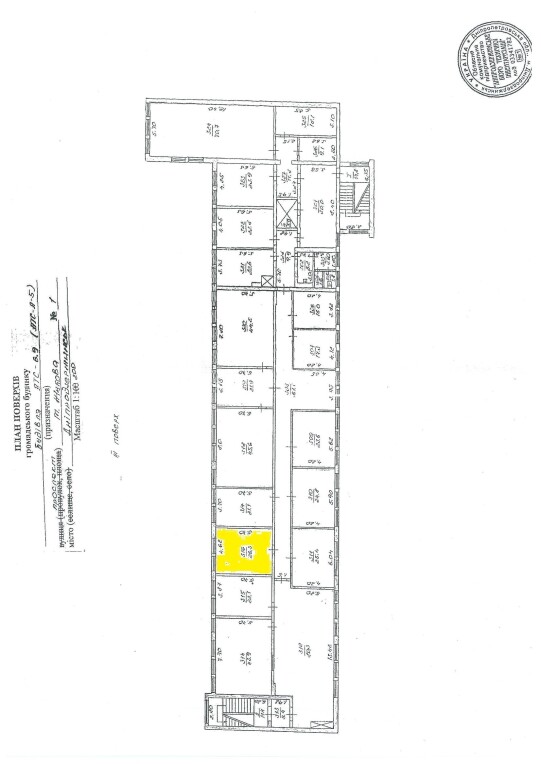
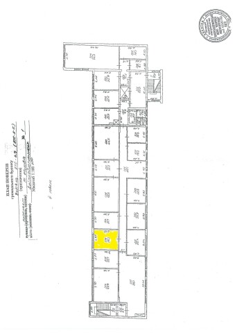
Стислий опис майна:
Пропонується до оренди приміщення 3-го поверху, площею 26,30 кв.м., Дніпропетровська обл., м. Кам’янське, просп. Героїв АТО, 1. Будівля знаходиться на лівобережній частині міста, розвинена інфраструктура. Окремий вхід відсутній, доступ до об’єкта здійснюється через загальні сходи та вхід до будівлі. Характеристики: Кількість поверхів – 5; Електропостачання, опалення. Водопостачання, водовідведення – в місцях загального користування; Стан – задовільний, підходить для офісу, cкладу. Загальна площа – 3859,50
Адреса місцезнаходження майна:
Україна, Дніпропетровська обл., м. Кам’янське, просп. Героїв АТО, 1
Схожі пропозиції
Дніпропетровська обл., м. Кривий Ріг, вул. Головка Адмірала, 71. Оренда – приміщення 4-го поверху, площею 580,5 кв.м. (В)
29 744.82 грн
51.24 грн / м2
Приміщення
Дніпропетровська обл., м. Кривий Ріг, вул. Головка Адмірала, 71. Оренда – приміщення 4-го поверху, площею 580,5 кв.м. (В)
Україна, Дніпропетровська обл., Кривий Ріг, вул. Головка Адмірала, 71
23.01.2024
Дніпропетровська обл., м. Дніпро, вул. Князя Ярослава Мудрого, 3. Оренда – приміщення 4-го поверху площею 21,60 кв.м. (В)
2 584.43 грн
119.65 грн / м2
Приміщення
Дніпропетровська обл., м. Дніпро, вул. Князя Ярослава Мудрого, 3. Оренда – приміщення 4-го поверху площею 21,60 кв.м. (В)
Україна, Дніпропетровська обл., м. Дніпро, вул. Князя Ярослава Мудрого, 3
06.10.2023
Дніпропетровська обл., м. Дніпро, пр. Пушкіна, 75а. Оренда – приміщення 1-го поверху площею 11,5 кв.м. (В)
1 585.39 грн
137.86 грн / м2
Приміщення
Дніпропетровська обл., м. Дніпро, пр. Пушкіна, 75а. Оренда – приміщення 1-го поверху площею 11,5 кв.м. (В)
Україна, Дніпропетровська обл., Дніпро, вулиця Пушкіна, 75
18.07.2025
Дніпропетровська обл., м. Дніпро, вул. Січових Стрільців, 10. Оренда – приміщення 2-го поверху площею 18,20 кв.м. (В)
1 474.20 грн
81.00 грн / м2
Приміщення
Дніпропетровська обл., м. Дніпро, вул. Січових Стрільців, 10. Оренда – приміщення 2-го поверху площею 18,20 кв.м. (В)
Україна, Дніпропетровська обл., м. Дніпро, вул. Січових Стрільців, 10