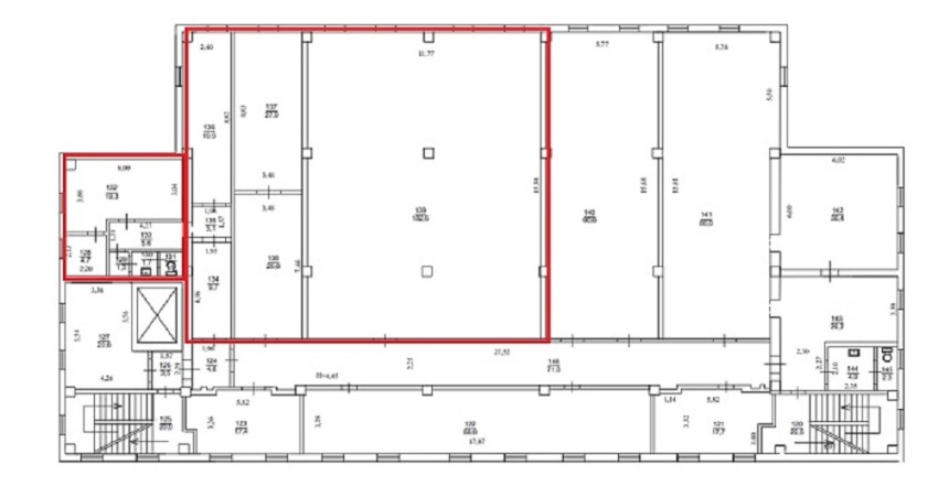
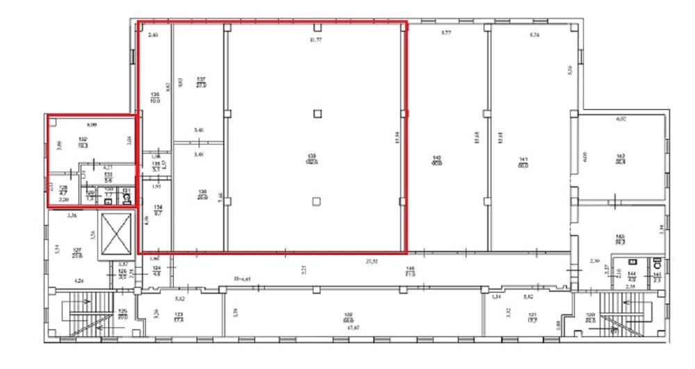
Рівненська обл., м. Рівне вул. Орлова,37. Оренда – приміщення 4 – го поверху площею 303,0 м. кв. (П)

11 817.00 грн
39.00 грн / м2
Україна, Рівненська обл., м. Рівне, вул. Орлова,37
Перейти до аукціону на сайті
  • Інформація
  • Опис
  • Документи
Дата оголошення пропозиції:
22 липня 2022
Площа:
303.00 м2
Тип об’єкта:
Приміщення
Тип аукціону:
Англійський аукціон
Статус аукціону:
Аукціон не відбувся
Тип угоди:
Оренда
Розмір мінімального кроку:
150.00 ₴
Розмір гарантійного внеску:
7 090.20 ₴
Початок прийому пропозицій:
22.07.2022 11:27:40
Завершення прийому пропозицій:
22.08.2022 20:00:00
Проведення аукціону:
23.08.2022 12:15:00
Лот:
CLE001-UA-20220722-12392
№ лоту (УТК):
UTK160622_14P
Лот виставляється на торги (раз):
2
Стислий опис майна:
Пропонується до оренди приміщення 4 –го поверху площею 303 м. кв. Будівля знаходиться в серединній частині міста, досить розвинена інфраструктура. Поряд відділення Ощадбанку, магазини, середні автомобільні та пішохідні потоки. Територія огороджена та частково впорядкована. Окремий вхід відсутній. Приміщення потребують реконструкції системи електропостачання. Опалення відсутнє. Характеристики: Кількість поверхів – 6 ; Загальна площа – 4535,1 м. кв.; Площа, запропонована до оренди – 303 м.кв.; Земельна ділянка - площа 0,3639 га.
Адреса місцезнаходження майна:
Україна, Рівненська обл., м. Рівне, вул. Орлова,37
Схожі пропозиції
10.06.2025
м. Рівне, вул. Чорновола,101В. Оренда – приміщення 1 поверху площею 9,90 кв.м (В)
500.05 грн
50.51 грн / м2
Приміщення
м. Рівне, вул. Чорновола,101В. Оренда – приміщення 1 поверху площею 9,90 кв.м (В)
Україна, Рівненська обл., Рівне, 33028 м. Рівне вул. Чорновола,101В
23.02.2024
Рівненська обл., Рівненський р-н, с. Пустомити, вул. Радянська, 41. Оренда – виробничі приміщення площею 21,80 кв.м. (В)
261.60 грн
12.00 грн / м2
Приміщення
Рівненська обл., Рівненський р-н, с. Пустомити, вул. Радянська, 41. Оренда – виробничі приміщення площею 21,80 кв.м. (В)
Україна, Рівненська обл., Рівненський р-н, с. Пустомити, вул. Радянська, 41
м. Рівне вул. Міцкевича, 2. Оренда приміщень цокольного поверху
10 466.38 грн
39.01 грн / м2
Приміщення
м. Рівне вул. Міцкевича, 2. Оренда приміщень цокольного поверху
Україна, Рівненська обл., м. Рівне, вул. Міцкевича, 2
07.10.2025
Довгострокова оренда! Рівненська обл., м. Рівне вул. Міцкевича, 2. Оренда – приміщення 1-го поверху загальною площею 150,30 м. кв. (В)
11 317.59 грн
75.30 грн / м2
Приміщення
Довгострокова оренда! Рівненська обл., м. Рівне вул. Міцкевича, 2. Оренда – приміщення 1-го поверху загальною площею 150,30 м. кв. (В)
Україна, Рівненська обл., Рівне, 33028 Рівненська обл., м. Рівне, вул. Міцкевича.2