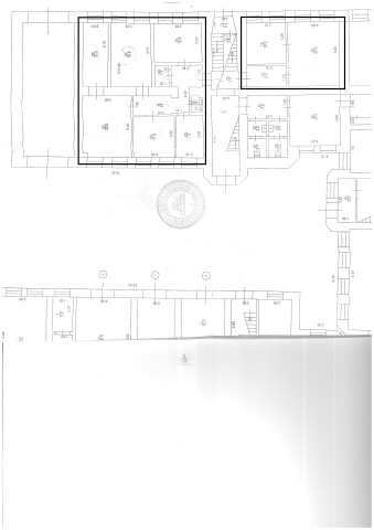
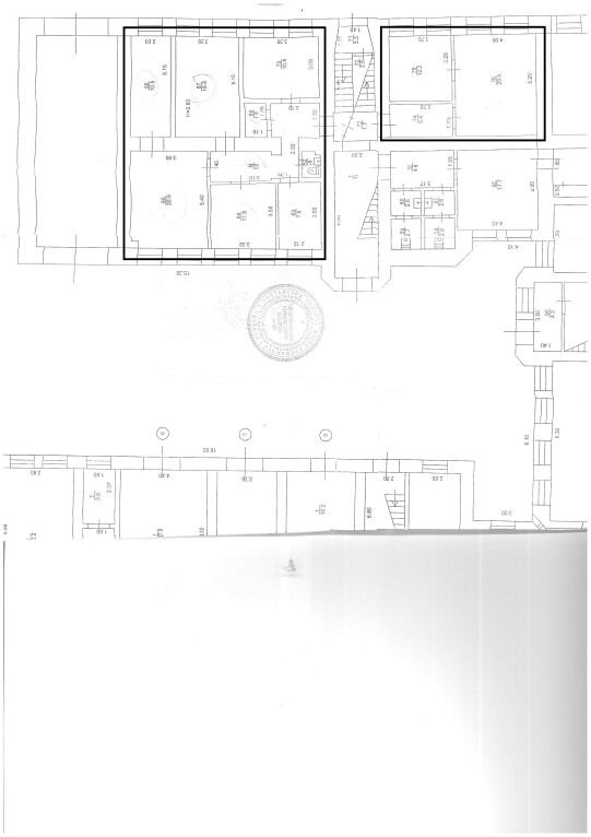
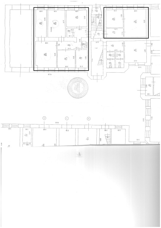
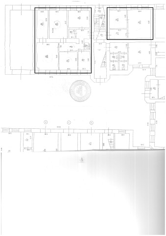
Кіровоградська обл., м. Кропивницький, вул. Шевченка, 17/20. Оренда – приміщення одноповерхової нежитлової будівлі площею 35,60 кв.м. (В)

1 644.72 грн
46.20 грн / м2
Україна, Кіровоградська обл., м. Кропивницький, вул. Шевченка, 17/20
Перейти до аукціону на сайті
  • Інформація
  • Опис
  • Документи
Дата оголошення пропозиції:
25 липня 2022
Площа:
35.60 м2
Тип об’єкта:
Приміщення
Тип аукціону:
Англійський аукціон
Статус аукціону:
Аукціон не відбувся
Тип угоди:
Оренда
Розмір мінімального кроку:
50.00 ₴
Розмір гарантійного внеску:
986.83 ₴
Початок прийому пропозицій:
25.07.2022 14:09:46
Завершення прийому пропозицій:
24.08.2022 20:00:00
Проведення аукціону:
25.08.2022 11:50:00
Лот:
CLE001-UA-20220725-16610
№ лоту (УТК):
UTK301121_05P
Лот виставляється на торги (раз):
7
Стислий опис майна:
Пропонується до оренди приміщення одноповерхової нежитлової будівлі площею 35,60 кв.м. Розташування - будівля знаходиться у центральній частині міста. Поруч знаходяться, продуктові магазини, високий автомобільний і пішохідний потоки. Стан приміщення потребує ремонту, складу, майстерні. Ідеальне місце під розвиток будь-якого бізнесу. Характеристики: - Кількість поверхів – 1; - Загальна площа – 35,60 кв.м.; - Площа запропонована до оренди – 35,60 кв.м.
Адреса місцезнаходження майна:
Україна, Кіровоградська обл., м. Кропивницький, вул. Шевченка, 17/20
Схожі пропозиції
Кіровоградська обл., м. Новомиргород, вул. Соборності, 110/33. Оренда – приміщення 2-го та 3-го поверхів площею 174,3 кв.м.
1 842.35 грн
10.57 грн / м2
Приміщення
Кіровоградська обл., м. Новомиргород, вул. Соборності, 110/33. Оренда – приміщення 2-го та 3-го поверхів площею 174,3 кв.м.
Україна, Кіровоградська обл., м. Новомиргород, вул. Соборності, буд. 110/33
Кіровоградська обл., м. Долинська, вул. Соборності України, 39. Оренда – приміщення 2-го та 3-го поверху площею 1774,60 кв.м. (В)
70 061.21 грн
39.48 грн / м2
Приміщення
Кіровоградська обл., м. Долинська, вул. Соборності України, 39. Оренда – приміщення 2-го та 3-го поверху площею 1774,60 кв.м. (В)
Україна, Кіровоградська обл., м. Долинська, вул. Соборності України, 39
Кіровоградська обл., смт. Онуфріївка, вул. М. Скляра, 7. Оренда – приміщення 1-го та 2-го поверху площею 308,3 кв.м. (В)
647.43 грн
2.10 грн / м2
Приміщення
Кіровоградська обл., смт. Онуфріївка, вул. М. Скляра, 7. Оренда – приміщення 1-го та 2-го поверху площею 308,3 кв.м. (В)
Україна, Кіровоградська обл., смт. Онуфріївка, вул. М. Скляра, буд. 7
10.01.2023
Кіровоградська обл., м. Кропивницький, вул. Преображенська, 5. Оренда – приміщення 2-го поверху площею 250 кв.м. (В)
21 962.50 грн
87.85 грн / м2
Приміщення
Кіровоградська обл., м. Кропивницький, вул. Преображенська, 5. Оренда – приміщення 2-го поверху площею 250 кв.м. (В)
Україна, Кіровоградська обл., м. Кропивницький, вул. Преображенська, 5, вул. Преображенська, 5
Переглянуті пропозиції
16.11.2023
Полтавська обл., м. Кременчук, вулиця Олега Кошового, 9, кв.26;  Оренда – приміщення площею 47,00 кв.м. (В)
7 452.79 грн
158.57 грн / м2
Приміщення
Полтавська обл., м. Кременчук, вулиця Олега Кошового, 9, кв.26; Оренда – приміщення площею 47,00 кв.м. (В)
Україна, Полтавська обл., Кременчук, вулиця Олега Кошового, 9,кв.26
Полтавська обл., Лубенський р-н, с. Засулля, вул. Молодіжна, буд.20. Оренда – одноповерхова будівля площею 189,80 кв.м. (В)
502.97 грн
2.65 грн / м2
Будівля
Полтавська обл., Лубенський р-н, с. Засулля, вул. Молодіжна, буд.20. Оренда – одноповерхова будівля площею 189,80 кв.м. (В)
Україна, Полтавська обл., Лубенський р-н, с. Засулля, вул. Молодіжна, буд.20
16.11.2023
Полтавська обл., Полтавський р-н, cмт. Чутове, вул. Незалежності, 24. Оренда – приміщення 3-го поверху площею 30,60 кв.м. (В)
1 276.63 грн
41.72 грн / м2
Приміщення
Полтавська обл., Полтавський р-н, cмт. Чутове, вул. Незалежності, 24. Оренда – приміщення 3-го поверху площею 30,60 кв.м. (В)
Україна, Полтавська обл., Полтавський р-н, cмт. Чутове, вул. Незалежності, 24
12.08.2022
ДОВГОСТРОКОВА ОРЕНДА! м. Київ, вул. Ісаакяна, 3. Оренда – Приміщення цокольного поверху площею 400,80 кв.м. (В)