Рівненська обл., Рівненський р-н, с. Моквин, вул. Шевченка, 3. Оренда – виробничі приміщення загальною площею 144,7 м.кв. (В)

2 063.42 грн
14.26 грн / м2
Україна, Рівненська обл., Рівненський р-н, с. Моквин, вул. Шевченка, 3
Перейти до аукціону на сайті
  • Інформація
  • Опис
  • Документи
Дата оголошення пропозиції:
27 липня 2022
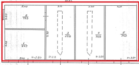
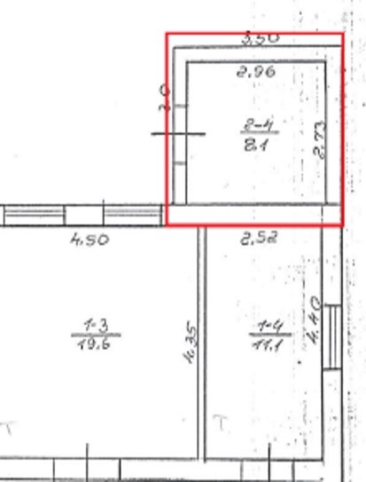
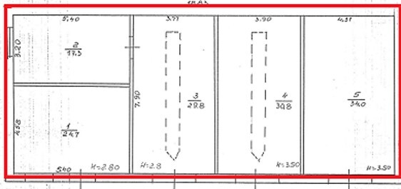
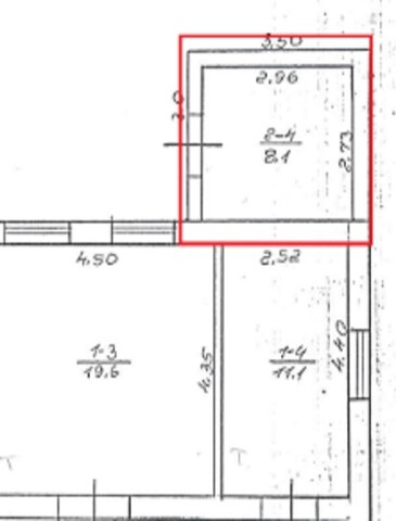
Площа:
144.70 м2
Тип об’єкта:
Приміщення
Тип аукціону:
Англійський аукціон
Статус аукціону:
Аукціон не відбувся
Тип угоди:
Оренда
Розмір мінімального кроку:
100.00 ₴
Розмір гарантійного внеску:
1 238.05 ₴
Початок прийому пропозицій:
27.07.2022 12:48:46
Завершення прийому пропозицій:
25.08.2022 20:00:00
Проведення аукціону:
26.08.2022 11:55:00
Лот:
CLE001-UA-20220727-92941
№ лоту (УТК):
UTK160821_06P
Лот виставляється на торги (раз):
10
Стислий опис майна:
Пропонуються до оренди виробничі приміщення загальною площею 144,7 м.кв. ( 1 поверх) Будівлі знаходяться в центрі села, інфраструктура досить розвинена - поряд магазини, сільська рада. Можливість передачі приміщень в суборенду. Можливість внутрішніх перепланувань. Характеристики: Кількість поверхів – 1; Загальна площа – 239,2 м.кв.; Площа, запропонована до оренди – 144,7 м.кв.; Опалення – відсутнє; Земельна ділянка - площа 0,0830 га.
Адреса місцезнаходження майна:
Україна, Рівненська обл., Рівненський р-н, с. Моквин, вул. Шевченка, 3
Схожі пропозиції
07.11.2024
Рівненська обл., Вараський р-н, с. Великі Телковичі, вул. Щорса, 15;   Оренда – приміщення будівлі площею 47,3 кв.м. (В)
283.80 грн
6.00 грн / м2
Приміщення
Рівненська обл., Вараський р-н, с. Великі Телковичі, вул. Щорса, 15; Оренда – приміщення будівлі площею 47,3 кв.м. (В)
Україна, Рівненська обл., Великі Телковичі, вул. Щорса, 15
10.01.2023
Рівненська обл., Рівненський р-н, с. Здовбиця, вул. Шосова, 107. Оренда – нежитлові приміщення площею 80,3 м. кв. (В)
1 388.39 грн
17.29 грн / м2
Приміщення
Рівненська обл., Рівненський р-н, с. Здовбиця, вул. Шосова, 107. Оренда – нежитлові приміщення площею 80,3 м. кв. (В)
Україна, Рівненська обл., Рівненський р-н, с. Здовбиця, вул. Шосова, 107
Рівненська обл., м. Рівне, вул. Міцкевича, 2. Оренда – приміщення 2-го  поверху загальною площею 735,90 кв.м. (В)
76 739.65 грн
104.28 грн / м2
Приміщення
Рівненська обл., м. Рівне, вул. Міцкевича, 2. Оренда – приміщення 2-го поверху загальною площею 735,90 кв.м. (В)
Україна, Рівненська обл., м. Рівне, вул. Міцкевича, 2
23.09.2025
Рівненська обл., Дубнівський р-н., м. Дубно, вул. Данила Галицького, 15. Оренда –  приміщення 3-го поверху площею 68,30 кв.м. (В)
1 656.28 грн
24.25 грн / м2
Приміщення
Рівненська обл., Дубнівський р-н., м. Дубно, вул. Данила Галицького, 15. Оренда – приміщення 3-го поверху площею 68,30 кв.м. (В)
Україна, Рівненська обл., Дубно, вулиця Данила Галицького, 15