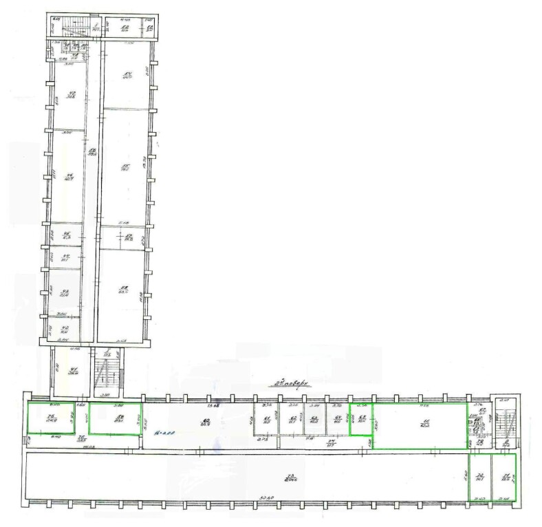
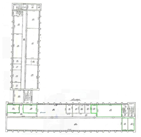
Львівська обл., смт. Івано-Франкове, вул. Львівська, 32. Оренда – приміщення 3-го поверху площею 119,50 кв. м. (В)

1 376.64 грн
11.52 грн / м2
Україна, Львівська обл., смт. Івано-Франкове, вул. Львівська, 32
Перейти до аукціону на сайті
  • Інформація
  • Опис
  • Документи
Дата оголошення пропозиції:
08 вересня 2022
Площа:
119.50 м2
Тип об’єкта:
Приміщення
Тип аукціону:
Англійський аукціон
Статус аукціону:
Аукціон не відбувся
Тип угоди:
Оренда
Розмір мінімального кроку:
50.00 ₴
Розмір гарантійного внеску:
825.98 ₴
Початок прийому пропозицій:
08.09.2022 12:56:55
Завершення прийому пропозицій:
10.10.2022 20:00:00
Проведення аукціону:
11.10.2022 12:10:00
Лот:
CLE001-UA-20220908-76902
№ лоту (УТК):
UTK160721_11Р
Лот виставляється на торги (раз):
10
Стислий опис майна:
Пропонуються до оренди приміщення 3-го поверху площею 119,50 кв.м. Будівля розташована при дорозі в центральній частині селища, неподалік від селищної ради. Можливий окремий вхід. Характеристики: кількість поверхів – 3 газове опалення, але в даних приміщеннях необхідно провести відповідні заходи для покращення газопостачання; водопостачання частково потребує відновлення; вільне до використання електропостачання – 2,5 кВт земельна ділянка – 0,15 га
Адреса місцезнаходження майна:
Україна, Львівська обл., смт. Івано-Франкове, вул. Львівська, 32
Схожі пропозиції
23.09.2025
Львівська обл. селище Нові Стрілища, вул. Шевченка, 25. Оренда – приміщення котельні площею 17,80 кв. м (В)
526.52 грн
29.58 грн / м2
Приміщення
Львівська обл. селище Нові Стрілища, вул. Шевченка, 25. Оренда – приміщення котельні площею 17,80 кв. м (В)
Україна, Львівська обл., селище Нові Стрілища, вул. Шевченка, 25
30.07.2024
Львівська обл., смт. Олесько, вул. Шевченка, 50. Оренда – приміщення 1-го поверху та підвалу площею 189,80 кв.м. (В)
2 761.59 грн
14.55 грн / м2
Приміщення
Львівська обл., смт. Олесько, вул. Шевченка, 50. Оренда – приміщення 1-го поверху та підвалу площею 189,80 кв.м. (В)
Україна, Львівська обл., смт. Олесько, вул. Шевченка, 50
01.03.2023
Львівська обл., м. Трускавець, вул. Героїв УПА, 11. Оренда – приміщення 1-го поверху площею 19,50 кв.м. (В)
1 741.74 грн
89.32 грн / м2
Приміщення
Львівська обл., м. Трускавець, вул. Героїв УПА, 11. Оренда – приміщення 1-го поверху площею 19,50 кв.м. (В)
Україна, Львівська обл., м. Трускавець, вул. Героїв УПА, 11
26.08.2022
Львівська обл., м. Белз, вул. Савенка, 8. Оренда – приміщення гаражу площею 40,3 кв.м. (В)
2 599.75 грн
64.51 грн / м2
Приміщення
Львівська обл., м. Белз, вул. Савенка, 8. Оренда – приміщення гаражу площею 40,3 кв.м. (В)
Україна, Львівська обл., м. Белз, вул. Савенка, 8
Переглянуті пропозиції
27.09.2022
Харківська обл., Харківський р-н, м. Мерефа, вул. Дніпровська, 226. Оренда – приміщення 2-го поверху будівлі «Дизельна», площею 85,80 кв.м. (В)
550.84 грн
6.42 грн / м2
Приміщення
Харківська обл., Харківський р-н, м. Мерефа, вул. Дніпровська, 226. Оренда – приміщення 2-го поверху будівлі «Дизельна», площею 85,80 кв.м. (В)
Україна, Харківська обл., Харківський р-н, м. Мерефа, вул. Дніпровська, 226
18.08.2022
Сумська обл., м. Білопілля, вул. Старопутивльська, буд. 47. Оренда – офісні приміщення 2-го поверху, площею 85,6 кв.м. (В)
505.04 грн
5.90 грн / м2
Офіс
Сумська обл., м. Білопілля, вул. Старопутивльська, буд. 47. Оренда – офісні приміщення 2-го поверху, площею 85,6 кв.м. (В)
Україна, Сумська обл., м. Білопілля, вул. Старопутивльська, буд. 47
30.04.2024
Сумська обл., Сумський р-н, м. Лебедин, вул. Героїв Майдану, 25 ;  Оренда – офісні приміщення 1-го поверху площею 20,90 кв. м (В)
03.09.2025
Дніпропетровська обл., м. Верхньодніпровськ, вул. Титова, 8. Оренда – приміщення 3-го поверху, площею 169,40 кв.м. (В)
2 032.80 грн
12.00 грн / м2
Приміщення
Дніпропетровська обл., м. Верхньодніпровськ, вул. Титова, 8. Оренда – приміщення 3-го поверху, площею 169,40 кв.м. (В)
Україна, Дніпропетровська обл., Верхньодніпровськ, Верхньодніпровськ, вул. Титова, 8