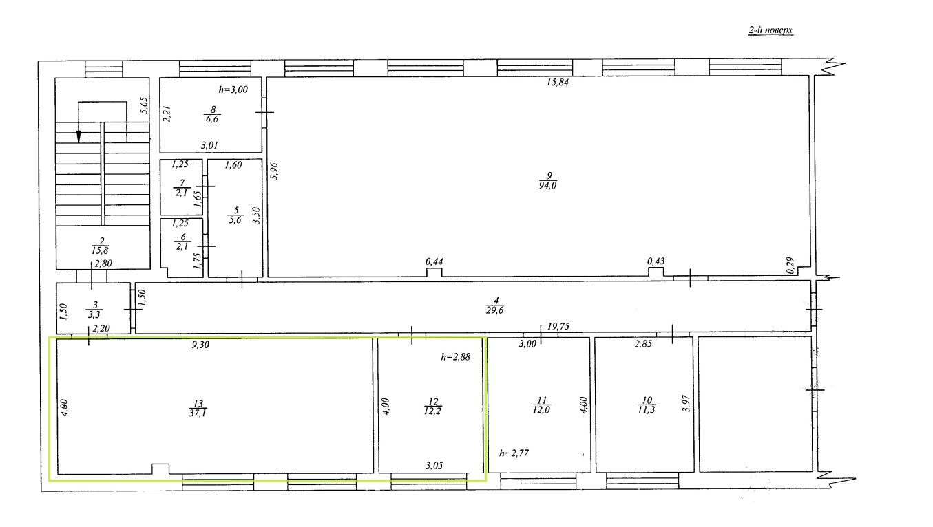
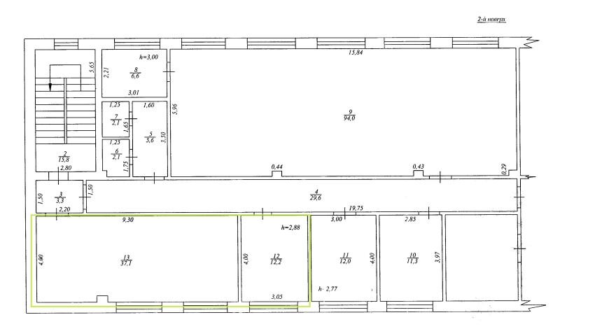
Закарпатська обл., Тячівський р-н., с. Солотвино, вул. Воз’єднання, 3. Оренда – приміщення 2-го поверху площею 49,3 кв.м. (В)

3 872.02 грн
78.54 грн / м2
Україна, Закарпатська обл., Солотвино, вул. Воз’єднання, 3
Перейти до аукціону на сайті
  • Інформація
  • Опис
  • Документи
Дата оголошення пропозиції:
10 серпня 2022
Площа:
49.30 м2
Тип об’єкта:
Приміщення
Тип аукціону:
Англійський аукціон
Статус аукціону:
Аукціон не відбувся
Тип угоди:
Оренда
Розмір мінімального кроку:
100.00 ₴
Розмір гарантійного внеску:
2 323.21 ₴
Початок прийому пропозицій:
10.08.2022 11:48:08
Завершення прийому пропозицій:
08.09.2022 20:00:00
Проведення аукціону:
09.09.2022 11:15:00
Лот:
CLE001-UA-20220810-04242
№ лоту (УТК):
UTK080722_11T
Лот виставляється на торги (раз):
2
Стислий опис майна:
Пропонуються до оренди приміщення на 2-му поверху площею 49,3 кв.м. Стан приміщення потребує ремонту. Характеристики • кількість поверхів – 2 • Загальна площа будівлі – 247,5 кв.м. • Площа запропонована до оренди – 49,3 кв.м. • Дозволена потужність - 3 кВт
Адреса місцезнаходження майна:
Україна, Закарпатська обл., Солотвино, вул. Воз’єднання, 3
Схожі пропозиції
05.06.2025
Закарпатська обл., м. Мукачево, вул. І. Зріні, 115. Оренда – приміщення 3-го поверху площею 210,0 кв.м. (В)
7 660.80 грн
36.48 грн / м2
Приміщення
Закарпатська обл., м. Мукачево, вул. І. Зріні, 115. Оренда – приміщення 3-го поверху площею 210,0 кв.м. (В)
Україна, Закарпатська обл., Мукачево, Мукачево, вул. І. Зріні, 115
23.02.2024
Закарпатська обл., Мукачівський р-н, с. Великі Лучки, вул. Гагаріна, 30. Оренда – приміщення 2-го поверху площею 31,8 кв.м. (В)
636.00 грн
20.00 грн / м2
Приміщення
Закарпатська обл., Мукачівський р-н, с. Великі Лучки, вул. Гагаріна, 30. Оренда – приміщення 2-го поверху площею 31,8 кв.м. (В)
Україна, Закарпатська обл., Мукачівський р-н, с. Великі Лучки, вул. Гагаріна, 30
16.05.2023
Закарпатська обл., м. Мукачево, вул. І. Зріні, 115. Оренда – приміщення 1-го поверху площею 262,3 кв.м. (В)
11 960.88 грн
45.60 грн / м2
Приміщення
Закарпатська обл., м. Мукачево, вул. І. Зріні, 115. Оренда – приміщення 1-го поверху площею 262,3 кв.м. (В)
Україна, Закарпатська обл., Мукачево, вулиця Ілони Зріні, 115
21.02.2023
Закарпатська обл., Хустський р-н, с. Стеблівка, вул. Дружби, 1. Оренда – приміщення 1-го поверху площею 104,3 кв.м. (В)
5 255.68 грн
50.39 грн / м2
Приміщення
Закарпатська обл., Хустський р-н, с. Стеблівка, вул. Дружби, 1. Оренда – приміщення 1-го поверху площею 104,3 кв.м. (В)
Україна, Закарпатська обл., Стеблівка, вул. Дружби, 1
Переглянуті пропозиції
Львівська обл., м. Радехів, вул. Львівська, 24. Оренда - приміщення 2 поверху
1 163.51 грн
11.06 грн / м2
Приміщення
Львівська обл., м. Радехів, вул. Львівська, 24. Оренда - приміщення 2 поверху
Україна, Львівська обл., м. Радехів, вул. Львівська, 24
26.11.2025
м. Харків, пр-т Ювілейний, 66. Оренда – приміщення 2-го поверху площею 35,3 кв.м. (В)
1 059.00 грн
30.00 грн / м2
Приміщення
м. Харків, пр-т Ювілейний, 66. Оренда – приміщення 2-го поверху площею 35,3 кв.м. (В)
Україна, Харківська обл., Харків, Ювілейний проспект, 66