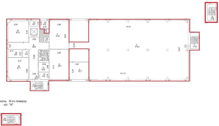
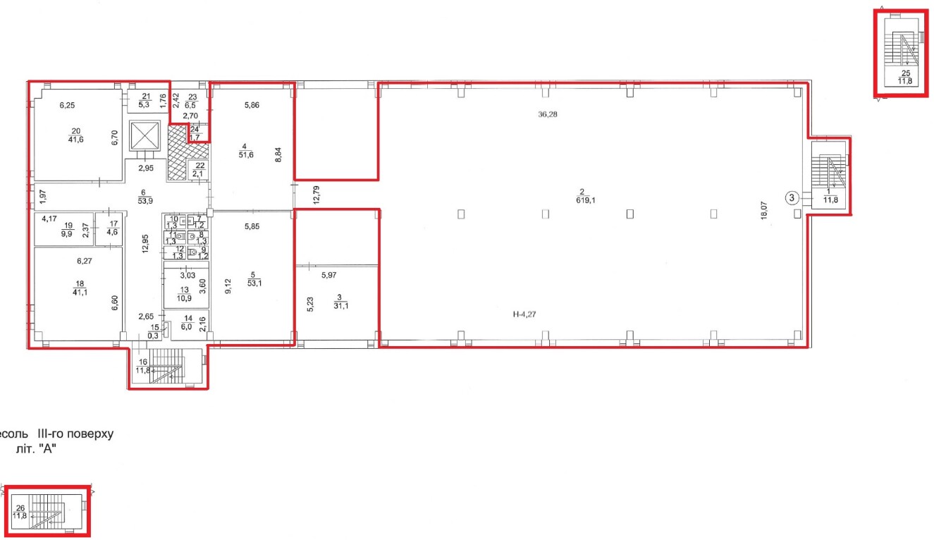
м. Київ, вул. Дегтярівська, 28-А. Оренда – приміщення 3-го поверху площею 853,34 кв.м. (В)

91 648.72 грн
107.40 грн / м2
Україна, м.Київ, Київ, вулиця Дегтярівська, 28А
Перейти до аукціону на сайті
  • Інформація
  • Опис
  • Документи
Дата оголошення пропозиції:
11 серпня 2022
Площа:
853.34 м2
Тип об’єкта:
Приміщення
Тип аукціону:
Англійський аукціон
Статус аукціону:
Аукціон не відбувся
Тип угоди:
Оренда
Розмір мінімального кроку:
900.00 ₴
Розмір гарантійного внеску:
54 989.23 ₴
Початок прийому пропозицій:
11.08.2022 14:53:31
Завершення прийому пропозицій:
12.09.2022 20:00:00
Проведення аукціону:
13.09.2022 12:25:00
Лот:
CLE001-UA-20220811-48115
№ лоту (УТК):
UTK270422_03T
Лот виставляється на торги (раз):
4
Стислий опис майна:
Пропонуються до оренди приміщення 3-го поверху, площею 853,34 м2 . Будівля розташована в Шевченківському районі міста Києва, місцевості Лук'янівка, Сирець, Шулявка. Поруч розвинена інфраструктура, супермаркети, бізнес-центри, зупинки маршрутного транспорту. Найближчі ст. метро «Лук’янівська», «Берестейська». Вхід з двору. Доступ 24/7. Характеристики • загальна площа будівлі – 4710,20 м2 ; • сан. вузол, каналізація, водопостачання – присутне; • кількість поверхів – 4; • опалення централізоване (міське); • площа земельної ділянки – 0,3913 га*; *земельна ділянка не є предметом оренди
Адреса місцезнаходження майна:
Україна, м.Київ, Київ, вулиця Дегтярівська, 28А
Схожі пропозиції
14.03.2023
м. Київ, вул. Миколи Голего, 8. Оренда – приміщення 3-го поверху площею 79,7 м2 (В)
14 632.92 грн
183.60 грн / м2
Приміщення
м. Київ, вул. Миколи Голего, 8. Оренда – приміщення 3-го поверху площею 79,7 м2 (В)
Україна, м.Київ, Київ, вулиця Миколи Голего, 8
09.07.2025
м. Київ, вул. Миколи Голего, 8. Оренда – приміщення 3-го поверху, загальною площею – 299,00 кв. м (В)
29 011.97 грн
97.03 грн / м2
Приміщення
м. Київ, вул. Миколи Голего, 8. Оренда – приміщення 3-го поверху, загальною площею – 299,00 кв. м (В)
Україна, м.Київ, м. Київ, вул. Миколи Голего, 8
17.06.2025
м. Київ, вул. Курінного Петра, 2Б, літ. «А» (Святошинський р-н). Оренда – приміщення на 1-му поверсі, площею – 70,70 кв.м (В)
7 461.11 грн
105.53 грн / м2
Приміщення
м. Київ, вул. Курінного Петра, 2Б, літ. «А» (Святошинський р-н). Оренда – приміщення на 1-му поверсі, площею – 70,70 кв.м (В)
Україна, м.Київ, Київ, 03148, м. Київ, вул. Курінного Петра, 2Б (Святошинський р-н)
12.01.2024
м. Київ, вул. Ореста Васкула (Феодори Пушиної), 27-А; Оренда – приміщення 3-го поверху, площею 34,5 кв.м. (В)
6 810.99 грн
197.42 грн / м2
Приміщення
м. Київ, вул. Ореста Васкула (Феодори Пушиної), 27-А; Оренда – приміщення 3-го поверху, площею 34,5 кв.м. (В)
Україна, м.Київ, м. Київ, вулиця Ореста Васкула, 27-А
Переглянуті пропозиції
15.07.2025
Чернігівська обл., м. Городня, вул. 1 Травня, 48. Оренда – приміщення 2-го поверху площею 143,40 кв.м.(В)
1 720.80 грн
12.00 грн / м2
Приміщення
Чернігівська обл., м. Городня, вул. 1 Травня, 48. Оренда – приміщення 2-го поверху площею 143,40 кв.м.(В)
Україна, Чернігівська обл., Городня, Городня, вул. 1 Травня, 48
14.02.2023
Кіровоградська обл., Олександрійський р-н, смт Власівка, вул. Молодіжна, 15а. Оренда – приміщення 1-го поверху площею 13,80 кв.м.(В)
510.60 грн
37.00 грн / м2
Приміщення
Кіровоградська обл., Олександрійський р-н, смт Власівка, вул. Молодіжна, 15а. Оренда – приміщення 1-го поверху площею 13,80 кв.м.(В)
Україна, Кіровоградська обл., Олександрійський р-н, смт Власівка, вул. Молодіжна, 15а
05.05.2023
Полтавська обл., Кременчуцький р-н, с. Омельник, вул. Центральна, буд. 51б. Оренда – приміщення площею 66,00 кв.м. (В)
501.60 грн
7.60 грн / м2
Приміщення
Полтавська обл., Кременчуцький р-н, с. Омельник, вул. Центральна, буд. 51б. Оренда – приміщення площею 66,00 кв.м. (В)
Україна, Полтавська обл., Кременчуцький р-н, с. Омельник, вул. Центральна, буд. 51б