Рівненська обл., м. Рівне вул. Орлова, 37. Оренда – приміщення 4го поверху площею 326,3 м. кв. (В)

18 941.72 грн
58.05 грн / м2
Україна, Рівненська обл., м. Рівне, вул. Орлова, 37
Перейти до аукціону на сайті
  • Інформація
  • Опис
  • Документи
Дата оголошення пропозиції:
23 вересня 2022
Площа:
326.30 м2
Тип об’єкта:
Приміщення
Тип аукціону:
Англійський аукціон
Статус аукціону:
Аукціон не відбувся
Тип угоди:
Оренда
Розмір мінімального кроку:
400.00 ₴
Розмір гарантійного внеску:
11 365.03 ₴
Початок прийому пропозицій:
23.09.2022 14:23:21
Завершення прийому пропозицій:
25.10.2022 20:00:00
Проведення аукціону:
26.10.2022 12:00:00
Лот:
CLE001-UA-20220923-49249
№ лоту (УТК):
UTK190821_20P
Лот виставляється на торги (раз):
10
Стислий опис майна:
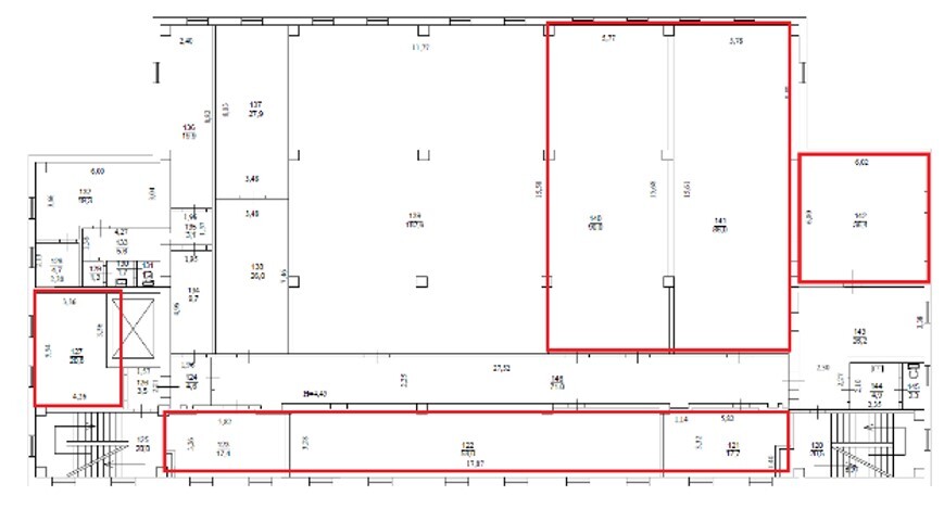
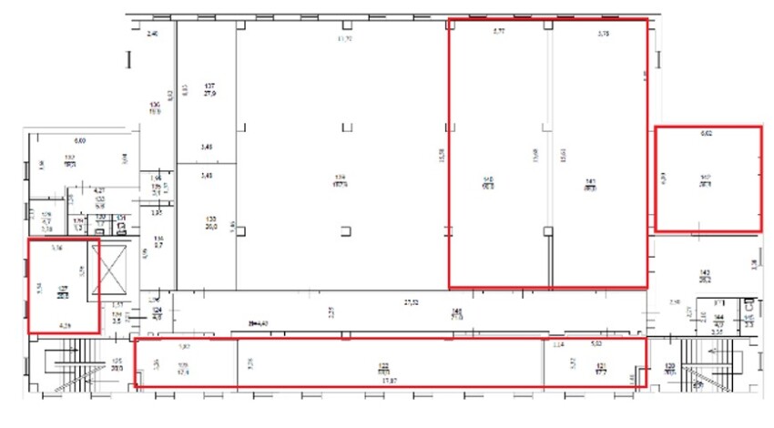
Пропонується до оренди приміщення 4го поверху площею 326,3 м. кв. Будівля знаходиться в серединній частині міста, досить розвинена інфраструктура. Поряд відділення Ощадбанку, магазини, середні автомобільні та пішохідні потоки. Територія огороджена та частково впорядкована. Окремий вхід відсутній. Приміщення потребують реконструкції системи електропостачання. Опалення відсутнє. Характеристики: Кількість поверхів – 6 ; Загальна площа – 4535,1 м. кв.; Площа, запропонована до оренди – 326,3 м.кв.; Земельна ділянка - площа 0,3639 га.
Адреса місцезнаходження майна:
Україна, Рівненська обл., м. Рівне, вул. Орлова, 37
Схожі пропозиції
16.09.2025
Рівненська обл., Сарненський район, селище Рокитне, вул. Незалежності, 9. Оренда –група приміщень 2-го поверху площею54,80кв.м (В)
2 564.64 грн
46.80 грн / м2
Приміщення
Рівненська обл., Сарненський район, селище Рокитне, вул. Незалежності, 9. Оренда –група приміщень 2-го поверху площею54,80кв.м (В)
Україна, Рівненська обл., Рокитне, вулиця Незалежності, 9
23.02.2024
Рівненська обл., Вараський р-н, с. Великі Телковичі, вул. Щорса, 15;   Оренда – приміщення будівлі площею 47,3 кв.м. (В)
283.80 грн
6.00 грн / м2
Приміщення
Рівненська обл., Вараський р-н, с. Великі Телковичі, вул. Щорса, 15; Оренда – приміщення будівлі площею 47,3 кв.м. (В)
Україна, Рівненська обл., Великі Телковичі, вул. Щорса, 15
01.11.2023
Рівненська обл., Рівненський р-н, с. Пустомити, вул. Радянська, 41. Оренда – виробничі приміщення площею 21,80 кв.м. (В)
261.60 грн
12.00 грн / м2
Приміщення
Рівненська обл., Рівненський р-н, с. Пустомити, вул. Радянська, 41. Оренда – виробничі приміщення площею 21,80 кв.м. (В)
Україна, Рівненська обл., Рівненський р-н, с. Пустомити, вул. Радянська, 41
20.10.2023
Рівненська обл., Сарненський р-н, смт. Степань, вул. Київська, 18. Оренда – приміщення 2-го поверху та гараж, загальною площею 186,80 кв.м. (В)
1 806.36 грн
9.67 грн / м2
Приміщення
Рівненська обл., Сарненський р-н, смт. Степань, вул. Київська, 18. Оренда – приміщення 2-го поверху та гараж, загальною площею 186,80 кв.м. (В)
Україна, Рівненська обл., Сарненський р-н, смт. Степань, вул. Київська, 18
Переглянуті пропозиції
26.11.2025
м. Харків, пр-т Ювілейний, 66. Оренда – приміщення 2-го поверху площею 35,3 кв.м. (В)
1 059.00 грн
30.00 грн / м2
Приміщення
м. Харків, пр-т Ювілейний, 66. Оренда – приміщення 2-го поверху площею 35,3 кв.м. (В)
Україна, Харківська обл., Харків, Ювілейний проспект, 66