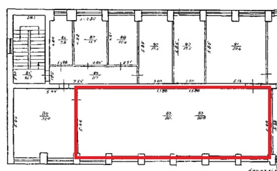
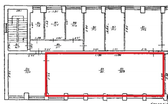
Рівненська обл., Вараський р-н. смт. Зарічне, вул. Центральна, 6а. Оренда – приміщення 3 поверху площею 80,8 м. кв. (В)

1 512.58 грн
18.72 грн / м2
Україна, Рівненська обл., Вараський р-н. смт. Зарічне, вул. Центральна, 6а
Перейти до аукціону на сайті
  • Інформація
  • Опис
  • Документи
Дата оголошення пропозиції:
23 вересня 2022
Площа:
80.80 м2
Тип об’єкта:
Приміщення
Тип аукціону:
Англійський аукціон
Статус аукціону:
Аукціон не відбувся
Тип угоди:
Оренда
Розмір мінімального кроку:
100.00 ₴
Розмір гарантійного внеску:
907.55 ₴
Початок прийому пропозицій:
23.09.2022 14:26:07
Завершення прийому пропозицій:
25.10.2022 20:00:00
Проведення аукціону:
26.10.2022 12:35:00
Лот:
CLE001-UA-20220923-06074
№ лоту (УТК):
UTK130921_23P
Лот виставляється на торги (раз):
10
Стислий опис майна:
Пропонується до оренди приміщення 3-го поверху, площею 80,8 м. кв. Будівля знаходиться в центральній частині міста, розвинена інфраструктура, поряд відділення Укрпошти, автостанція, магазини та адміністративні приміщення. Територія огороджена та частково впорядкована. Характеристики: Кількість поверхів – 3; Загальна площа – 1127,4 м.кв.; Площа, запропонована до оренди – 80,8 м.кв.; Опалення – централізоване; Земельна ділянка - площа 0,2019 га.
Адреса місцезнаходження майна:
Україна, Рівненська обл., Вараський р-н. смт. Зарічне, вул. Центральна, 6а
Схожі пропозиції
25.05.2023
Рівненська обл., м. Рівне вул. Орлова, 37. Оренда – приміщення 4го поверху площею 326,3 м. кв. (В)
15 075.06 грн
46.20 грн / м2
Приміщення
Рівненська обл., м. Рівне вул. Орлова, 37. Оренда – приміщення 4го поверху площею 326,3 м. кв. (В)
Україна, Рівненська обл., м. Рівне, вул. Орлова, 37
07.11.2024
Рівненська обл., Рівненський р-н, с. Дорогобуж, вул. Гудкова, 84. Оренда – виробничі приміщення площею 19,4 кв.м. (В)
252.20 грн
13.00 грн / м2
Приміщення
Рівненська обл., Рівненський р-н, с. Дорогобуж, вул. Гудкова, 84. Оренда – виробничі приміщення площею 19,4 кв.м. (В)
Україна, Рівненська обл., Рівненський р-н, с. Дорогобуж, вул. Гудкова, 84
Рівненська обл., м. Рівне, вул. Боярка, 54а. Оренда – металеві складські приміщення площею 174,7 м. кв. (В)
8 071.14 грн
46.20 грн / м2
Приміщення
Рівненська обл., м. Рівне, вул. Боярка, 54а. Оренда – металеві складські приміщення площею 174,7 м. кв. (В)
Україна, Рівненська обл., м. Рівне, вул. Боярка, 54а
30.06.2023
Рівненська обл., м. Рівне вул. Орлова, 37. Оренда – приміщення 4го поверху площею 326,3 м. кв. (В)
15 075.06 грн
46.20 грн / м2
Приміщення
Рівненська обл., м. Рівне вул. Орлова, 37. Оренда – приміщення 4го поверху площею 326,3 м. кв. (В)
Україна, Рівненська обл., м. Рівне, вул. Орлова, 37