Рівненська обл., Рівненський р-н, с. Здовбиця, вул. Шосова, 107. Оренда – нежитлові приміщення площею 80,3 м. кв. (В)

1 388.39 грн
17.29 грн / м2
Україна, Рівненська обл., Рівненський р-н, с. Здовбиця, вул. Шосова, 107
Перейти до аукціону на сайті
  • Інформація
  • Опис
  • Документи
Дата оголошення пропозиції:
23 вересня 2022
Площа:
80.30 м2
Тип об’єкта:
Приміщення
Тип аукціону:
Англійський аукціон
Статус аукціону:
Аукціон не відбувся
Тип угоди:
Оренда
Розмір мінімального кроку:
100.00 ₴
Розмір гарантійного внеску:
833.03 ₴
Початок прийому пропозицій:
23.09.2022 14:26:58
Завершення прийому пропозицій:
25.10.2022 20:00:00
Проведення аукціону:
26.10.2022 11:40:00
Лот:
CLE001-UA-20220923-99703
№ лоту (УТК):
UTK260821_04P
Лот виставляється на торги (раз):
10
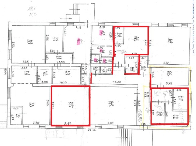
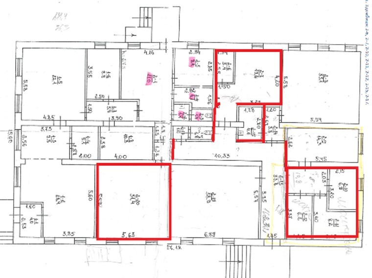
Стислий опис майна:
Пропонується до оренди нежитлові приміщення 1го поверху площею 80,3 м. кв. Будівля знаходиться в центральній частині села., досить розвинена інфраструктура. Розглядається можливість облаштування окремого входу. Приміщення потребують реконструкції системи електропостачання. Опалення відсутнє. Характеристики: Кількість поверхів – 1 ; Загальна площа – 246,1 м. кв.; Площа, запропонована до оренди – 80,3 м.кв.; Земельна ділянка - площа 0,1304 га.
Адреса місцезнаходження майна:
Україна, Рівненська обл., Рівненський р-н, с. Здовбиця, вул. Шосова, 107
Схожі пропозиції
17.05.2023
Рівненська обл., смт. Володимирець вул. Поштова ,23. Оренда – приміщення 1-го поверху загальною площею 80,5 м.кв. (В)
1 787.10 грн
22.20 грн / м2
Приміщення
Рівненська обл., смт. Володимирець вул. Поштова ,23. Оренда – приміщення 1-го поверху загальною площею 80,5 м.кв. (В)
Україна, Рівненська обл., смт. Володимирець, вул. Поштова ,23
Рівненська обл., смт. Демидівка, вул. Миру, 28. Оренда складських приміщень площею 128,0 кв.м.
1 795.84 грн
14.03 грн / м2
Приміщення
Рівненська обл., смт. Демидівка, вул. Миру, 28. Оренда складських приміщень площею 128,0 кв.м.
Україна, Рівненська обл., смт. Демидівка, вул. Миру, 28
02.02.2023
Рівненська обл., смт. Володимирець вул. Поштова ,23. Оренда – приміщення 1-го поверху загальною площею 80,5 м.кв. (В)
1 787.10 грн
22.20 грн / м2
Приміщення
Рівненська обл., смт. Володимирець вул. Поштова ,23. Оренда – приміщення 1-го поверху загальною площею 80,5 м.кв. (В)
Україна, Рівненська обл., смт. Володимирець, вул. Поштова ,23
23.02.2024
Рівненська обл., Рівненський р-н., с. Вельбівно, вул. Гагаріна, 15. Оренда – частина приміщення одноповерхової будівлі, площею 16,9 кв.м. (В)
253.50 грн
15.00 грн / м2
Приміщення
Рівненська обл., Рівненський р-н., с. Вельбівно, вул. Гагаріна, 15. Оренда – частина приміщення одноповерхової будівлі, площею 16,9 кв.м. (В)
Україна, Рівненська обл., Рівненський р-н., с. Вельбівно, вул. Гагаріна, 15
Переглянуті пропозиції
15.07.2025
м.Харків, вул. Конторська,14. Оренда – приміщення 1-го поверху, площею 11,9 кв.м (В)
535.50 грн
45.00 грн / м2
Приміщення
м.Харків, вул. Конторська,14. Оренда – приміщення 1-го поверху, площею 11,9 кв.м (В)
Україна, Харківська обл., м. Харків, вул. Конторська,14
20.10.2023
Львівська обл. м. Перемишляни вул. Топольна, 6. Оренда – приміщення гаражів площею 45,3 кв.м. (В)
7 801.57 грн
172.22 грн / м2
Приміщення
Львівська обл. м. Перемишляни вул. Топольна, 6. Оренда – приміщення гаражів площею 45,3 кв.м. (В)
Україна, Львівська обл., м. Перемишляни, вул. Топольна, 6