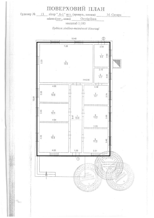
Кіровоградська обл., смт Онуфріївка, вул. М. Скляра, 13. Оренда – будівля площею 130,90 кв.м.(В)

523.60 грн
4.00 грн / м2
Україна, Кіровоградська обл., смт Онуфріївка, вул. М. Скляра, 13
Перейти до аукціону на сайті
  • Інформація
  • Опис
  • Документи
Дата оголошення пропозиції:
28 вересня 2022
Площа:
130.90 м2
Тип об’єкта:
Будівля
Тип аукціону:
Англійський аукціон
Статус аукціону:
Аукціон не відбувся
Тип угоди:
Оренда
Розмір мінімального кроку:
20.00 ₴
Розмір гарантійного внеску:
314.16 ₴
Початок прийому пропозицій:
28.09.2022 13:15:44
Завершення прийому пропозицій:
31.10.2022 20:00:00
Проведення аукціону:
01.11.2022 11:45:00
Лот:
CLE001-UA-20220928-87460
№ лоту (УТК):
UTK130921_05P
Лот виставляється на торги (раз):
9
Стислий опис майна:
Пропонується до оренди будівля площею 130,90кв.м. Розташування - будівля знаходиться у центральній частині селища. Поруч знаходяться віділення банка, продуктові магазини, високий автомобільний і пішохідний потоки. Стан приміщення не задовільний, підходить для офісу, склад. Ідеальне місце під розвиток будь-якого бізнесу. Можливість передачі приміщень в суборенду. Характеристики: - Кількість поверхів – 1; - Загальна площа – 130,90 кв.м.; - Площа запропонована до оренди – 130,90 кв.м.; - Електропостачання; - Земельна ділянка – 0,1428 га (договір оренди)
Адреса місцезнаходження майна:
Україна, Кіровоградська обл., смт Онуфріївка, вул. М. Скляра, 13
Схожі пропозиції
30.05.2023
Кіровоградська обл., м. Долинська, вул. Волохінська, 1А. Оренда – комплекс будівель площею 275,50 кв.м.(В)
5 510.00 грн
20.00 грн / м2
Будівля
Кіровоградська обл., м. Долинська, вул. Волохінська, 1А. Оренда – комплекс будівель площею 275,50 кв.м.(В)
Україна, Кіровоградська обл., м. Долинська, вул. Волохінська, 1А
25.04.2025
Кіровоградська обл., Кропивницький (Знам`янський) р-н, с. Володимирівка, вул. Дружби, 1а;  Оренда – будівля площею 41,70 кв.м.(В)
500.40 грн
12.00 грн / м2
Будівля
Кіровоградська обл., Кропивницький (Знам`янський) р-н, с. Володимирівка, вул. Дружби, 1а; Оренда – будівля площею 41,70 кв.м.(В)
Україна, Кіровоградська обл., с. Володимирівка, вул. Дружби, 1а
Кіровоградська обл., смт Новоархангельск, вул. Пушкіна, 44. Оренда – комплекс будівель площею 202,80 кв.м. (В)
4 189.85 грн
20.66 грн / м2
Будівля
Кіровоградська обл., смт Новоархангельск, вул. Пушкіна, 44. Оренда – комплекс будівель площею 202,80 кв.м. (В)
Україна, Кіровоградська обл., смт Новоархангельск, вул. Пушкіна, 44
16.10.2024
Кіровоградська обл., Кропивницький р-н, с. Карлівка, вул. Шабанова, 42;  Оренда – будівля площею 63,40 кв.м.(В)
3 633.58 грн
57.31 грн / м2
Будівля
Кіровоградська обл., Кропивницький р-н, с. Карлівка, вул. Шабанова, 42; Оренда – будівля площею 63,40 кв.м.(В)
Україна, Кіровоградська обл., с. Карлівка, вулиця Шабанова, 42
Переглянуті пропозиції
08.11.2024
Полтавська обл., Миргородський р-н, м. Гадяч, вулиця Полтавська, 22. Оренда – приміщення 2-го поверху загальною площею 58,50 кв.м. (В)
1 123.20 грн
19.20 грн / м2
Приміщення
Полтавська обл., Миргородський р-н, м. Гадяч, вулиця Полтавська, 22. Оренда – приміщення 2-го поверху загальною площею 58,50 кв.м. (В)
Україна, Полтавська обл., Миргородський р-н, м. Гадяч, вул. Полтавська, 22
26.12.2024
Рівненська обл., Дубнівський р-н., м. Дубно, вул. Данила Галицького, 15. Оренда – приміщення 4-го поверху площею 501,1 кв.м. (В)
3 006.60 грн
6.00 грн / м2
Приміщення
Рівненська обл., Дубнівський р-н., м. Дубно, вул. Данила Галицького, 15. Оренда – приміщення 4-го поверху площею 501,1 кв.м. (В)
Україна, Рівненська обл., Дубнівський р-н., м. Дубно, вул. Данила Галицького, 15
22.04.2025
Полтавська обл., Миргородський р-н, смт. Велика Багачка, вулиця Чекалових, 17. Оренда – приміщення 2-го поверху площею 152,83 кв.м. (В)
4 973.09 грн
22.84 грн / м2
Приміщення
Полтавська обл., Миргородський р-н, смт. Велика Багачка, вулиця Чекалових, 17. Оренда – приміщення 2-го поверху площею 152,83 кв.м. (В)
Україна, Полтавська обл., Миргородський р-н, смт. Велика Багачка, вулиця Чекалових, 17
29.07.2025
Полтавська обл., м. Зіньків, вулиця Воздвиженська, 36. Оренда –приміщення 3-го поверху загальною площею 74,12 кв.м. (В)
3 477.71 грн
46.92 грн / м2
Приміщення
Полтавська обл., м. Зіньків, вулиця Воздвиженська, 36. Оренда –приміщення 3-го поверху загальною площею 74,12 кв.м. (В)
Україна, Полтавська обл., Зіньків, вулиця Воздвиженська, 36