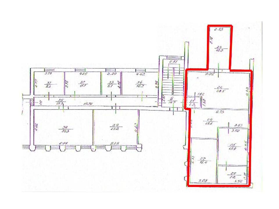
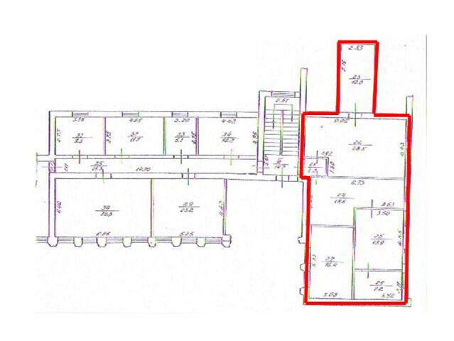
Івано-Франківська обл., Калуський район, смт.Рожнятів, площа Єдності, 9, оренда – Приміщення 3-го поверху площею 100,8 м.кв. (В)

1 257.98 грн
12.48 грн / м2
Україна, Івано-Франківська обл., смт. Рожнятів, площа Єдності, 9
Перейти до аукціону на сайті
  • Інформація
  • Опис
  • Документи
Дата оголошення пропозиції:
27 жовтня 2022
Площа:
100.80 м2
Тип об’єкта:
Приміщення
Тип аукціону:
Англійський аукціон
Статус аукціону:
Аукціон не відбувся
Тип угоди:
Оренда
Розмір мінімального кроку:
100.00 ₴
Розмір гарантійного внеску:
754.79 ₴
Початок прийому пропозицій:
27.10.2022 09:50:06
Завершення прийому пропозицій:
28.11.2022 20:00:00
Проведення аукціону:
29.11.2022 11:45:00
Лот:
CLE001-UA-20221027-27150
№ лоту (УТК):
UTK080721_11Т
Лот виставляється на торги (раз):
10
Стислий опис майна:
Пропонуються до оренди приміщення 3-го поверху площею 100,8 м.кв.. Будівля знаходиться в центральній частині населеного пункту. Високі пішохідний та транспортний потоки. Характеристики кількість поверхів – 3 опалення газове земельна ділянка – 0,1126 га (договір оренди)
Адреса місцезнаходження майна:
Україна, Івано-Франківська обл., смт. Рожнятів, площа Єдності, 9
Схожі пропозиції
Івано-Франківська обл., м. Городенка, вул. Будівельна, 1А Оренда приміщень блоку допоміжних служб
6 371.23 грн
18.24 грн / м2
Приміщення
Івано-Франківська обл., м. Городенка, вул. Будівельна, 1А Оренда приміщень блоку допоміжних служб
Україна, Івано-Франківська обл., м. Городенка, вул. Будівельна, 1А
03.04.2024
Івано-Франківська обл., м. Івано-Франківськ, вул. В.Симоненка,1;   Оренда – приміщення 3-го поверху, площею 800,2 м.кв (В)
50 444.61 грн
63.04 грн / м2
Приміщення
Івано-Франківська обл., м. Івано-Франківськ, вул. В.Симоненка,1; Оренда – приміщення 3-го поверху, площею 800,2 м.кв (В)
Україна, Івано-Франківська обл., Івано-Франківськ, вул. Василя Симоненка,1
Івано-Франківська обл., м. Коломия, вул. Чорновола, 45. Оренда приміщень 5-го поверху
3 866.64 грн
7.61 грн / м2
Приміщення
Івано-Франківська обл., м. Коломия, вул. Чорновола, 45. Оренда приміщень 5-го поверху
Україна, Івано-Франківська обл., м. Коломия, вул. Чорновола, 45
11.09.2024
Івано-Франківська обл. м.Івано-Франківськ, вул. В.Симоненка, 1. Оренда – приміщення гаражу-складу, площею 136,1 м.кв. (В)
11 328.96 грн
83.24 грн / м2
Приміщення
Івано-Франківська обл. м.Івано-Франківськ, вул. В.Симоненка, 1. Оренда – приміщення гаражу-складу, площею 136,1 м.кв. (В)
Україна, Івано-Франківська обл., м. Івано-Франківськ, вул. В.Симоненка, 1