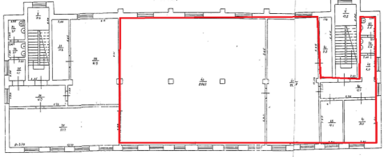
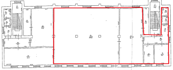
Чернігівська обл., м. Прилуки, вул. Ярмаркова, 53. Оренда – нежитлові приміщення 2-го поверху, площею 330,8 кв.м. (В)

8 961.37 грн
27.09 грн / м2
Україна, Чернігівська обл., м. Прилуки, вул. Ярмаркова, 53
Перейти до аукціону на сайті
  • Інформація
  • Опис
  • Документи
Дата оголошення пропозиції:
17 жовтня 2022
Площа:
330.80 м2
Тип об’єкта:
Приміщення
Тип аукціону:
Англійський аукціон
Статус аукціону:
Аукціон не відбувся
Тип угоди:
Оренда
Розмір мінімального кроку:
130.00 ₴
Розмір гарантійного внеску:
5 376.82 ₴
Початок прийому пропозицій:
17.10.2022 13:30:57
Завершення прийому пропозицій:
15.11.2022 20:00:00
Проведення аукціону:
16.11.2022 11:20:00
Лот:
CLE001-UA-20221017-16283
№ лоту (УТК):
UTK050822_03P
Лот виставляється на торги (раз):
3
Стислий опис майна:
Пропонується до оренди нежитлові приміщення на другому поверсі, площею 330,8 кв.м. Будівля знаходиться в серединній частині міста з мало розвинутою інфраструктурою. Характеристики: кількість поверхів – 3 водопостачання, водовідведення, -централізоване теплопостачання – власна газова котельня
Адреса місцезнаходження майна:
Україна, Чернігівська обл., м. Прилуки, вул. Ярмаркова, 53
Схожі пропозиції
Чернігівська обл.,Бобровицький район, с. Нова Басань, вул. Шевченка, 43, Оренда – приміщення гаражу площею 44,00 кв.м. (В)
396.00 грн
9.00 грн / м2
Приміщення
Чернігівська обл.,Бобровицький район, с. Нова Басань, вул. Шевченка, 43, Оренда – приміщення гаражу площею 44,00 кв.м. (В)
Україна, Чернігівська обл., Нова Басань, вул. Шевченка, 43
Чернігівська обл.,м. Новгород-Сіверський, вул. Князя Ігоря, 34-А. Оренда приміщення 2-го поверху площею 132,1кв.м.(В)
1 618.23 грн
12.25 грн / м2
Приміщення
Чернігівська обл.,м. Новгород-Сіверський, вул. Князя Ігоря, 34-А. Оренда приміщення 2-го поверху площею 132,1кв.м.(В)
Україна, Чернігівська обл., м. Новгород-Сіверський, вул. Князя Ігоря, 34-А
28.07.2023
Чернігівська обл., м. Чернігів, вул. Рокоссовського, 33. Оренда – виробничі приміщення 4-го поверху площею 327,1 кв.м. (В)
15 504.54 грн
47.40 грн / м2
Приміщення
Чернігівська обл., м. Чернігів, вул. Рокоссовського, 33. Оренда – виробничі приміщення 4-го поверху площею 327,1 кв.м. (В)
Україна, Чернігівська обл., Чернігів, вулиця Рокоссовського, 33
Чернігівська обл., Ніжинський р-н, с. Нова Басань, вул. Шевченка, 43. Оренда – приміщення 1-го поверху площею 27,10 кв.м. (В)
481.30 грн
17.76 грн / м2
Приміщення
Чернігівська обл., Ніжинський р-н, с. Нова Басань, вул. Шевченка, 43. Оренда – приміщення 1-го поверху площею 27,10 кв.м. (В)
Україна, Чернігівська обл., Нова Басань, вул. Шевченка, 43
Переглянуті пропозиції
05.05.2023
Полтавська обл., Кременчуцький р-н, м. Горішні Плавні, вулиця Миру, 18. Оренда – приміщення 3-го поверху площею 112,20 кв.м. (В)
3 534.30 грн
31.50 грн / м2
Приміщення
Полтавська обл., Кременчуцький р-н, м. Горішні Плавні, вулиця Миру, 18. Оренда – приміщення 3-го поверху площею 112,20 кв.м. (В)
Україна, Полтавська обл., Кременчуцький р-н, м. Горішні Плавні, вулиця Миру, 18