Сумська обл., Шосткинський р-н, с. Каліївка, вул. Садова (Жовтнева), буд.14, Оренда – частина будівлі та сарай площею 103,70 кв.м. (В)

361.91 грн
3.49 грн / м2
Україна, Сумська обл., Каліївка, вул. Садова (Жовтнева), буд.14
Перейти до аукціону на сайті
  • Інформація
  • Опис
  • Документи
Дата оголошення пропозиції:
19 жовтня 2022
Площа:
103.70 м2
Тип об’єкта:
Будівля
Тип аукціону:
Англійський аукціон
Статус аукціону:
Аукціон не відбувся
Тип угоди:
Оренда
Розмір мінімального кроку:
30.00 ₴
Розмір гарантійного внеску:
217.15 ₴
Початок прийому пропозицій:
19.10.2022 16:53:18
Завершення прийому пропозицій:
17.11.2022 20:00:00
Проведення аукціону:
18.11.2022 12:40:00
Лот:
CLE001-UA-20221019-58924
№ лоту (УТК):
UTK160721_42Т
Лот виставляється на торги (раз):
3
Стислий опис майна:
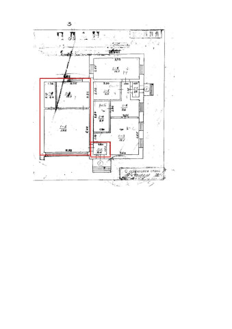
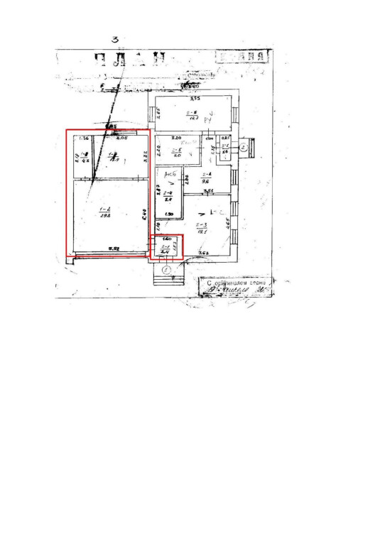
Пропонується до оренди частина будівлі та сарай площею 103,70 кв.м. Знаходиться в прицентральній частині села в приватній забудові житлових будинків. Потрібно відновлення систем водопостачання, теплопостачання, електропостачання. Характеристики: • кількість поверхів – 1; • Загальна площа – 160,10 кв. м.; • Площа запропонована до оренди – 103,70 кв.м.; • Опалення, водопостачання, електропостачання-відсутнє; • Дозволена потужність – 2 кВт; • земельна ділянка – 0,0893 га (договір оренди ЗД); • стан приміщення –задовільний.
Адреса місцезнаходження майна:
Україна, Сумська обл., Каліївка, вул. Садова (Жовтнева), буд.14
Схожі пропозиції
15.07.2025
ДОВГОСТРОКОВА ОРЕНДА! Сумська обл., м. Суми, вул. Марко Вовчок, буд. 33. Оренда – двоповерхова будівля площею 694,00 кв.м. (В)
20 820.00 грн
30.00 грн / м2
Будівля
ДОВГОСТРОКОВА ОРЕНДА! Сумська обл., м. Суми, вул. Марко Вовчок, буд. 33. Оренда – двоповерхова будівля площею 694,00 кв.м. (В)
Україна, Сумська обл., м. Суми, вул. Марко Вовчок, буд. 33
21.01.2025
Сумська обл., Конотопський р-н., с. Пекарі, вул. Центральна, буд. 1. Оренда – нежитлова будівля площею 123,20 кв.м. (В)
1 386.00 грн
11.25 грн / м2
Будівля
Сумська обл., Конотопський р-н., с. Пекарі, вул. Центральна, буд. 1. Оренда – нежитлова будівля площею 123,20 кв.м. (В)
Україна, Сумська обл., Конотопський р-н., с. Пекарі, вул. Центральна, буд.1
21.03.2024
Сумська обл., м. Шостка, вул. Озерна, буд. 39А. Оренда –частина нежитлової будівлі площею 172,3 кв. м. (В)
556.53 грн
3.23 грн / м2
Будівля
Сумська обл., м. Шостка, вул. Озерна, буд. 39А. Оренда –частина нежитлової будівлі площею 172,3 кв. м. (В)
Україна, Сумська обл., м. Шостка, вул. Озерна, буд. 39А
Сумська обл., м. Суми, вул. Герасима Кондратьєва, 124а. Оренда – будівля
5 338.26 грн
28.20 грн / м2
Будівля
Сумська обл., м. Суми, вул. Герасима Кондратьєва, 124а. Оренда – будівля
Україна, Сумська обл., м. Суми, вул. Герасима Кондратьєва, буд. 124а
Переглянуті пропозиції
04.08.2023
Рівненська обл., Рівненський р-н, с. Дорогобуж, вул. Гудкова, 84. Оренда – виробничі приміщення площею 19,4 кв.м. (В)
500.13 грн
25.78 грн / м2
Приміщення
Рівненська обл., Рівненський р-н, с. Дорогобуж, вул. Гудкова, 84. Оренда – виробничі приміщення площею 19,4 кв.м. (В)
Україна, Рівненська обл., Рівненський р-н, с. Дорогобуж, вул. Гудкова, 84
Полтавська обл., м. Полтава, вул. Загородня, буд.30. Оренда – приміщення на 1-му поверсі площею 22,90 кв.м.(В)
1 621.32 грн
70.80 грн / м2
Приміщення
Полтавська обл., м. Полтава, вул. Загородня, буд.30. Оренда – приміщення на 1-му поверсі площею 22,90 кв.м.(В)
Україна, Полтавська обл., м. Полтава, вул. Загородня, буд.30