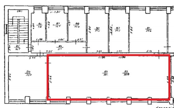
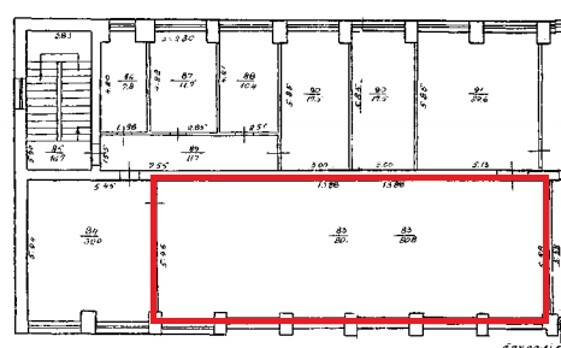
Рівненська обл., Вараський р-н. смт. Зарічне, вул. Центральна, 6а. Оренда – приміщення 3 поверху площею 80,8 м. кв. (В)

1 512.58 грн
18.72 грн / м2
Україна, Рівненська обл., Вараський р-н. смт. Зарічне, вул. Центральна, 6а
Перейти до аукціону на сайті
  • Інформація
  • Опис
  • Документи
Дата оголошення пропозиції:
31 жовтня 2022
Площа:
80.80 м2
Тип об’єкта:
Приміщення
Тип аукціону:
Англійський аукціон
Статус аукціону:
Аукціон не відбувся
Тип угоди:
Оренда
Розмір мінімального кроку:
100.00 ₴
Розмір гарантійного внеску:
907.55 ₴
Початок прийому пропозицій:
31.10.2022 10:22:08
Завершення прийому пропозицій:
30.11.2022 20:00:00
Проведення аукціону:
01.12.2022 11:45:00
Лот:
CLE001-UA-20221031-99130
№ лоту (УТК):
UTK130921_23P
Лот виставляється на торги (раз):
10
Стислий опис майна:
Пропонується до оренди приміщення 3-го поверху, площею 80,8 м. кв. Будівля знаходиться в центральній частині міста, розвинена інфраструктура, поряд відділення Укрпошти, автостанція, магазини та адміністративні приміщення. Територія огороджена та частково впорядкована. Характеристики: Кількість поверхів – 3; Загальна площа – 1127,4 м.кв.; Площа, запропонована до оренди – 80,8 м.кв.; Опалення – централізоване; Земельна ділянка - площа 0,2019 га.
Адреса місцезнаходження майна:
Україна, Рівненська обл., Вараський р-н. смт. Зарічне, вул. Центральна, 6а
Схожі пропозиції
28.12.2023
Рівненська обл., м. Рівне вул. Орлова, 37. Оренда – приміщення 4го поверху площею 326,3 м. кв. (В)
25 856.01 грн
79.24 грн / м2
Приміщення
Рівненська обл., м. Рівне вул. Орлова, 37. Оренда – приміщення 4го поверху площею 326,3 м. кв. (В)
Україна, Рівненська обл., м. Рівне, вул. Орлова, 37
15.09.2023
Рівненська обл., Вараський р-н, с. Більська Воля, вул. Шкільна, 14. Оренда – нежитлові приміщення площею 62,8 кв.м. (В)
553.27 грн
8.81 грн / м2
Приміщення
Рівненська обл., Вараський р-н, с. Більська Воля, вул. Шкільна, 14. Оренда – нежитлові приміщення площею 62,8 кв.м. (В)
Україна, Рівненська обл., Більська Воля, вулиця Шкільна, 14
м. Рівне, вул. Орлова, 37. Оренда приміщень 3-го поверху
20 087.00 грн
26.50 грн / м2
Приміщення
м. Рівне, вул. Орлова, 37. Оренда приміщень 3-го поверху
Україна, Рівненська обл., м. Рівне, вул. Орлова, 37
Рівненська обл., м. Рівне вул.Соборна,56. Оренда – цокольні приміщення загальною площею 124,2  м.кв. (В)
10 289.97 грн
82.85 грн / м2
Приміщення
Рівненська обл., м. Рівне вул.Соборна,56. Оренда – цокольні приміщення загальною площею 124,2 м.кв. (В)
Україна, Рівненська обл., м. Рівне, вул. Соборна, 56